
Omschrijving
Ruime 5-kamer tussenwoning met 4 slaapkamers, een inloopkast en een zeer royale badkamer voorzien van sauna en een dubbel ligbad! Tevens heeft deze woning een circa 10 meter diepe achtertuin op het oosten met een vrijstaande stenen berging en een achterom. De woning lig in de directe nabijheid van winkels, scholen en het Goudse Hout en op circa 5 minuten fietsafstand van het centrum van Gouda en het NS station.
Indeling: Begane grond:
Entree met hal, meterkast en een trapkast.
Woonkamer is voorzien van een Novilon vloerbekleding en geeft toegang tot de hal met toiletruimte en trapopgang naar 1e verdieping. De toiletruimte is voorzien van een closet, een fonteintje en is volledig betegeld.
De open keuken bevindt zich aan de achterzijde van de woonkamer en heeft een houtlook keukenblok in hoekopstelling met onder- en bovenkasten voorzien van een gaskookplaat, afzuigkap, vaatwasser, oven, magnetron en een rvs spoelbak met mengkraan. Vanaf de keuken heeft u toegang tot de achtertuin.
De fijne en ruime achtertuin is gelegen op het oosten, u geniet hier van de ochtend- en middagzon. In de avond is in het achterste gedeelte nog zon aanwezig. De tuin is keurig onderhouden en is voorzien van bestrating en diverse beplanting. Aan de achterzijde van de achtertuin treft u de vrijstaande stenen berging en de poortdeur naar de achtergelegen plaats. Hier is een leuke speeltuin voor de kinderen en parkeergelegenheid.
1e verdieping:
Overloop met toegang tot de 2, aan de voorzijde gelegen, slaapkamers en de prachtige en riante badkamer welke is voorzien van een sauna, een dubbel ligbad met diverse functies o.a. verschillende jets en verlichting, een douchecabine, twee wastafels voorzien van een meubel, handoekradiator, elektrische vloerverwarming en een toiletruimte voorzien van een hangend closet. De badkamer heeft een lichte tegel zowel op de vloer als op de wand. In deze badkamer komt u echt tot rust!
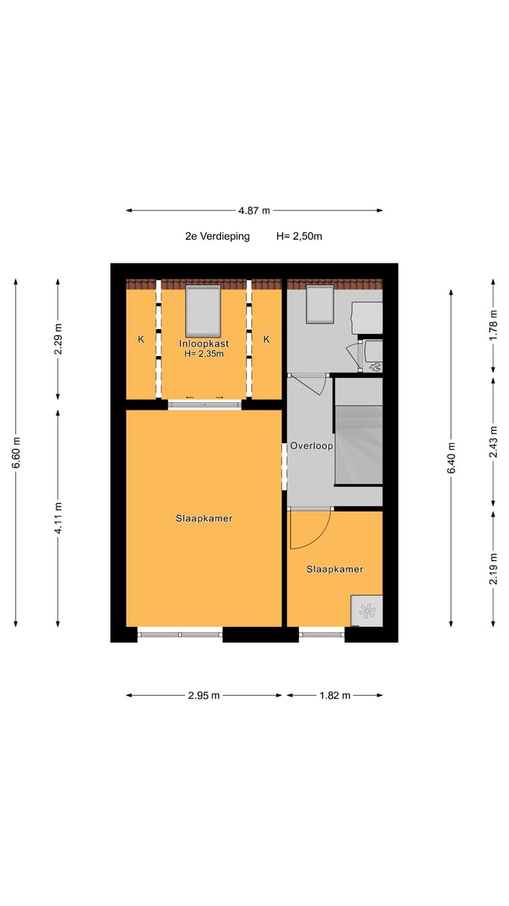
2e verdieping:
Overloop met toegang tot 2 slaapkamers en de afgesloten ruimte met de opstelplek van de Intergas HRE c.v.-combiketel uit 2024, de mv-unit en de aansluiting voor de wasapparatuur.
De ruime slaapkamer over de volledige lengte van de verdieping heeft een zeer ruime inloopkast en de kleine slaapkamer treft u aan de voorzijde. Beide slaapkamers zijn voorzien van tapijt en lichte wandafwerking.
Bijzonderheden:
- Zeer netjes onderhouden tussenwoning;
- Energielabel B, geldig tot 03-2035;
- Goed geïsoleerd en lage energiekosten;
- Grotendeels voorzien van kunststof kozijnen met HR++ beglazing;
- Intergas HRE combiketel uit 2024;
- 4 slaapkamers en een zeer royale badkamer;
- Achter de woning bevindt zich een groot speelplein met veel groen;
- In de nabije omgeving van diverse benodigde voorzieningen.
Heeft u interesse in deze woning? Schakel direct uw eigen NVM-aankoopmakelaar in.
Deze informatie is door ons met de nodige zorgvuldigheid samengesteld. Onzerzijds wordt echter geen enkele aansprakelijkheid aanvaard voor enige onvolledigheid, onjuistheid of anderszins, dan wel de gevolgen daarvan. Alle opgegeven maten en oppervlakten zijn indicatief. Van toepassing zijn de NVM voorwaarden.
Toelichtingsclausule BBMI: de woning is ingemeten conform de branchebrede meetinstructies (BBMI), afgeleid van de NEN 2580 normering. De Meetinstructie is bedoeld om een meer eenduidige manier van meten toe te passen voor het geven van een indicatie van de gebruiksoppervlakte. De Meetinstructie sluit verschillen in meetuitkomsten niet volledig uit, door bijvoorbeeld interpretatieverschillen, afrondingen of beperkingen bij het uitvoeren van de meting.
Kenmerken
Overdracht
- Laatste vraagprijs
- € 400.000 kosten koper
- Vraagprijs per m²
- € 3.738
- Status
- Verkocht
Bouw
- Soort woonhuis
- Eengezinswoning, tussenwoning
- Soort bouw
- Bestaande bouw
- Bouwjaar
- 1986
- Soort dak
- Zadeldak bedekt met pannen
Oppervlakten en inhoud
- Gebruiksoppervlakten
- Wonen
- 107 m²
- Externe bergruimte
- 6 m²
- Perceel
- 110 m²
- Inhoud
- 355 m³
Indeling
- Aantal kamers
- 5 kamers (2 slaapkamers)
- Aantal badkamers
- 1 badkamer en 1 apart toilet
- Badkamervoorzieningen
- Douche, ligbad, toilet, en wastafelmeubel
- Aantal woonlagen
- 3 woonlagen
- Voorzieningen
- Glasvezelkabel en mechanische ventilatie
Energie
- Energielabel
- B
- Isolatie
- Dubbel glas
- Verwarming
- Cv-ketel
- Warm water
- Cv-ketel
- Cv-ketel
- Combiketel (gas gestookt combiketel uit 2024, eigendom)
Kadastrale gegevens
- GOUDA K 5021
- Kadastrale kaart
- Oppervlakte
- 110 m²
- Eigendomssituatie
- Volle eigendom
Buitenruimte
- Ligging
- In woonwijk
- Tuin
- Achtertuin en voortuin
- Achtertuin
- 50 m² (10,00 meter diep en 5,00 meter breed)
- Ligging tuin
- Gelegen op het oosten bereikbaar via achterom
Bergruimte
- Schuur/berging
- Vrijstaande stenen berging
- Voorzieningen
- Elektra
- Isolatie
- Geen isolatie
Parkeergelegenheid
- Soort parkeergelegenheid
- Openbaar parkeren
Foto's 49
© 2001-2025 funda
















































