Dit huis op Funda: https://www.funda.nl/detail/koop/verkocht/gouda/huis-rietzoom-115/43869480/

Omschrijving
In rustige woonwijk in Bloemendaal gelegen te renoveren 5-kamer hoekwoning met een voor,-, zij- en achtertuin met 2 stenen bergingen. De woning heeft een open ligging met vrij uitzicht aan de voorzijde over groenvoorziening. De voortuin heeft een vrijstaande stenen berging en de ruime achtertuin is voorzien van een aangebouwde stenen berging en een achterom. Aan de zijkant is een stook van ca. 1 m. behorende bij de woning. Het resterende behoort niet tot het eigendom en word niet mee verkocht. Deze woning ligt op loopafstand van winkelcentrum Bloemendaal, diverse scholen en in de directe nabijheid van het stadscentrum en uitvalswegen.
Indeling:
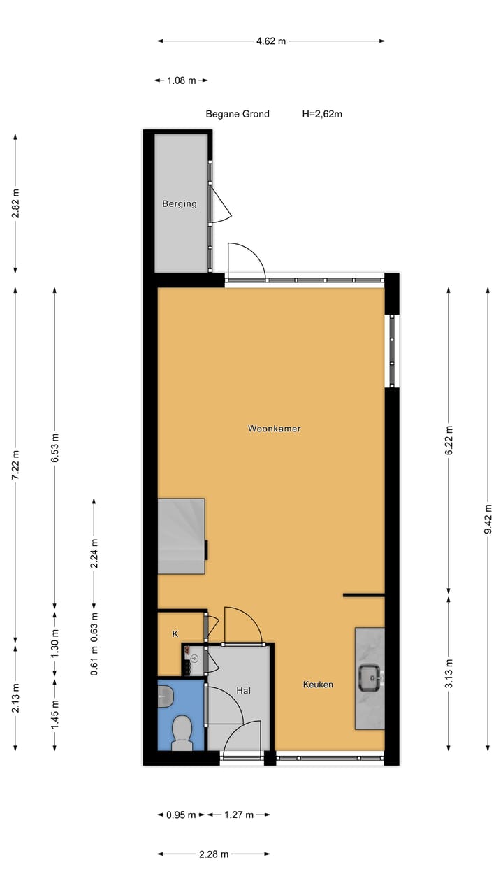
Begane grond:
Entree/hal met meterkast (5 groepen, aardlekschakelaar en glasvezelaansluiting). De toiletruimte is gedeeltelijk betegeld en voorzien van een toilet en een fonteintje. De riante, tuingerichte woonkamer, met raampartijen aan de achterzijde en zijkant bieden volop zicht naar de achtergelegen tuin. Er is een open trapopgang in de woonkamer aanwezig. De half open keuken aan de voorzijde van de woning is voorzien van een rechte opstelling met onder- en bovenkasten, een spoelbak en een aansluiting voor de vaatwasmachine.
Eerste verdieping:
Overloop met toegang tot 3 slaapkamers en de badkamer.
Er bevinden zich 2 ruime slaapkamers aan de achterzijde van de woning en 1 aan de voorzijde.
De badkamer is volledig betegeld en is voorzien van een 2e toilet, een ligbad, een wastafel en de aansluiting voor de wasapparatuur.
Tweede verdieping:
Deze verdieping is middels een vaste trap bereikbaar en heeft een overloop waar de Intergas c.v. combiketel uit 2010 en de mechanische ventilatiebox zich bevinden. Tevens treft u hier de 4e slaapkamer met veel lichtinval door de raampartij aan de voorzijde en het dakkapel aan de achterzijde.
Bijzonderheden:
- Leuk gelegen 5-kamer hoekwoning met vrij uitzicht over groenvoorziening;
- Woning dient geheel gerenoveerd te worden;
- Energielabel D, geldig tot 2034;
- Voor-, zij-, en achtertuin met een achterom;
- Strook van ca 1 m. langs de woning behoort tot het eigendom, het resterende word niet mee verkocht;
- Verwarming middels een CV-combiketel uit 2010 en gedeeltelijk voorzien van dubbel glas;
- Stenen berging in de voortuin en een aangebouwde stenen berging in de achtertuin;
- Leuk gelegen woning in een gewilde woonwijk met vele voorzieningen;
- Verkoopvoorwaarden van toepassing;
- In de koopovereenkomst worden een asbestvrijwaringsclausule, niet zelfbewoningsclausule en ouderdomsclausule opgenomen;
- Notariskeuze voorbehouden aan verkoper;
- Zelfbewoningsplicht: de koper is verplicht het gekochte zelf als woonhuis voor hem en leden van zijn huishouden te bewonen en er zijn hoofdverblijf te hebben voor de duur van minimaal 1 jaar;
- Voorrang eigen huurder bij verkoop lege woning: (eerste 4 weken na aanmelding op Funda.nl). Je komt hiervoor in aanmerking als je een huurwoning achterlaat van de woningcorporatie Mozaïek Wonen, Woonpartners Midden Holland en Woonzorg in de gemeente Gouda. Er moet sprake zijn van een huurovereenkomst voor onbepaalde tijd, de huurovereenkomst moet minimaal 12 maanden geleden in zijn gegaan ten opzichte van het moment van aanmelden en de huurder mag geen andere woning(en) in eigendom hebben. Daarnaast mag er geen sprake zijn van een huurachterstand, lopende betalingsregeling of lopend overlastdossier;
- Asbestinventarisatie: strook onder het kozijn ter plaatse van het schuine dak (niet bereikbaar) en kitresten berging, 1e en 2e verdieping);
- Taxatiewaarde woning € 375.000,-- (rapport d.d. 03-12-2024).
Heeft u interesse in deze woning? Schakel direct uw eigen NVM-aankoopmakelaar in.
Deze informatie is door ons met de nodige zorgvuldigheid samengesteld. Onzerzijds wordt echter geen enkele aansprakelijkheid aanvaard voor enige onvolledigheid, onjuistheid of anderszins, dan wel de gevolgen daarvan. Alle opgegeven maten en oppervlakten zijn indicatief. Van toepassing zijn de NVM voorwaarden.
Toelichtingsclausule BBMI: de woning is ingemeten conform de branchebrede meetinstructies (BBMI), afgeleid van de NEN 2580 normering. De Meetinstructie is bedoeld om een meer eenduidige manier van meten toe te passen voor het geven van een indicatie van de gebruiksoppervlakte. De Meetinstructie sluit verschillen in meetuitkomsten niet volledig uit, door bijvoorbeeld interpretatieverschillen, afrondingen of beperkingen bij het uitvoeren van de meting.
Kenmerken
Overdracht
- Laatste vraagprijs
- € 375.000 kosten koper
- Vraagprijs per m²
- € 3.472
- Status
- Verkocht
Bouw
- Soort woonhuis
- Eengezinswoning, hoekwoning
- Soort bouw
- Bestaande bouw
- Bouwjaar
- 1973
- Specifiek
- Kluswoning
- Soort dak
- Zadeldak bedekt met pannen
Oppervlakten en inhoud
- Gebruiksoppervlakten
- Wonen
- 108 m²
- Overige inpandige ruimte
- 3 m²
- Externe bergruimte
- 5 m²
- Perceel
- 138 m²
- Inhoud
- 401 m³
Indeling
- Aantal kamers
- 5 kamers (4 slaapkamers)
- Aantal badkamers
- 1 badkamer en 1 apart toilet
- Badkamervoorzieningen
- Ligbad, toilet, en wastafel
- Aantal woonlagen
- 3 woonlagen
- Voorzieningen
- Glasvezelkabel en mechanische ventilatie
Energie
- Energielabel
- D
- Isolatie
- Dakisolatie en dubbel glas
- Verwarming
- Cv-ketel
- Warm water
- Cv-ketel
- Cv-ketel
- Combi (gas gestookt combiketel uit 2010, eigendom)
Kadastrale gegevens
- GOUDA M 5994
- Kadastrale kaart
- Oppervlakte
- 138 m²
- Eigendomssituatie
- Volle eigendom
Buitenruimte
- Ligging
- In woonwijk en open ligging
- Tuin
- Achtertuin en voortuin
- Achtertuin
- 48 m² (8,00 meter diep en 6,00 meter breed)
- Ligging tuin
- Gelegen op het oosten bereikbaar via achterom
Bergruimte
- Schuur/berging
- Vrijstaande stenen berging
- Isolatie
- Geen isolatie
Parkeergelegenheid
- Soort parkeergelegenheid
- Openbaar parkeren
Foto's 40
© 2001-2025 funda







































