
Omschrijving
Stijlvol wonen in de Zeeheldenbuurt – Instapklaar 3-kamerappartement met karakter!
Droom jij van een sfeervol appartement op een toplocatie in Groningen? Dan is dit prachtig gerenoveerde 3-kamerappartement in de geliefde Zeeheldenbuurt precies wat je zoekt! Met oog voor detail is deze woning volledig gemoderniseerd, waarbij luxe en comfort samenkomen.
Bij binnenkomst valt direct de lichte woonkamer op en de strak gestuukte wanden en stijlvolle vloer geven het geheel een eigentijdse, warme uitstraling. De moderne badkamer voelt aan als een hotel en met twee fijne slaapkamers heb je volop ruimte voor logees, een thuiskantoor of walk-in closet.
Genieten van de zon? Dat doe je op het ruime balkon aan de achterzijde. Extra pluspunten zijn de grote zolderberging én een handige berging op de begane grond – ideaal voor fietsen en opslag.
De Zeeheldenbuurt is één van de meest gewilde wijken van Groningen, met haar charmante jaren ’50-architectuur, gezellige sfeer en alle voorzieningen om de hoek. Je woont hier op steenworp afstand van het bruisende stadscentrum, het groene Stadspark én het Centraal Station.
Indeling:
Begane grond: afgesloten portiek met trappenhuis.
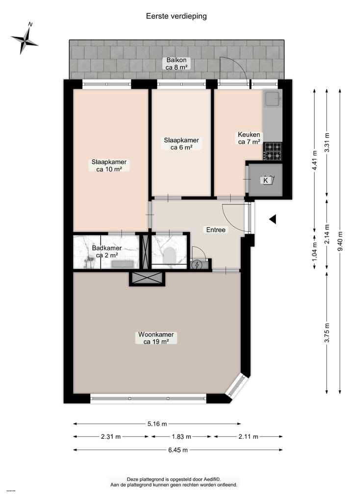
1e verdieping: entree, hal met meterkast en toilet, moderne en lichte woonkamer van circa 19 m² met mooi uitzicht over de straat, dichte keuken van circa 7 m² v.v. inbouwapparatuur en vaste kast en toegang tot het balkon van circa 8 m², twee slaapkamers van resp. circa 6 en 10 m², luxe badkamer met inloopdouche en wastafelmeubel.
Op de bovenste verdieping is nog een ruime bergzolder van circa 9 m² en achter de woning is een vrijstaande berging van circa 3 m².
INFO:
- bouwjaar 1950;
- schilderwerk buitenom 2022;
- badkamer, toilet vloeren en wanden van 2023;
- geheel voorzien van dubbele beglazing;
- verwarmd middels Nefit combiketel 2009;
- actieve VvE; bijdrage €111,42 per maand;
- ruime zolder;
- ruim balkon;
- aanvaarding in overleg.
Kenmerken
Overdracht
- Laatste vraagprijs
- € 245.000 kosten koper
- Vraagprijs per m²
- € 4.623
- Status
- Verkocht
- Bijdrage VvE
- € 111,42 per maand
Bouw
- Soort appartement
- Portiekflat (appartement)
- Soort bouw
- Bestaande bouw
- Bouwjaar
- 1950
- Soort dak
- Zadeldak bedekt met pannen
Oppervlakten en inhoud
- Gebruiksoppervlakten
- Wonen
- 53 m²
- Gebouwgebonden buitenruimte
- 8 m²
- Externe bergruimte
- 6 m²
- Inhoud
- 174 m³
Indeling
- Aantal kamers
- 3 kamers (2 slaapkamers)
- Aantal badkamers
- 1 badkamer en 1 apart toilet
- Badkamervoorzieningen
- Inloopdouche en wastafelmeubel
- Aantal woonlagen
- 1 woonlaag
- Voorzieningen
- Mechanische ventilatie en TV kabel
- Gelegen op
- 2e woonlaag
Energie
- Energielabel
- C
- Isolatie
- HR-glas
- Verwarming
- Cv-ketel
- Warm water
- Cv-ketel
- Cv-ketel
- Nefit (gas gestookt combiketel uit 2009, eigendom)
Kadastrale gegevens
- GRONINGEN R 1778
- Kadastrale kaart
- Eigendomssituatie
- Volle eigendom
Buitenruimte
- Ligging
- Aan rustige weg en in woonwijk
- Balkon/dakterras
- Balkon aanwezig
Bergruimte
- Schuur/berging
- Vrijstaande stenen berging
Parkeergelegenheid
- Soort parkeergelegenheid
- Betaald parkeren en parkeervergunningen
VvE checklist
- Inschrijving KvK
- Ja
- Jaarlijkse vergadering
- Ja
- Periodieke bijdrage
- Ja (€ 111,42 per maand)
- Reservefonds aanwezig
- Ja
- Onderhoudsplan
- Ja
- Opstalverzekering
- Ja
Foto's 39
© 2001-2025 funda






































