
Omschrijving
Sfeervolle schipperswoning met twee slaapkamers, tuin en dakterras op toplocatie in de Oosterpoortbuurt!
Deze sfeervolle en instapklare schipperswoning is goed onderhouden en biedt een ruime woonkamer met hoge plafonds, gestucte muren en houten vloer. De keuken bevindt zich in de aanbouw. Boven vind je twee fijne slaapkamers, een complete badkamer en een handige wasruimte. Via het knusse tuintje op het zuidoosten bereik je het zonnige dakterras. De ligging is ideaal in een rustig straatje op loopafstand van diverse voorzieningen in de wijk. De binnenstad is op slechts 5 fietsminuten en uitvalswegen op 5 autominuten. De auto parkeer je direct voor de deur.
Kortom, een goed onderhouden woonhuis, vol sfeer en karakter op een toplocatie!
INDELING
Begane grond:
Entree/hal met toilet. Ruime en sfeervolle woonkamer van 30 m² met hoge plafonds, 2 schouwen, gestucte muren en houten vloer. Een deur aan de achterzijde biedt toegang tot het knusse tuintje (zuidoost) met trapopgang naar het dakterras (8 m²). De keuken bevindt zich in de aanbouw en is geplaats in U-opstelling en voorzien van diverse inbouwapparatuur.
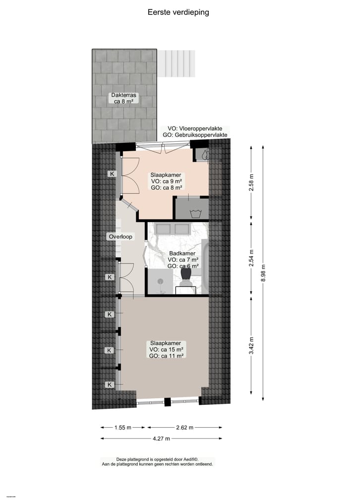
Eerste verdieping:
Overloop met veel kastruimte. Twee slaapkamers van respectievelijk 8 en 11 m². De kleinere slaapkamer is voorzien van Frans balkon, wasmachine-aansluiting(kast) en uitkijkend over de tuin/dakterras. De badkamer is voorzien van douche, ligbad, dubbele wastafel en tweede toilet.
INFO
- Karakteristiek schipperswoning in de Oosterpoort;
- Sfeervolle woonkamer;
- Tuintje en dakterras;
- Bouwjaar 1878;
- Energielabel D;
- Verwarming d.m.v. C.V. bwj 2020;
- 7 zonnepanelen.
Kenmerken
Overdracht
- Laatste vraagprijs
- € 325.000 kosten koper
- Vraagprijs per m²
- € 4.514
- Status
- Verkocht
Bouw
- Soort woonhuis
- Eengezinswoning, tussenwoning
- Soort bouw
- Bestaande bouw
- Bouwjaar
- 1878
- Specifiek
- Beschermd stads- of dorpsgezicht
- Soort dak
- Mansarde dak bedekt met bitumineuze dakbedekking en pannen
Oppervlakten en inhoud
- Gebruiksoppervlakten
- Wonen
- 72 m²
- Gebouwgebonden buitenruimte
- 8 m²
- Perceel
- 48 m²
- Inhoud
- 281 m³
Indeling
- Aantal kamers
- 3 kamers (2 slaapkamers)
- Aantal badkamers
- 1 badkamer en 1 apart toilet
- Badkamervoorzieningen
- Douche, ligbad, toilet, en wastafelmeubel
- Aantal woonlagen
- 2 woonlagen
- Voorzieningen
- Dakraam, frans balkon, natuurlijke ventilatie, TV kabel, en zonnepanelen
Energie
- Energielabel
- D
- Isolatie
- Dakisolatie, dubbel glas en HR-glas
- Verwarming
- Cv-ketel en elektrische verwarming
- Warm water
- Cv-ketel
- Cv-ketel
- Remeha Avanta 28C (gas gestookt combiketel uit 2020, eigendom)
Kadastrale gegevens
- GRONINGEN B 8957
- Kadastrale kaart
- Oppervlakte
- 48 m²
- Eigendomssituatie
- Volle eigendom
Buitenruimte
- Ligging
- Aan rustige weg, beschutte ligging en in woonwijk
- Tuin
- Achtertuin en zonneterras
- Achtertuin
- 7 m² (0,03 meter diep en 0,02 meter breed)
- Ligging tuin
- Gelegen op het zuidoosten
- Balkon/dakterras
- Dakterras aanwezig
Parkeergelegenheid
- Soort parkeergelegenheid
- Betaald parkeren
Foto's 60
© 2001-2025 funda



























































