
Omschrijving
Wonen met vrij uitzicht op loopafstand van het centrum van Haarlem, instapklaar 2-kamer appartement inclusief dakterras en gedeelte achtertuin!
LOCATIE
De woning is gelegen op de 3e verdieping van een prachtig karakteristiek monumentaal stadspand aan de Wilhelminastraat. Aan de rand van de Vijfhoek, ook wel de Jordaan van Haarlem genoemd. Deze charmante wijk biedt een oase van rust, ondanks de ligging in het bruisende centrum, Om de hoek van het historische stadshart.
Alle voorzieningen zijn binnen handbereik: gezellige restaurants, cafés, winkels, musea, scholen en het openbaar vervoer bevinden zich op loopafstand. Buslijnen richting Schiphol, Amsterdam en Leiden vertrekken praktisch voor de deur. Daarnaast zijn uitvalswegen naar Amsterdam, Alkmaar en Den Haag eenvoudig bereikbaar.
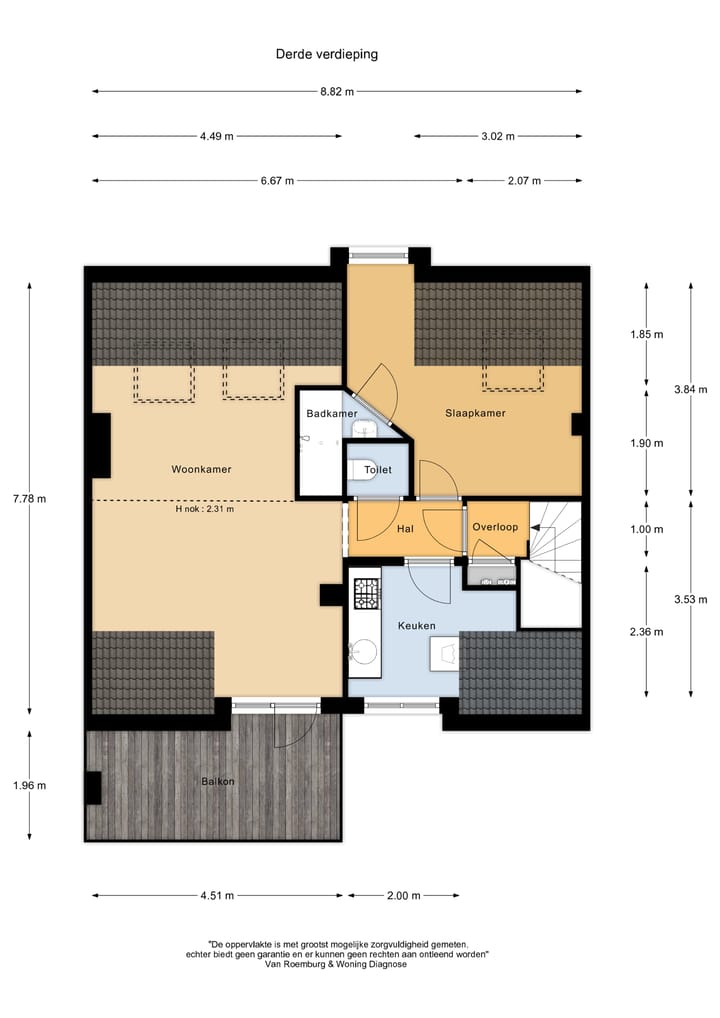
INDELING
Begane grond: Entree met imposant trappenhuis. En doorloop naar de gemeenschappelijke achtertuin op het westen waar je gezellige met je buren kan zitten. Ook is er een overdekte fietsenstalling. Met je fiets kom je hier via de achterom.
Tweede verdieping: Afgesloten entree met linkse kwartslagtrap naar de overloop en meterkast.
Derde verdieping: Overloop met toegang tot de hal, met aan de linkerkant een ruime keuken die is voorzien van een 4-pits kookplaat, oven, afzuigkap en een spoelbak. Aan de rechterzijde bevindt zich de riante en lichte slaapkamer met vrij uitzicht op de Wilhelminastraat. Deze is voorzien van een authentiek balkenskelet, stalraam en een Velux-raam.
De badkamer is bereikbaar vanuit de slaapkamer en beschikt over een wastafel en een bad-douchecombinatie. Vanuit de hal is ook het aparte toilet toegankelijk.
Aansluitend een zeer lichte woonkamer met eet- en zitgedeelte, eveneens voorzien van het kenmerkende balkenskelet en Velux-ramen. Vanuit de woonkamer is er toegang tot het ruime dakterras op het westen, met uitzicht tot aan de Kennemerduinen.
• Bouwjaar: 1890
• Woonoppervlakte: circa. 42m²
• Parkeren met parkeervignet gemeente Haarlem, geen wachtlijst
• Op loopafstand van de Grote Markt
• Oplevering kan spoedig
Kenmerken
Overdracht
- Laatste vraagprijs
- € 335.000 kosten koper
- Vraagprijs per m²
- € 7.976
- Status
- Verkocht
Bouw
- Soort appartement
- Bovenwoning (appartement)
- Soort bouw
- Bestaande bouw
- Bouwjaar
- 1890
- Specifiek
- Beschermd stads- of dorpsgezicht
Oppervlakten en inhoud
- Gebruiksoppervlakten
- Wonen
- 42 m²
- Gebouwgebonden buitenruimte
- 9 m²
- Inhoud
- 165 m³
Indeling
- Aantal kamers
- 2 kamers (1 slaapkamer)
- Aantal badkamers
- 1 badkamer
- Badkamervoorzieningen
- Douche, ligbad, en wastafel
- Aantal woonlagen
- 1 woonlaag
- Voorzieningen
- Mechanische ventilatie
- Gelegen op
- 3e woonlaag
Energie
- Energielabel
- F
- Isolatie
- Gedeeltelijk dubbel glas
- Verwarming
- Cv-ketel
- Warm water
- Cv-ketel
- Cv-ketel
- Combiketel, eigendom
Kadastrale gegevens
- HAARLEM C 7389
- Kadastrale kaart
- Eigendomssituatie
- Volle eigendom
Buitenruimte
- Ligging
- In centrum en vrij uitzicht
- Tuin
- Zonneterras
- Zonneterras
- 9 m² (1,98 meter diep en 4,51 meter breed)
- Ligging tuin
- Gelegen op het westen bereikbaar via achterom
Parkeergelegenheid
- Soort parkeergelegenheid
- Betaald parkeren en parkeervergunningen
VvE checklist
- Inschrijving KvK
- Ja
- Jaarlijkse vergadering
- Nee
- Periodieke bijdrage
- Nee
- Reservefonds aanwezig
- Nee
- Onderhoudsplan
- Nee
- Opstalverzekering
- Ja
Foto's 35
© 2001-2025 funda


































