
Omschrijving
Charmante, instapklare jaren '30 woning in de geliefde Amsterdamsebuurt!
Ben jij op zoek naar een sfeervolle, instapklare woning met karakter én modern comfort? Dan is deze compleet verbouwde jaren ’30 tussenwoning precies wat je zoekt!
Deze prachtige woning beschikt over originele glas-in-loodramen, een royale en moderne open keuken voorzien van diverse inbouwapparatuur en een Quooker plus een strak aangelegde zonnige tuin op het westen. De woning bevat drie slaapkamers en een luxe badkamer met inloopdouche, stijlvol wastafelmeubel en een tweede toilet.
Ligging:
Gelegen in de populaire Amsterdamsebuurt woon je hier op loopafstand van supermarkten, speeltuinen, scholen, sportvoorzieningen en de gezellige winkelstraat “de Amsterdamstraat”. In slechts 5 minuten fietsen sta je midden in het bruisende centrum van Haarlem. Ook het Reinaldapark is om de hoek, ideaal voor een wandeling of sportieve activiteiten. De bereikbaarheid is uitstekend, met NS-stations Haarlem en Spaarnwoude dichtbij en snelle uitvalswegen naar Amsterdam, Alkmaar, Schiphol en Den Haag. Zelfs het strand bereik je fietsend met 20 minuten!
Indeling:
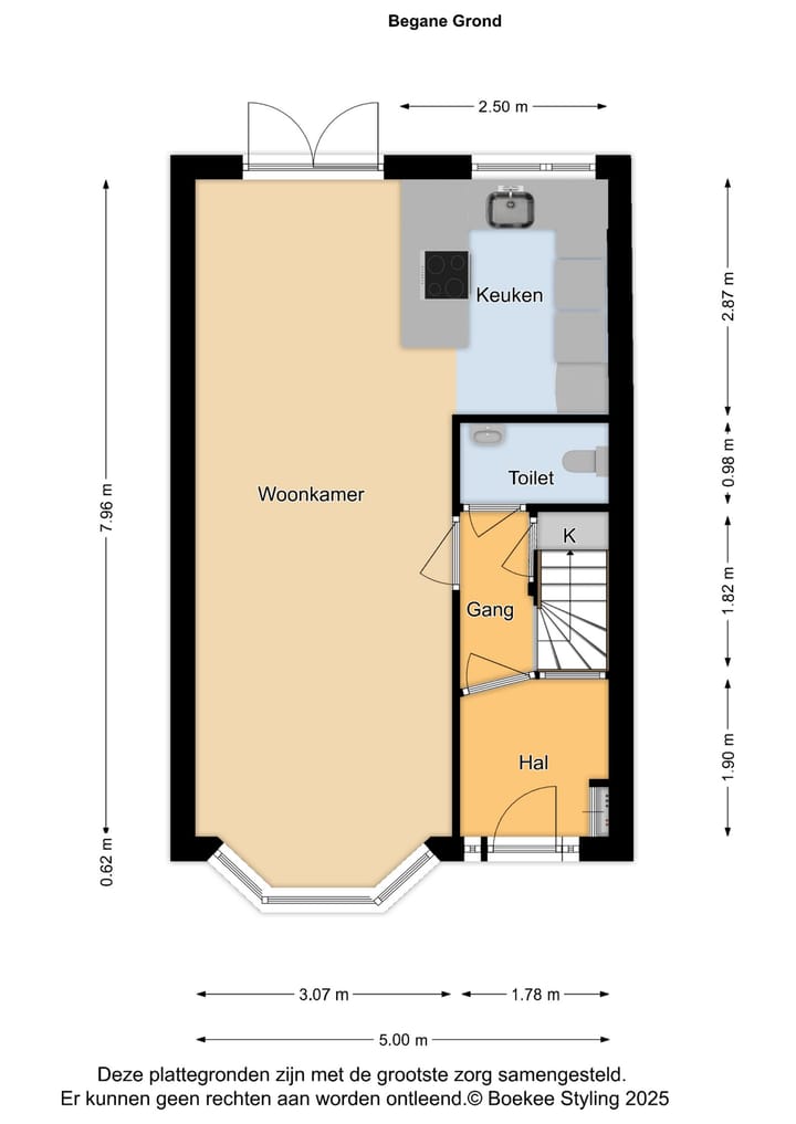
Parterre:
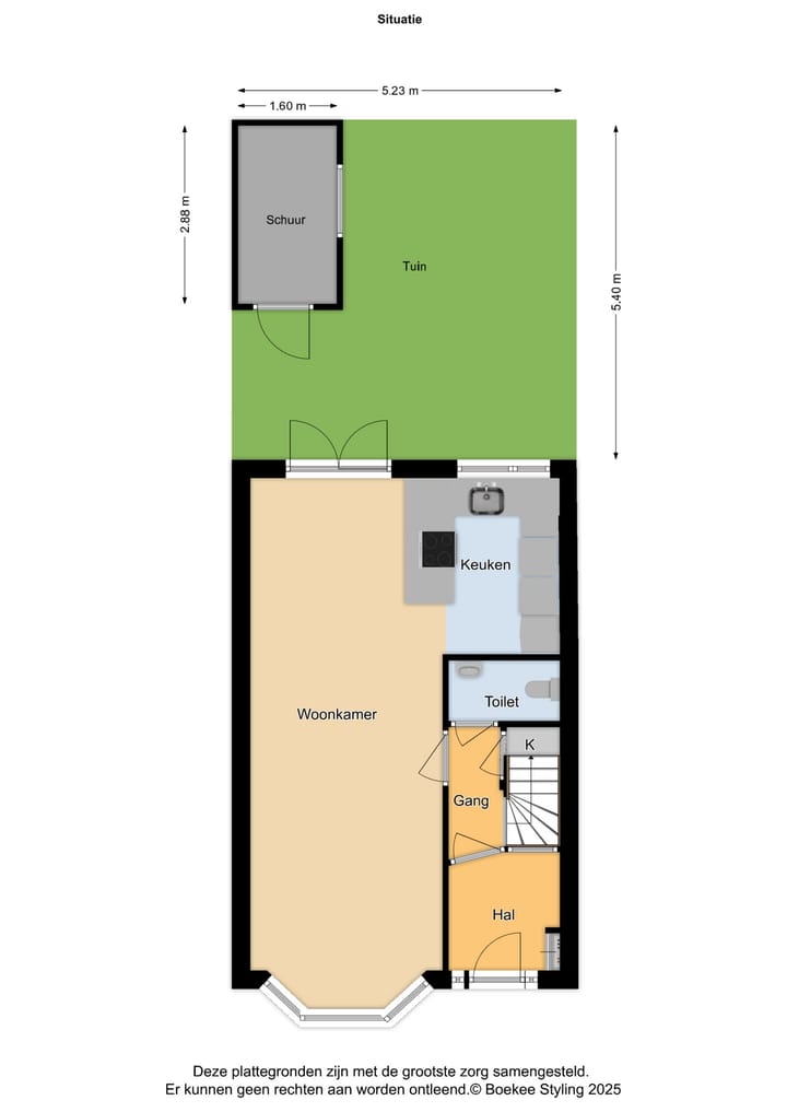
Entree, hal met vernieuwde meterkast; gang met trapopgang; bergruimte onder trap en modern toilet met fontein; ruime, lichte woonkamer met sfeervolle erker aan de voorzijde; openslaande deuren naar de zonnige achtertuin; open keuken voorzien van diverse inbouwapparatuur (combimagnetron, inductiekookplaat met oven wijnklimaatkast, koelvriescombinatie en Quooker); vrijstaande stenen berging achterin de tuin.
1e verdieping:
Overloop; twee slaapkamers aan de voorzijde; ruime slaapkamer aan de achterzijde met ingebouwde kastenwand; luxe badkamer met inloopdouche, wastafelmeubel met inbouwkranen en tweede toilet.
Bijzonderheden:
* Woonoppervlakte: ca. 81 m²
* Perceeloppervlakte: 80 m²
* Bouwjaar: 1926
* Fundering volledig hersteld en voorzien van stalen buispalen
* Dak volledig vernieuwd (2023)
* Gehele woning geschilderd (2024)
* Mogelijkheid tot het realiseren van een extra opbouw
* Verwarming en warm water via CV-ketel; benedenverdieping voorzien van comfortabele vloerverwarming
* Gebruikelijke verkoopclausules van toepassing, raadpleegt u hiervoor onze brochure.
Oplevering in overleg
Kom snel een kijkje nemen en laat je verrassen door deze sfeervolle woning!
Interesse? Maak direct een afspraak voor een bezichtiging.
---------------------------------------------------------------------------------------------------------------------------
Charming, move-in ready 1930s house in the popular Amsterdam neighborhood!
Are you looking for an attractive, move-in ready house with character and modern comfort? Then this completely renovated 1930s terraced house is exactly what you are looking for!
This beautiful house has original stained glass windows, a spacious and modern open kitchen with various built-in appliances and a Quooker plus a neatly landscaped sunny garden facing west. The house contains three bedrooms and a luxurious bathroom with walk-in shower, stylish washbasin and a second toilet.
Location:
Situated in the popular Amsterdam neighborhood, you live here within walking distance of supermarkets, playgrounds, schools, sports facilities and the cozy shopping street "de Amsterdamstraat". In just 5 minutes by bike you are in the middle of the bustling center of Haarlem. The Reinaldapark is also around the corner, ideal for a walk or sporting activities. The accessibility is excellent, with NS stations Haarlem and Spaarnwoude nearby and fast arterial roads to Amsterdam, Alkmaar, Schiphol and The Hague. Even the beach can be reached by bike in 20 minutes!
Layout:
Ground floor:
Entrance, hall with renovated meter cupboard; hallway with staircase; storage space under stairs and modern toilet with washbasin; spacious, bright living room with attractive bay window at the front; patio doors to the sunny back garden; open kitchen equipped with various built-in appliances (combination microwave, induction hob with oven, wine climate cabinet, fridge-freezer and Quooker); detached stone storage room at the back of the garden.
1st floor:
Landing; two bedrooms at the front; spacious bedroom at the rear with built-in wardrobe; luxury bathroom with walk-in shower, washbasin with built-in taps and second toilet.
Details:
* Living area: approx. 81 m²
* Plot area: 80 m²
* Year of construction: 1926
* Foundation completely repaired and fitted with steel tube piles
* Roof completely renewed (2023)
* Entire house painted (2024)
* Possibility of realizing an additional extension
* Heating and hot water via central heating boiler; ground floor equipped with comfortable underfloor heating
* Usual sales clauses apply, please consult our brochure for this.
Delivery in consultation
Come take a look soon and be surprised by this attractive home!
Interested? Make an appointment for a viewing right away.
Kenmerken
Overdracht
- Laatste vraagprijs
- € 550.000 kosten koper
- Vraagprijs per m²
- € 6.790
- Status
- Verkocht
Bouw
- Soort woonhuis
- Eengezinswoning, tussenwoning
- Soort bouw
- Bestaande bouw
- Bouwjaar
- 1926
- Soort dak
- Plat dak bedekt met bitumineuze dakbedekking
Oppervlakten en inhoud
- Gebruiksoppervlakten
- Wonen
- 81 m²
- Externe bergruimte
- 5 m²
- Perceel
- 80 m²
- Inhoud
- 299 m³
Indeling
- Aantal kamers
- 4 kamers (3 slaapkamers)
- Aantal badkamers
- 1 badkamer en 1 apart toilet
- Badkamervoorzieningen
- Inloopdouche, toilet, en wastafelmeubel
- Aantal woonlagen
- 2 woonlagen
- Voorzieningen
- Glasvezelkabel
Energie
- Energielabel
- D
- Isolatie
- Dubbel glas en vloerisolatie
- Verwarming
- Cv-ketel en gedeeltelijke vloerverwarming
- Warm water
- Cv-ketel
- Cv-ketel
- Intergas (gas gestookt combiketel, eigendom)
Kadastrale gegevens
- HAARLEM P 373
- Kadastrale kaart
- Oppervlakte
- 80 m²
- Eigendomssituatie
- Volle eigendom
Buitenruimte
- Ligging
- Aan rustige weg en in woonwijk
- Tuin
- Achtertuin
- Achtertuin
- 28 m² (5,40 meter diep en 5,23 meter breed)
- Ligging tuin
- Gelegen op het westen
Bergruimte
- Schuur/berging
- Vrijstaande stenen berging
- Voorzieningen
- Elektra
Parkeergelegenheid
- Soort parkeergelegenheid
- Openbaar parkeren
Foto's 39
© 2001-2025 funda






































