
Omschrijving
Welkom bij Stuverstraat 6 in Haarlem, een woning die direct in het oog springt dankzij de charmante voorgevel met prachtige knipvoeg. Deze authentieke uitstraling zet de toon voor wat je binnen te wachten staat.
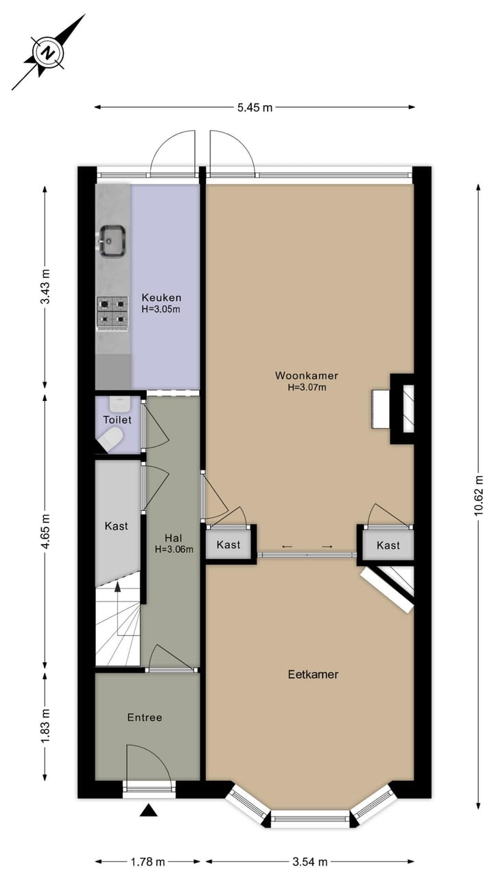
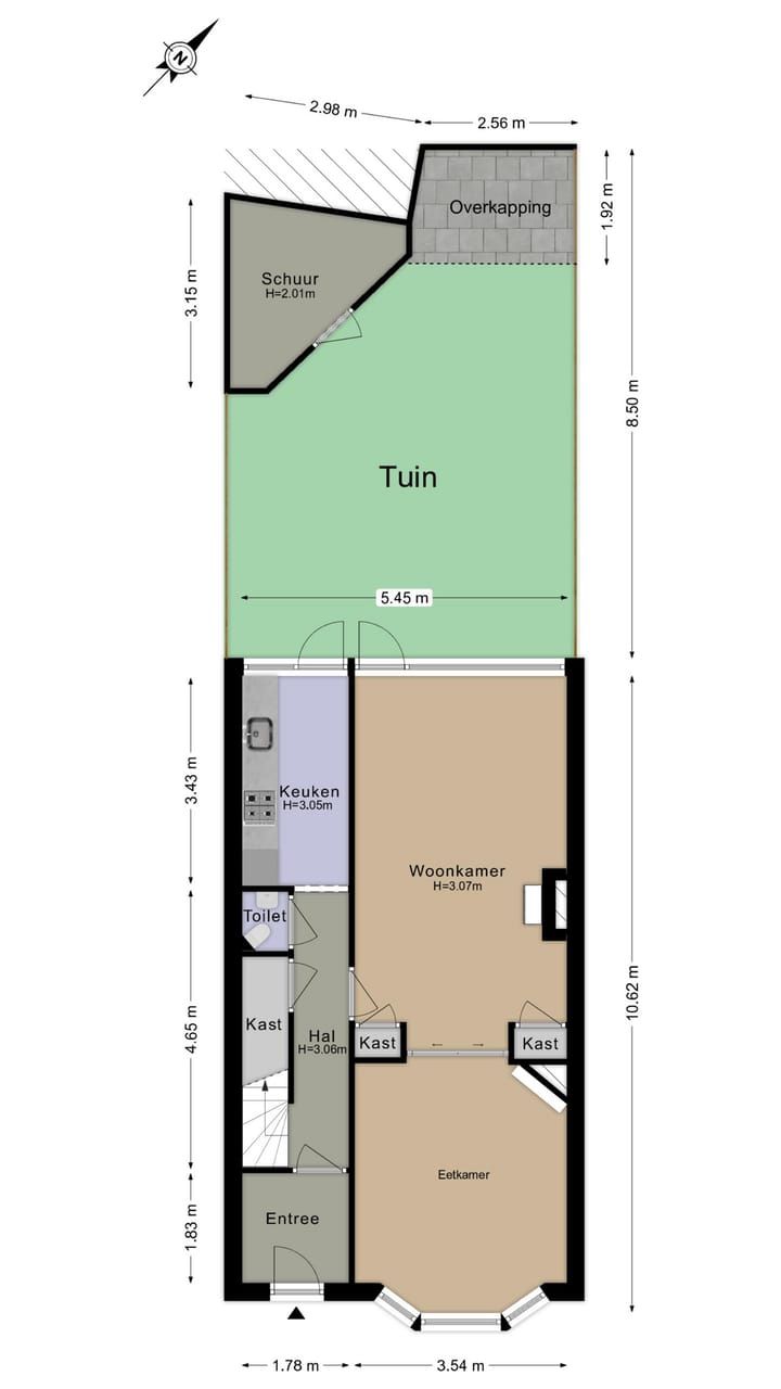
De woonkamer verwelkomt je met originele details zoals een erker, glas in lood, stijlvolle en suite deuren, marmeren schouwen, paneeldeuren en plafond ornamenten. Vanuit hier loop je door naar de tuin, een fijne plek op het noordwesten waar je van de zon kunt genieten. De overkapping biedt beschutting en de berging zorgt voor praktische opslagruimte.
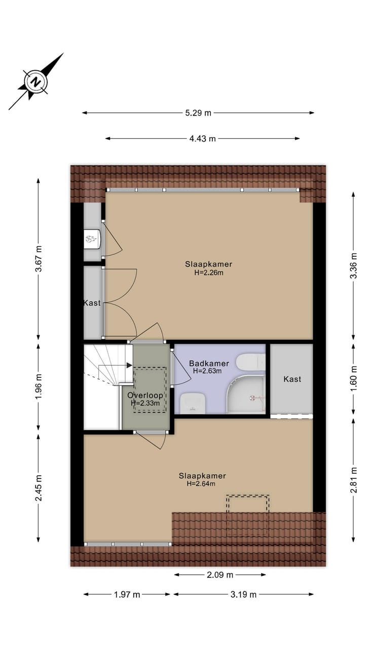
Boven vind je volop ruimte met vier royale slaapkamers en een kleinere kamer die ideaal is als kantoor of opbergplek. Met twee badkamers heb je alle luxe en gemak die je nodig hebt. De badkamer op de 1e verdieping beschikt over vloerverwarming. Dankzij de opbouw uit 2012 en goede isolatie, inclusief dak- en vloerisolatie, biedt de woning modern wooncomfort met een energielabel B.
De ligging maakt het plaatje compleet. Je woont in een gezellige buurt met vaarwater aan het einde van de straat. Bovendien wandel je zo naar het bruisende centrum van Haarlem, met zijn winkels, restaurants en cultuur.
Kortom, een fijne woning met veel sterke punten:
• Charmante woonkamer met originele erker, glas in lood, en suite en meer
• Fijne tuin op het noordwesten met overkapping en berging
• Vier grote slaapkamers en één kleinere kamer voor kantoor of opbergruimte
• Twee badkamers met toilet
• Opbouw uit 2012
• Goed geïsoleerd met dak- en vloerisolatie (energielabel B)
• Hele fijne buurt met vaarwater aan het einde van de straat
• Op loopafstand van het bruisende centrum van Haarlem
Indeling, afmetingen en woning in 3D!
Beleef deze woning nu alvast virtueel, in 3D. Loop door de woning heen, kijk van een afstand of zoom in. Onze virtuele tour, de -360 graden- foto's, de video en de plattegronden geven je een compleet beeld van de indeling, afmetingen en het design.
Leef heerlijk in het Garenkokerskwartier
Aan de rand van hartje centrum, steek de brug over en je staat midden in het vernieuwde Raaksgebied met een supermarkt (AH), winkels, restaurants, de Jopenkerk en de bioscoop met z’n vele zalen. Daar begint ook gelijk het centrum van Haarlem, met een keur aan prachtige winkels, uitstekende restaurants, barretjes en pleinen met terrassen. Lopend, of met de fiets bereik je al binnen enkele minuten het NS-station en met een beetje doortrappen (20 minuutjes) ben je al in de duinen of sta je met je voeten op het strand.
Liever met de auto? Parkeren kun je voor de deur (vergunningstelsel) en binnen enkele minuten autorijden bereik je de belangrijkste uitvalswegen Randweg en A9. Diverse busverbindingen en haltes zijn bijna letterlijk om de hoek. Kortom, een heerlijke buurt om rustig te wonen en toch direct aan de rand van de fraaie oude binnenstad.
Goed om te weten:
- Bouwkundig gekeurde woning, rapport ter inzage
- Woonoppervlakte: ca. 143.8m2 (NEN- meetrapport)
- Gebouwd rond 1913 op 112m2 eigen grond en een fundering op houten palen
- Verwarming en warm water via een Remeha c.v.-ketel uit 2019
- Energielabel B, voorzien van Tonzon vloerisolatie, dakisolatie en isolerende beglazing
- Oplevering in overleg, bij voorkeur april
English
Welcome to Stuverstraat 6 in Haarlem, a home that immediately catches the eye thanks to the charming facade with beautiful cut joints. This authentic look sets the tone for what awaits you inside.
The living room welcomes you with original details such as a bay window, stained glass, stylish en suite doors, marble fireplaces, panelled doors and ceiling ornaments. From here you walk through to the garden, a nice spot on the northwest where you can enjoy the sun. The canopy offers shelter and the storage room provides practical storage space.
Upstairs you will find plenty of space with four spacious bedrooms and a smaller room that is ideal as an office or storage space. With two bathrooms you have all the luxury and convenience you need. The bathroom on the 1st floor has underfloor heating. Thanks to the construction from 2012 and good insulation, including roof and floor insulation, the home offers modern living comfort with an energy label B.
The location completes the picture. You live in a pleasant neighborhood with a waterway at the end of the street. In addition, you can walk to the bustling center of Haarlem, with its shops, restaurants and culture.
In short, a nice house with many strong points:
• Charming living room with original bay window, stained glass, en suite and more
• Nice garden on the northwest with canopy and storage
• Four large bedrooms and one smaller room for office or storage space
• Two bathrooms with toilet
• Extension from 2012
• Well insulated with roof and floor insulation (energy label B)
• Very nice neighborhood with waterway at the end of the street
• Within walking distance of the bustling center of Haarlem
Layout, dimensions and house in 3D!
Experience this house now virtually, in 3D. Walk through the house, look from a distance or zoom in. Our virtual tour, the -360 degree photos, the video and the floor plans give you a complete picture of the layout, dimensions and design.
Live wonderfully in the Garenkokerskwartier
On the edge of the city centre, cross the bridge and you are in the middle of the renovated Raaks area with a supermarket (AH), shops, restaurants, the Jopenkerk and the cinema with its many halls. That is also where the centre of Haarlem begins, with a variety of beautiful shops, excellent restaurants, bars and squares with terraces. On foot or by bike you can reach the NS station within a few minutes and with a bit of pedalling (20 minutes) you are already in the dunes or standing with your feet on the beach.
Prefer to go by car? You can park in front of the door (permit system) and within a few minutes by car you can reach the main arterial roads Randweg and A9. Various bus connections and stops are almost literally around the corner. In short, a wonderful neighbourhood to live quietly and yet right on the edge of the beautiful old city centre.
Good to know:
- Building inspected home, report available
- Living area: approx. 143.8m2 (NEN measurement report)
- Built around 1913 on 112m2 of private land and a foundation on wooden piles
- Heating and hot water via a Remeha central heating boiler from 2019
- Energy label B, equipped with Tonzon floor insulation, roof insulation and insulating glazing
- Delivery date by mutual agreement, preferably April
Kenmerken
Overdracht
- Laatste vraagprijs
- € 895.000 kosten koper
- Vraagprijs per m²
- € 6.215
- Status
- Verkocht
Bouw
- Soort woonhuis
- Eengezinswoning, tussenwoning
- Soort bouw
- Bestaande bouw
- Bouwjaar
- 1913
- Soort dak
- Samengesteld dak bedekt met bitumineuze dakbedekking en pannen
- Keurmerken
- Bouwkundige Keuring
Oppervlakten en inhoud
- Gebruiksoppervlakten
- Wonen
- 144 m²
- Gebouwgebonden buitenruimte
- 8 m²
- Externe bergruimte
- 6 m²
- Perceel
- 112 m²
- Inhoud
- 538 m³
Indeling
- Aantal kamers
- 6 kamers (4 slaapkamers)
- Aantal badkamers
- 2 badkamers en 1 apart toilet
- Badkamervoorzieningen
- 2 douches, ligbad, 2 toiletten, wastafelmeubel, en wastafel
- Aantal woonlagen
- 3 woonlagen
- Voorzieningen
- Dakraam, glasvezelkabel, en natuurlijke ventilatie
Energie
- Energielabel
- B
- Isolatie
- Dakisolatie, grotendeels dubbelglas, muurisolatie, vloerisolatie en voorzetramen
- Verwarming
- Cv-ketel en gedeeltelijke vloerverwarming
- Warm water
- Cv-ketel
- Cv-ketel
- Remeha (gas gestookt combiketel uit 2019, eigendom)
Kadastrale gegevens
- HAARLEM A 3787
- Kadastrale kaart
- Oppervlakte
- 112 m²
- Eigendomssituatie
- Volle eigendom
Buitenruimte
- Ligging
- Aan rustige weg en in woonwijk
- Tuin
- Achtertuin
- Achtertuin
- 44 m² (8,50 meter diep en 5,45 meter breed)
- Ligging tuin
- Gelegen op het noordwesten
- Balkon/dakterras
- Balkon aanwezig
Bergruimte
- Schuur/berging
- Vrijstaande houten berging
- Voorzieningen
- Elektra
Parkeergelegenheid
- Soort parkeergelegenheid
- Betaald parkeren en parkeervergunningen
Foto's 44
© 2001-2025 funda











































