
Omschrijving
Welkom bij deze charmante starterswoning gelegen in het rustige buitengebied van Haelen! Deze gezellige twee-onder-een-kapwoning is perfect voor starters die op zoek zijn naar een comfortabele plek met extra ruimte en vrijheid.
Hier is wat je kunt verwachten:
Begane grond:
Bij binnenkomst word je verwelkomd door een hal met een gastentoilet en een meterkast. De woonkamer is heerlijk licht dankzij de grote ramen aan de voor- en achterzijde. De keuken, met uitzicht op de tuin is voorzien van een hoekkeuken (2000) met inbouwapparatuur, grenst aan de woonkamer en biedt toegang tot de inpandige garage, waar ook de witgoedaansluitingen te vinden zijn.
Buiten:
Met een ruim perceel van 351 m2, beschik je over een royale oprit en een prachtige achtertuin die grenst aan landerijen, waardoor je kunt genieten van een vrij uitzicht. De oprit biedt plaats aan maar liefst 3 auto's. In de zonnige achtertuin op het zuidwesten kun je genieten van de zon het uitzicht in de fraai aangelegde tuin.
Extra's:
Op slechts een steenworp afstand van de woning vind je een stalen garagebox, ideaal voor het stallen van een auto, motor of als hobbyruimte.
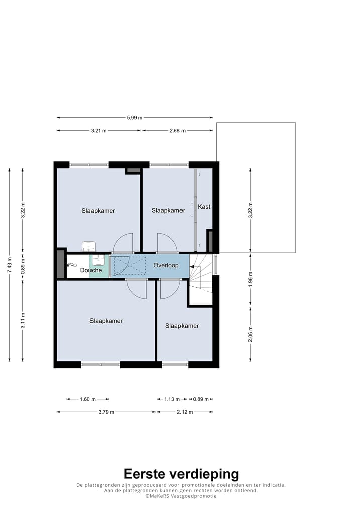
1e Verdieping:
Op deze verdieping bevinden zich een overloop, 4 ruime slaapkamers en de badkamer. De badkamer is keurig onderhouden en voorzien van een wastafel en een douche.
2e Verdieping:
Via een vlizotrap bereik je de zolder, die voldoende ruimte biedt voor opslag. Er bestaat ook de mogelijkheid om een vaste trap naar de zolder te realiseren.
Bijzonderheden:
- Goed onderhouden woning
- Royale achtertuin met vrij uitzicht
- Kunststof kozijnen
- Woonhuis met separate garagebox
- Een 2e garagebox te koop voor € 15.000,-
- Eenvoudig te verduurzamen
Kenmerken:
- Inhoud: 433 m3
- Woonoppervlakte: 89 m2
- Perceeloppervlakte: 378 m2
- Bouwjaar: 1960
- Aanvaarding: in overleg
Mis deze kans niet om te genieten van het comfortabele wonen in het prachtige buitengebied van Haelen. Neem vandaag nog contact met ons op voor een bezichtiging!
Kenmerken
Overdracht
- Laatste vraagprijs
- € 295.000 kosten koper
- Vraagprijs per m²
- € 3.315
- Status
- Verkocht
Bouw
- Soort woonhuis
- Eengezinswoning, geschakelde 2-onder-1-kapwoning
- Soort bouw
- Bestaande bouw
- Bouwjaar
- 1960
- Soort dak
- Zadeldak bedekt met pannen
Oppervlakten en inhoud
- Gebruiksoppervlakten
- Wonen
- 89 m²
- Overige inpandige ruimte
- 35 m²
- Externe bergruimte
- 15 m²
- Perceel
- 411 m²
- Inhoud
- 433 m³
Indeling
- Aantal kamers
- 6 kamers (4 slaapkamers)
- Aantal badkamers
- 1 badkamer en 1 apart toilet
- Badkamervoorzieningen
- Douche en wastafel
- Aantal woonlagen
- 2 woonlagen en een zolder
Energie
- Energielabel
- E
- Verwarming
- Cv-ketel
- Warm water
- Cv-ketel
- Cv-ketel
- Vaillant (gas gestookt combiketel uit 2019, eigendom)
Kadastrale gegevens
- HAELEN B 2181
- Kadastrale kaart
- Oppervlakte
- 251 m²
- Eigendomssituatie
- Volle eigendom
- HAELEN B 2373
- Kadastrale kaart
- Oppervlakte
- 95 m²
- Eigendomssituatie
- Volle eigendom
- HAELEN B 2183
- Kadastrale kaart
- Oppervlakte
- 32 m²
- Eigendomssituatie
- Volle eigendom
- HAELEN B 2184
- Kadastrale kaart
- Oppervlakte
- 33 m²
- Eigendomssituatie
- Volle eigendom
Buitenruimte
- Ligging
- Aan rustige weg en buiten bebouwde kom
- Tuin
- Achtertuin en voortuin
- Achtertuin
- 198 m² (22,00 meter diep en 9,00 meter breed)
- Ligging tuin
- Gelegen op het zuidoosten
Garage
- Soort garage
- Garagebox
- Capaciteit
- 1 auto
Parkeergelegenheid
- Soort parkeergelegenheid
- Op eigen terrein
Foto's 31
© 2001-2025 funda






























