
Omschrijving
Tussenwoning met prachtige ligging met zicht op groen en een waterpartij
Met 5 slaapkamers ideaal voor gezinnen of wie behoefte heeft aan veel ruimte.
De woning is gelegen in Wittenhagen in de woonwijk Tweelingstad. De wijk heeft diverse voorzieningen, zoals het winkelcentrum “Tweelingstad”, scholen, sportvoorzieningen en speelmogelijkheden voor kinderen. Ook het centrum van Harderwijk, het bos en uitvalswegen zijn goed te bereiken.
Met wat vernieuwingen en moderne voorzieningen in de diverse ruimtes waaronder de keuken en badkamer kan de woning volledig naar eigen smaak en behoeften worden ingericht door de nieuwe bewoners.
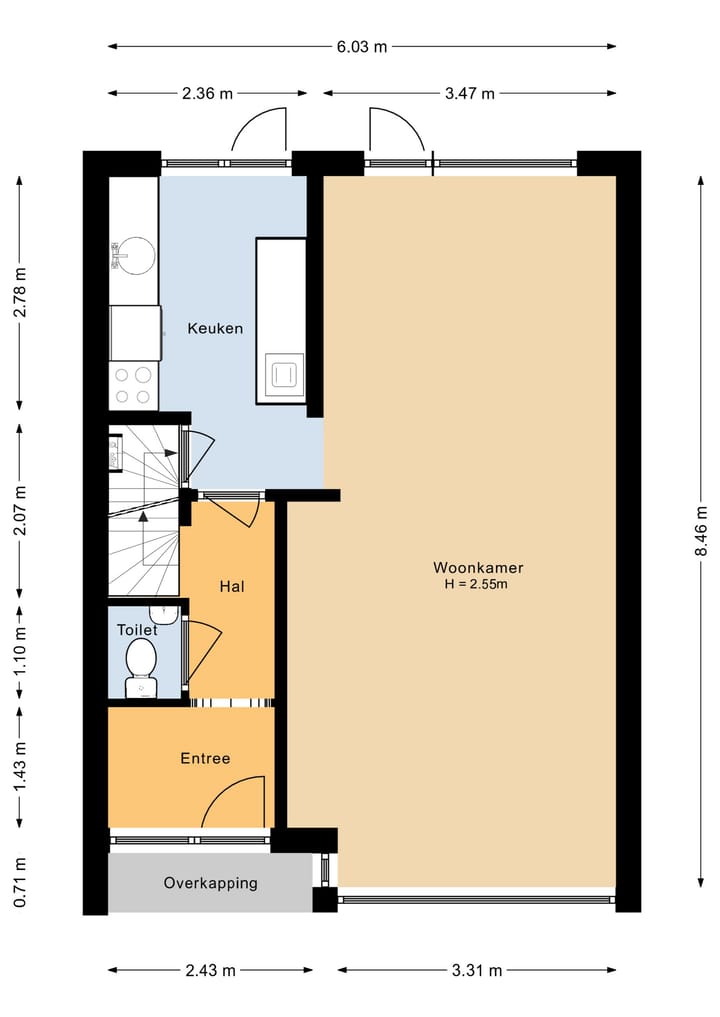
Op de begane grond bevindt zich een lichte doorzoonwoonkamer met open verbinding naar de keuken. Ideaal is de grote provisiekelder met stahoogte onder het huis.
Op de eerste verdieping zijn 4 slaapkamers en de badkamer en met wastafel met meubel, douche en het tweede toilet. Twee slaapkamers zijn ruim van opzet waarvan er één toegang geeft tot een zonnig balkon.
De tweede verdieping (zolder) is ingedeeld met een ruime slaapkamer voorzien van wastafel, dakkapel en dakraam, wasruimte met opstelplaats van de cv-installatie (2021) en aansluiting voor de wasmachine. De extra bergruimte is ideaal voor extra opslag en spullen die je niet dagelijks nodig hebt.
De diepe achtertuin (ruim 11 meter) met achterom, is gelegen op het noorden wat betekent dat je kunt genieten van zowel zon als schaduw gedurende de dag, afhankelijk van het seizoen. De vrijstaande stenen berging heeft voldoende ruimte voor het opbergen van fietsen en bijvoorbeeld tuinaccessoires. De achtertuin is zowel vanuit de keuken als de woonkamer bereikbaar.
Garagebox:
De nieuwe eigenaar heeft de mogelijkheid een garagebox te huren op loopafstand (circa 200 meter) van de woning.
De kosten bedragen € 125,00 per maand (onder voorbehoud van wijzigingen).
De aanvraag hiervoor wordt geregeld door de huidige eigenaar van de woning.
Deze woning is in 1961 gebouwd, voorzien van dubbel glas, dakisolatie, 8 zonnepanelen en heeft een energielabel A. De perceeloppervlakte bedraagt 196 m².
Indeling:
Kelder
Begane grond: entree, hal met toilet en trapopgang, woonkamer en keuken
Eerste verdieping: overloop, 4 slaapkamer en badkamer
Tweede verdieping: overloop, slaapkamer, wasruimte en berging
De aansprekende punten van deze woning zijn o.a.:
- Ruime tussenwoning;
- 5 slaapkamers;
- Veel potentieel voor een gezin;
- Vrij zicht op groen en waterpartij;
- Sanitair en keuken zijn toe aan modernisering;
- Zonnepanelen (8) geplaatst in 2020;
- Energielabel A;
- Kunststof kozijnen aan de voorzijde (2008);
- Ruim perceel met voor- en achtertuin;
- Garagebox te huur;
- Diverse voorzieningen in de omgeving.
Ben jij net zo enthousiast geworden als wij en wil je deze prachtige woning met eigen ogen zien? Maak dan snel een afspraak voor een persoonlijke bezichtiging. We leiden je graag rond door dit mooie thuis en beantwoorden al je vragen.
Kenmerken
Overdracht
- Oorspronkelijke vraagprijs
- € 425.000 kosten koper
- Laatste vraagprijs
- € 398.500 kosten koper
- Vraagprijs per m²
- € 3.163
- Status
- Verkocht
Bouw
- Soort woonhuis
- Eengezinswoning, tussenwoning
- Soort bouw
- Bestaande bouw
- Bouwjaar
- 1961
- Soort dak
- Zadeldak bedekt met pannen
Oppervlakten en inhoud
- Gebruiksoppervlakten
- Wonen
- 126 m²
- Overige inpandige ruimte
- 17 m²
- Gebouwgebonden buitenruimte
- 7 m²
- Externe bergruimte
- 9 m²
- Perceel
- 196 m²
- Inhoud
- 481 m³
Indeling
- Aantal kamers
- 6 kamers (5 slaapkamers)
- Aantal badkamers
- 1 badkamer en 1 apart toilet
- Badkamervoorzieningen
- Douche, toilet, wastafel, en wastafelmeubel
- Aantal woonlagen
- 3 woonlagen en een kelder
- Voorzieningen
- Dakraam, glasvezelkabel, en zonnepanelen
Energie
- Energielabel
- A
- Isolatie
- Dakisolatie en dubbel glas
- Verwarming
- Cv-ketel
- Warm water
- Cv-ketel
- Cv-ketel
- Intergas (gas gestookt combiketel uit 2021, eigendom)
Kadastrale gegevens
- HARDERWIJK D 4978
- Kadastrale kaart
- Oppervlakte
- 196 m²
- Eigendomssituatie
- Volle eigendom
Buitenruimte
- Ligging
- In woonwijk
- Tuin
- Achtertuin en voortuin
- Achtertuin
- 75 m² (11,26 meter diep en 6,63 meter breed)
- Ligging tuin
- Gelegen op het noorden bereikbaar via achterom
- Balkon/dakterras
- Balkon aanwezig
Bergruimte
- Schuur/berging
- Vrijstaande stenen berging
Parkeergelegenheid
- Soort parkeergelegenheid
- Openbaar parkeren
Foto's 60
© 2001-2025 funda



























































