
Omschrijving
Moderne hoekwoning met vrij uitzicht en veel privacy in een rustige buurt.
Deze moderne hoekwoning, gelegen op een rustig perceel van 208 m² heeft veel voordelen. De woning beschikt over een aangebouwde overkapping en berging en heeft een prachtig vrij uitzicht. In de achtertuin geniet je van veel privacy.
Schuin tegenover de woning ligt een groene strook en aan de voorzijde is er een parkeerterrein, wat voor gemak zorgt. De woning is gelegen in een kindvriendelijke buurt, met diverse voorzieningen op korte afstand, zoals scholen, winkels en openbaar vervoer. Dit alles maakt het een ideale plek om te wonen.
Via de verzorgde voortuin bereik je de entree van de woning. De lichte woonkamer biedt een vrij uitzicht en een fijne sfeer. De keuken is uitgerust met moderne inbouwapparatuur, waaronder een gasfornuis met afzuigkap, een koelkast en een vaatwasser.
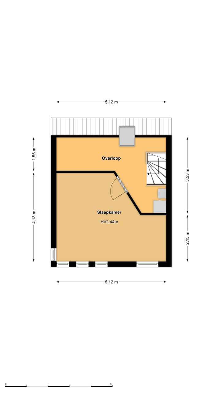
Op de eerste verdieping bevindt zich een ruime overloop, die toegang biedt tot drie slaapkamers en de badkamer. De badkamer is volledig betegeld en beschikt over een ligbad met douche, een wastafel met meubel en een toilet.
Via een vaste trap bereik je de tweede verdieping/zolder, waar een vierde slaapkamer is gerealiseerd. Deze royale kamer biedt veel mogelijkheden en is ideaal als slaap- of werkkamer. Op de overloop van de zolder bevinden zich de aansluitingen voor de wasmachine, de cv-installatie en de mechanische ventilatie.
Buitenruimte
De overkapping aan de achterzijde van de woning, aangebracht in 2012, is een verlengstuk van de woning en biedt extra leefruimte. Hierdoor kun je het hele jaar door genieten van de buitenlucht. De fraai aangelegde achtertuin is voorzien van een nieuwe schutting (gedeeltelijk vernieuwd in 2024) en grenst aan veel openbaar groen, wat zorgt voor een gevoel van privacy en rust. De tuin is gunstig gelegen op het westen, waardoor je hier de hele middag en avond van de zon kunt genieten. De tuin is ook bereikbaar via een achterom en beschikt over een berging voor extra opbergruimte.
Deze woning biedt de perfecte combinatie van privacy, ruimte en een rustige omgeving. De lichtinval, het mooie uitzicht en de kindvriendelijke buurt maken dit tot een zeer gewilde plek om te wonen.
Parkeren is dichtbij mogelijk in één van de parkeerhavens in de straat.
Deze woning uit 1995 is volledig geïsoleerd en voorzien van dubbel glas. De huidige eigenaar heeft daarbij het onderhoud altijd goed bijgehouden. De woonoppervlakte bedraagt ongeveer 111 m² en heeft een energielabel A, wat bijdraagt aan lage energiekosten
Drielanden is een geliefde en kindvriendelijke woonwijk met een eigen winkelcentrum, gezondheidscentrum, vele andere voorzieningen en meerdere basisscholen. De wijk heeft een ideale ligging en is in 2019 voorzien van het “Crescent Park”, een heel bijzonder speel- en doepark. De fietsbrug zorgt voor korte fietsverbinding met het centrum. De dichtstbijzijnde uitvalsweg in de nabije omgeving zijn op slechts 1 minuten rijden.
Indeling:
Begane grond: entree/hal met meterkast en toilet met fonteintje, keuken en woonkamer.
1e etage: overloop, 3 slaapkamers en badkamer.
2e etage: overloop en zeer royale kamer.
De aansprekende punten van deze woning zijn onder andere:
- Hoekwoning;
- Lichte woonkamer;
- 4 slaapkamers, ideaal voor een gezin of voor extra werk- of hobbyruimte;
- Modern toilet vernieuwd in 2021.
- Volledig geïsoleerd tijdens de bouw;
- Achtertuin met veel privacy;
- Airconditioning (2022) voor verkoeling en extra comfort;
- 2021-2024 binnen en buiten schilderwerk gedaan.
Kenmerken
Overdracht
- Laatste vraagprijs
- € 475.000 kosten koper
- Vraagprijs per m²
- € 4.279
- Status
- Verkocht
Bouw
- Soort woonhuis
- Eengezinswoning, hoekwoning
- Soort bouw
- Bestaande bouw
- Bouwjaar
- 1995
- Specifiek
- Gedeeltelijk gestoffeerd
Oppervlakten en inhoud
- Gebruiksoppervlakten
- Wonen
- 111 m²
- Overige inpandige ruimte
- 9 m²
- Perceel
- 208 m²
- Inhoud
- 389 m³
Indeling
- Aantal kamers
- 5 kamers (4 slaapkamers)
- Aantal badkamers
- 1 badkamer en 1 apart toilet
- Badkamervoorzieningen
- Douche, ligbad, toilet, en wastafelmeubel
- Aantal woonlagen
- 3 woonlagen
- Voorzieningen
- Glasvezelkabel en mechanische ventilatie
Energie
- Energielabel
- A
- Isolatie
- Volledig geïsoleerd
- Verwarming
- Cv-ketel
- Warm water
- Cv-ketel
- Cv-ketel
- Intergas (gas gestookt combiketel uit 2012, eigendom)
Kadastrale gegevens
- HARDERWIJK I 4525
- Kadastrale kaart
- Oppervlakte
- 208 m²
- Eigendomssituatie
- Volle eigendom
Buitenruimte
- Ligging
- In woonwijk
- Tuin
- Achtertuin en voortuin
- Achtertuin
- 8,00 meter diep en 10,00 meter breed
- Ligging tuin
- Gelegen op het westen bereikbaar via achterom
Bergruimte
- Schuur/berging
- Aangebouwde stenen berging
- Voorzieningen
- Elektra
Parkeergelegenheid
- Soort parkeergelegenheid
- Openbaar parkeren
Foto's 51
© 2001-2025 funda


















































