
Omschrijving
Uitgebouwde middenwoning met 2 bergingen (kleine en grote berging met deur naar de steeg), aangebouwde overkapping en een besloten achtertuin.
Deze woning is voorzien van een dakopbouw (waardoor er een zolderkamer is gecreëerd), isolatieglas, muur-, vloer- en dakisolatie, ruime woonkamer, keuken met inbouwapparatuur, bijkeuken, badkamer met douche en wastafel en 4 slaapkamers.
De woning is gelegen in de kindvriendelijke woonwijk Stadsdennen. De locatie kenmerkt zich door de goede ligging nabij het winkelcentrum, diverse scholen en sportaccommodaties. Daarnaast is het historische centrum van Harderwijk gelegen op slechts enkele minuten fietsen, waar je kunt genieten van gezellige restaurants, cafés en de prachtige vernieuwde boulevard aan het water.
De woning is gebouwd in 1963, is gelegen op een perceel van 166 m², heeft een
woonoppervlakte van circa 111 m² en een energielabel D.
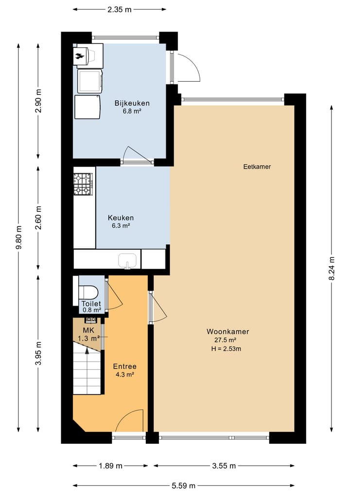
Indeling: entree, hal, meterkast, vrijhangend toilet, woonkamer, keuken (2012) met koelkast, vrieskast en gasstel en bijkeuken met cv-unit en wasmachine-aansluiting.
1e etage: overloop, 3 slaapkamers, badkamer (2005) voorzien van douche en wastafel en separaat 2e toilet.
2e etage: bereikbaar via vaste trap, overloop, slaapkamer voorzien van dakkapel en bergzoldertje bereikbaar via vlizotrap.
De aansprekende punten van deze woning zijn o.a.:
- gunstig gelegen nabij uitvalswegen, scholen, winkelcentrum;
- door uitbouw en dakopbouw veel ruimte;
- kleine en grote berging;
- 4 slaapkamers;
- woonoppervlakte van circa 111 m²;
- kavel van 149 m²;
Kenmerken
Overdracht
- Laatste vraagprijs
- € 398.500 kosten koper
- Vraagprijs per m²
- € 3.590
- Status
- Verkocht
Bouw
- Soort woonhuis
- Eengezinswoning, tussenwoning
- Soort bouw
- Bestaande bouw
- Bouwjaar
- 1963
- Soort dak
- Zadeldak bedekt met pannen
Oppervlakten en inhoud
- Gebruiksoppervlakten
- Wonen
- 111 m²
- Externe bergruimte
- 18 m²
- Perceel
- 166 m²
- Inhoud
- 393 m³
Indeling
- Aantal kamers
- 5 kamers (4 slaapkamers)
- Aantal badkamers
- 1 badkamer en 1 apart toilet
- Badkamervoorzieningen
- Douche en wastafel
- Aantal woonlagen
- 3 woonlagen en een vliering
- Voorzieningen
- Glasvezelkabel, rolluiken, en TV kabel
Energie
- Energielabel
- Isolatie
- Dakisolatie, dubbel glas, muurisolatie en vloerisolatie
- Verwarming
- Cv-ketel
- Warm water
- Cv-ketel
- Cv-ketel
- Intergas Kombi Kompakt HRE 28/24A CW4 (gas gestookt combiketel uit 2020, huur)
Kadastrale gegevens
- HARDERWIJK D 8477
- Kadastrale kaart
- Oppervlakte
- 166 m²
- Eigendomssituatie
- Volle eigendom
Buitenruimte
- Ligging
- Aan rustige weg en in woonwijk
- Tuin
- Achtertuin en voortuin
- Achtertuin
- 51 m² (8,50 meter diep en 6,00 meter breed)
- Ligging tuin
- Gelegen op het noorden bereikbaar via achterom
Bergruimte
- Schuur/berging
- Vrijstaande stenen berging
- Voorzieningen
- Elektra
Parkeergelegenheid
- Soort parkeergelegenheid
- Openbaar parkeren
Foto's 54
© 2001-2026 funda





















































