
Omschrijving
Van Meurshof 2 in Heerde: Stijlvol wonen in het dorpshart van Heerde
Duurzaam, ruim én klaar voor jouw eigen afwerking
Welkom bij Van Meurshof 2: een moderne, uitgebouwde twee-onder-een-kapwoning in het gezellige dorpscentrum van Heerde. Deze energiezuinige woning combineert comfort, ruimte en hoogwaardige techniek met de vrijheid om zelf de afwerking te bepalen. De perfecte plek voor wie klaar is voor een toekomstbestendige en instapklare basis.
Wat maakt deze woning bijzonder?
- Royale uitbouw van 2.40 meter: creëer hier jouw eigen heerlijke woonkeuken
- Energielabel A+++: superzuinig en toekomstbestendig
- 3 zonnepanelen en een luchtwarmtepomp (met extra groot 300 liter boilervat)
- Vloerverwarming én -koeling op de begane grond en 1e verdieping
- Gebalanceerde ventilatie met WTW-systeem
- Loze leidingen voor o.a. screens, extra stopcontacten
- Onderhoudsarme kunststof kozijnen met HR++ beglazing
Indeling begane grond:
Zij-entree, hal, meterkast, modern toilet met fonteintje, trapkast. Ruime L-vormige woonkamer met veel licht. De royale woonkeuken is al voorzien van aansluitpunten – klaar voor jouw droomkeuken!
1e verdieping:
Drie slaapkamers, waarvan één met een extra aansluiting voor een wastafel en aansluiting voor wasmachine en (condens)droger. Luxe badkamer met inloop-stortdouche, ligbad, wastafelmeubel en elektrische radiator. Separaat 2e toilet met fonteintje.
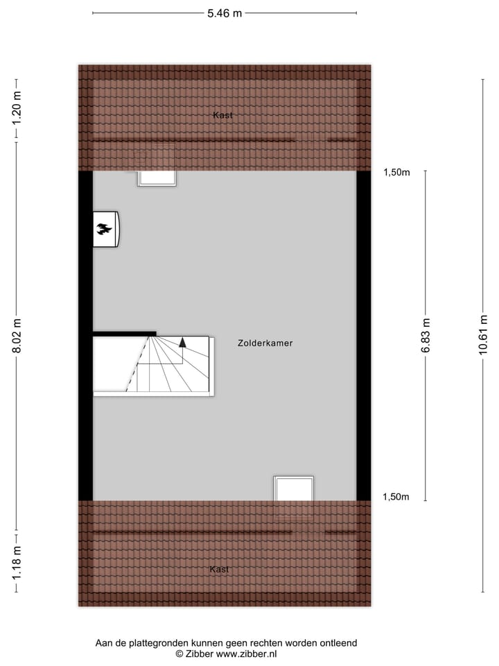
2e verdieping:
vaste trap naar een grote zolderverdieping, ideaal voor één of meerdere extra kamers. Hier vind je ook de warmtepompinstallatie, vloerverwarmingsverdeler en aansluitingen voor wasmachine en droger. De beide tuimelramen zorgen voor daglicht.
Buitenruimte & voorzieningen:
- Vrijstaande houten berging met elektra en betonnen vloer
- Warmtepomp buitenunit netjes achter de berging geplaatst
- Eigen parkeervak op de gezamenlijke parkeerplaats middels een erfdienstbaarheid
- Ruime tuin, ideaal om naar eigen wens in te richten
Samengevat:
Van Meurshof 2 biedt je een comfortabele, energiezuinige woning met ruimte, licht en moderne techniek. De woning is grotendeels instapklaar en biedt tegelijkertijd volop mogelijkheden om je eigen stijl eraan toe te voegen. Een woning die helemaal klaar is voor de toekomst — en voor jou!
De woning is gebouwd met SWK garantie.
Kenmerken
Overdracht
- Laatste vraagprijs
- € 598.000 kosten koper
- Vraagprijs per m²
- € 3.602
- Status
- Verkocht
Bouw
- Soort woonhuis
- Eengezinswoning, 2-onder-1-kapwoning
- Soort bouw
- Bestaande bouw
- Bouwjaar
- 2025
- Soort dak
- Zadeldak bedekt met pannen
Oppervlakten en inhoud
- Gebruiksoppervlakten
- Wonen
- 166 m²
- Externe bergruimte
- 5 m²
- Perceel
- 229 m²
- Inhoud
- 589 m³
Indeling
- Aantal kamers
- 5 kamers (3 slaapkamers)
- Aantal badkamers
- 1 badkamer en 1 apart toilet
- Badkamervoorzieningen
- Inloopdouche, ligbad, en wastafelmeubel
- Aantal woonlagen
- 3 woonlagen
- Voorzieningen
- Mechanische ventilatie en zonnepanelen
Energie
- Energielabel
- A+++
- Isolatie
- Volledig geïsoleerd
- Verwarming
- Gedeeltelijke vloerverwarming, warmte terugwininstallatie en warmtepomp
- Warm water
- Elektrische boiler
Kadastrale gegevens
- HEERDE K 8822
- Kadastrale kaart
- Oppervlakte
- 229 m²
- Eigendomssituatie
- Volle eigendom
Buitenruimte
- Ligging
- Aan rustige weg, in centrum en in woonwijk
- Tuin
- Achtertuin en voortuin
- Achtertuin
- 90 m² (13,50 meter diep en 8,40 meter breed)
- Ligging tuin
- Gelegen op het oosten bereikbaar via achterom
Bergruimte
- Schuur/berging
- Vrijstaande houten berging
- Voorzieningen
- Elektra
Parkeergelegenheid
- Soort parkeergelegenheid
- Op eigen terrein
Foto's 41
© 2001-2025 funda








































