
Omschrijving
Regent Makelaars biedt een vrijstaande tweekapper met garage aan in een gezellige straat in Heerenveen. Deze woning met drie slaapkamers ligt nabij het centrum van Heerenveen en op loopafstand van voorzieningen als de supermarkt en verenigingsleven. Achter de woning zit een hofje, waar parkeren voor gasten mogelijk is. Ook liggen uitvalswegen om de hoek.
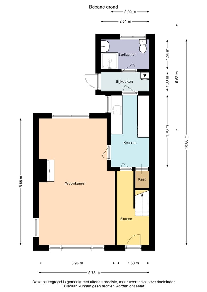
Indeling:
Via de entree/hal met meterkast en trapopgang bereikt u de keukenruimte. Deze ruimte is voorzien van een dichte keuken met vaatwasser, oven, fornuis, afzuigkap, koelkast met vriesvak en magnetron. Na deze keukenruimte vindt u de doorloop naar buiten en de opstelling van de cv-installatie en de wasmachine aansluiting. Ook vindt u hier de badkamer met douchecabine, wastafel, toilet en radiator. Naast de keukenruimte vindt u de doorzon woonkamer. Deze biedt uitzicht over de achtertuin en door de straat.
Verdieping:
De compacte overloop leidt naar de drie slaapkamers. Deze zijn voorzien van inbouwkasten en in de middelste kamer zit een wastafel.
Extra:
- Verwarming geschiedt middels een cv-systeem bouwjaar 2022;
- Grotendeels voorzien van dubbelglas en in de woonkamer glas in lood ramen;
- Vrijstaande garage aanwezig;
- Exterieur recent geschilderd 2025;
- Ruime oprit;
Kenmerken
Overdracht
- Laatste vraagprijs
- € 250.000 kosten koper
- Vraagprijs per m²
- € 3.205
- Status
- Verkocht
Bouw
- Soort woonhuis
- Eengezinswoning, 2-onder-1-kapwoning
- Soort bouw
- Bestaande bouw
- Bouwjaar
- 1936
- Soort dak
- Zadeldak bedekt met pannen
Oppervlakten en inhoud
- Gebruiksoppervlakten
- Wonen
- 78 m²
- Overige inpandige ruimte
- 3 m²
- Externe bergruimte
- 16 m²
- Perceel
- 195 m²
- Inhoud
- 305 m³
Indeling
- Aantal kamers
- 4 kamers (3 slaapkamers)
- Aantal badkamers
- 1 badkamer
- Badkamervoorzieningen
- Douche, toilet, en wastafel
- Aantal woonlagen
- 2 woonlagen en een vliering
- Voorzieningen
- Glasvezelkabel en natuurlijke ventilatie
Energie
- Energielabel
- F
- Isolatie
- Dubbel glas
- Verwarming
- Cv-ketel
- Warm water
- Cv-ketel
- Cv-ketel
- Kombi Kompact (gas gestookt uit 2022, eigendom)
Kadastrale gegevens
- HEERENVEEN A 3719
- Kadastrale kaart
- Oppervlakte
- 105 m²
- Eigendomssituatie
- Volle eigendom
- HEERENVEEN A 5757
- Kadastrale kaart
- Oppervlakte
- 28 m²
- Eigendomssituatie
- Volle eigendom
- HEERENVEEN A 6950
- Kadastrale kaart
- Oppervlakte
- 62 m²
- Eigendomssituatie
- Volle eigendom
Buitenruimte
- Ligging
- In woonwijk
- Tuin
- Achtertuin
Garage
- Soort garage
- Vrijstaande houten garage
- Capaciteit
- 1 auto
Parkeergelegenheid
- Soort parkeergelegenheid
- Op eigen terrein en openbaar parkeren
Foto's 46
© 2001-2025 funda













































