
Omschrijving
Geheel gemoderniseerde twee onder 1 kap woning, nieuwe keuken, nieuwe badkamer, fraai aangelegde tuin diepe tuin, ruime garage en zonnepanelen. De woning heeft een A label. Halfvrijstaand herenhuis met tuin op het zuid-westen, tuingerichte woonkamer met openslaande deuren naar de zonnige achtertuin. Mooie woonstand, gelegen op ca. 326 m2 grond.
INDELING:
BEGANE GROND: ruime hal, toilet, tuingerichte woonkamer met openslaande deuren naar de achtertuin, open woonkeuken met keuken in hoekopstelling v.v. inbouwapparatuur (inductiekookplaat, afzuigkap, oven, koelkast en vaatwasser). Royale vrijstaande garage met zolder.
1E VERDIEPING: overloop, 3 slaapkamers (resp. ca. 15 m2, 14 m2 en 12,6 m2) , fraaie geheel betegelde badkamer (ca. 5 m2) met ligbad, douchehoek en dubbele vaste wastafels, separaat 2e toilet, vaste trap naar….
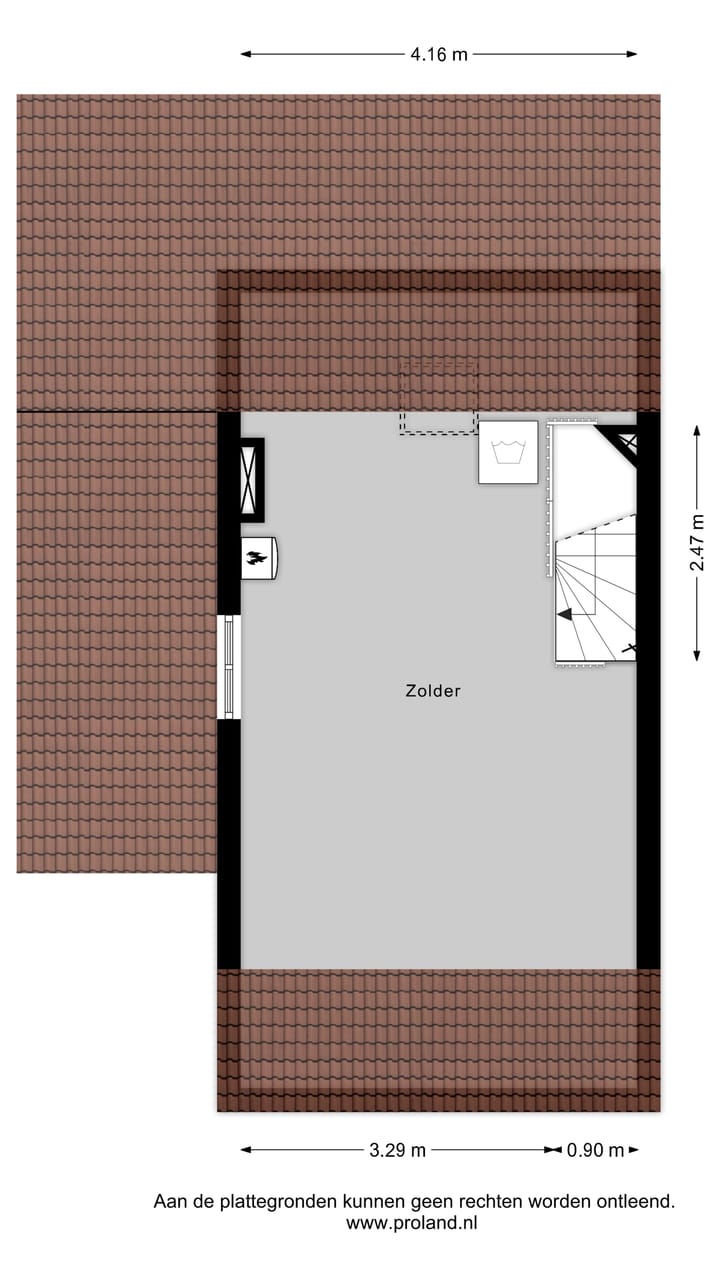
2E VERDIEPING:
zolderberging met witgoedhoek.
LIGGING:
Deze woning is gelegen in woonwijk Skoatterwald op goede woonstand aan een brede straat met veel groenvoorzieningen. Er is parkeergelegenheid op direct bijgelegen openbare parkeerplaats. Het is een woonwijk met veel openbaar groen, diverse speelvoorzieningen voor kinderen, de bossen van Oranjewoud met diverse wandel- en fietsmogelijkheden zijn op loopafstand.
Kenmerken
Overdracht
- Laatste vraagprijs
- € 510.000 kosten koper
- Vraagprijs per m²
- € 3.806
- Status
- Verkocht
Bouw
- Soort woonhuis
- Eengezinswoning, 2-onder-1-kapwoning
- Soort bouw
- Bestaande bouw
- Bouwjaar
- 2002
- Soort dak
- Zadeldak bedekt met pannen
Oppervlakten en inhoud
- Gebruiksoppervlakten
- Wonen
- 134 m²
- Externe bergruimte
- 23 m²
- Perceel
- 326 m²
- Inhoud
- 493 m³
Indeling
- Aantal kamers
- 5 kamers (3 slaapkamers)
- Aantal badkamers
- 1 badkamer en 2 aparte toiletten
- Badkamervoorzieningen
- Douche, ligbad, en wastafel
- Aantal woonlagen
- 3 woonlagen
Energie
- Energielabel
- A
- Isolatie
- Volledig geïsoleerd
- Verwarming
- Cv-ketel en warmte terugwininstallatie
- Warm water
- Cv-ketel
- Cv-ketel
- Gas gestookt, eigendom
Kadastrale gegevens
- KNIJPE E 888
- Kadastrale kaart
- Oppervlakte
- 326 m²
- Eigendomssituatie
- Volle eigendom
Buitenruimte
- Ligging
- Aan rustige weg, in woonwijk en open ligging
- Tuin
- Achtertuin, voortuin en zijtuin
- Achtertuin
- 152 m² (16,00 meter diep en 9,50 meter breed)
- Ligging tuin
- Gelegen op het zuidwesten bereikbaar via achterom
Garage
- Soort garage
- Vrijstaande houten garage
- Capaciteit
- 1 auto
- Voorzieningen
- Elektra
Foto's 38
© 2001-2025 funda





































