
Omschrijving
Uniek 3-kamerappartement met extra bergzolder
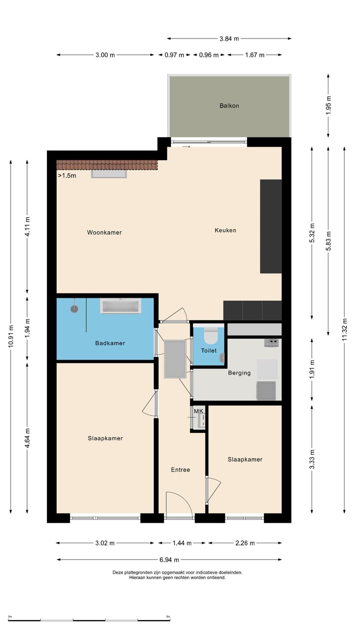
Dit prachtige appartement is gelegen op de 2e en tevens hoogste verdieping, waardoor juist dit type beschikt over een extra bergzolder. Door de glazen balustrade van het balkon en de flinke schuifpui beschikt dit appartement ook nog eens over een maximale daglichttoetreding. Ook het balkon is perfect op de zon gesitueerd, waardoor er sprake is van zowel de middag- als avondzon. Een echte eyecatcher is de prachtige en tijdloze keuken voorzien van alle denkbare inbouwapparatuur. Verder ligt er in het gehele appartement een fraaie houten vloer voorzien van vloerverwarming.
Het appartement beschikt over een eigen berging, gelegen op de begane grond. De berging biedt voldoende plaats voor het stallen van fietsen of gewoon voor extra opslag. 2e verdieping: entree/hal met o.a. garderobe, meterkast, toiletruimte en vlizotrap naar de bergzolder. 2-tal slaapkamers. Inpandige berging met de nodige techniek alsmede de opstelling voor het witgoed. Heerlijk ruime badkamer en de fraaie living met luxe open keuken.
Dit appartement is gelegen in plan Oostweide. Deze mooie nieuwbouwwijk is grotendeels in jaren '30 stijl opgetrokken. De omliggende buurt heeft de fijne sfeer van een bestaande wijk met veel groen. U bevindt zich op korte afstand van de dorpskern. Heiloo heeft goede winkelcentra en er is een NS-station, waar ook de intercity stopt (Amsterdam bereikbaar binnen 30 min.). Heiloo beschikt tevens over diverse horeca, meerdere sportvoorzieningen en ligt op fietsafstand van Alkmaar.
Bijzonderheden:
- balkon met zowel de middag- als avondzon
- unieke bergzolder van ca. 13 m2 (lees= extra berging / geen bovenburen / pannendak)
- lift aanwezig
- gehele appartement voorzien van fraaie houten vloer met vloerverwarming
- ideale draai-kiepramen
- zeer luxe keuken met o.a. koffiemachine, combi-/magnetron en geïntegreerde Bora afzuiging
- balustrade balkon voorzien van glas
- ideale inloopdouche, alsmede een dubbele wastafel
- in de nabije omgeving vindt u een uitdagende 9-holes golfbaan
- parkeren kan op de binnenplaats en rondom het complex Oostweide
Servicekosten ca. € 116,- per maand bestaan o.a. uit:
- Opstal-, glas- en brandverzekering
- Reservering groot- en klein dagelijks onderhoud
- Schoonmaakkosten algemene ruimtes
- Kosten administrateur
- Kosten energie algemene ruimtes inclusief lift
Interesse in dit huis? Schakel direct uw eigen NVM-aankoopmakelaar in. Uw NVM-aankoopmakelaar komt op voor úw belang en bespaart u tijd, geld en zorgen. Adressen van collega NVM-aankoopmakelaars vindt u op Funda.
Kenmerken
Overdracht
- Laatste vraagprijs
- € 469.000 kosten koper
- Vraagprijs per m²
- € 6.171
- Status
- Verkocht
- Bijdrage VvE
- € 116,00 per maand
Bouw
- Soort appartement
- Bovenwoning (appartement)
- Soort bouw
- Bestaande bouw
- Bouwjaar
- 2018
- Soort dak
- Mansarde dak bedekt met pannen
Oppervlakten en inhoud
- Gebruiksoppervlakten
- Wonen
- 76 m²
- Overige inpandige ruimte
- 13 m²
- Gebouwgebonden buitenruimte
- 7 m²
- Externe bergruimte
- 6 m²
- Inhoud
- 332 m³
Indeling
- Aantal kamers
- 3 kamers (2 slaapkamers)
- Aantal badkamers
- 1 badkamer en 1 apart toilet
- Badkamervoorzieningen
- Dubbele wastafel en inloopdouche
- Aantal woonlagen
- 1 woonlaag en een vliering
- Voorzieningen
- Glasvezelkabel, lift, mechanische ventilatie, en schuifpui
- Gelegen op
- 2e woonlaag
Energie
- Energielabel
- A
- Isolatie
- Volledig geïsoleerd
- Verwarming
- Cv-ketel en gehele vloerverwarming
- Warm water
- Cv-ketel
- Cv-ketel
- Intergas (gas gestookt combiketel uit 2018, eigendom)
Kadastrale gegevens
- HEILOO D 5259
- Kadastrale kaart
- Eigendomssituatie
- Volle eigendom
Buitenruimte
- Ligging
- In woonwijk
- Balkon/dakterras
- Balkon aanwezig
Bergruimte
- Schuur/berging
- Box
- Voorzieningen
- Elektra
Parkeergelegenheid
- Soort parkeergelegenheid
- Openbaar parkeren
VvE checklist
- Inschrijving KvK
- Ja
- Jaarlijkse vergadering
- Ja
- Periodieke bijdrage
- Nee
- Reservefonds aanwezig
- Ja
- Onderhoudsplan
- Ja
- Opstalverzekering
- Ja
Foto's 32
© 2001-2025 funda































