
Omschrijving
Met plezier veel bieden wij deze ruime, lichte en zeer goed onderhouden 5-kamer maisonnette op de eerste en tweede verdieping aan, met balkon, parkeerterrein voor bewoners en een (fietsen)berging.
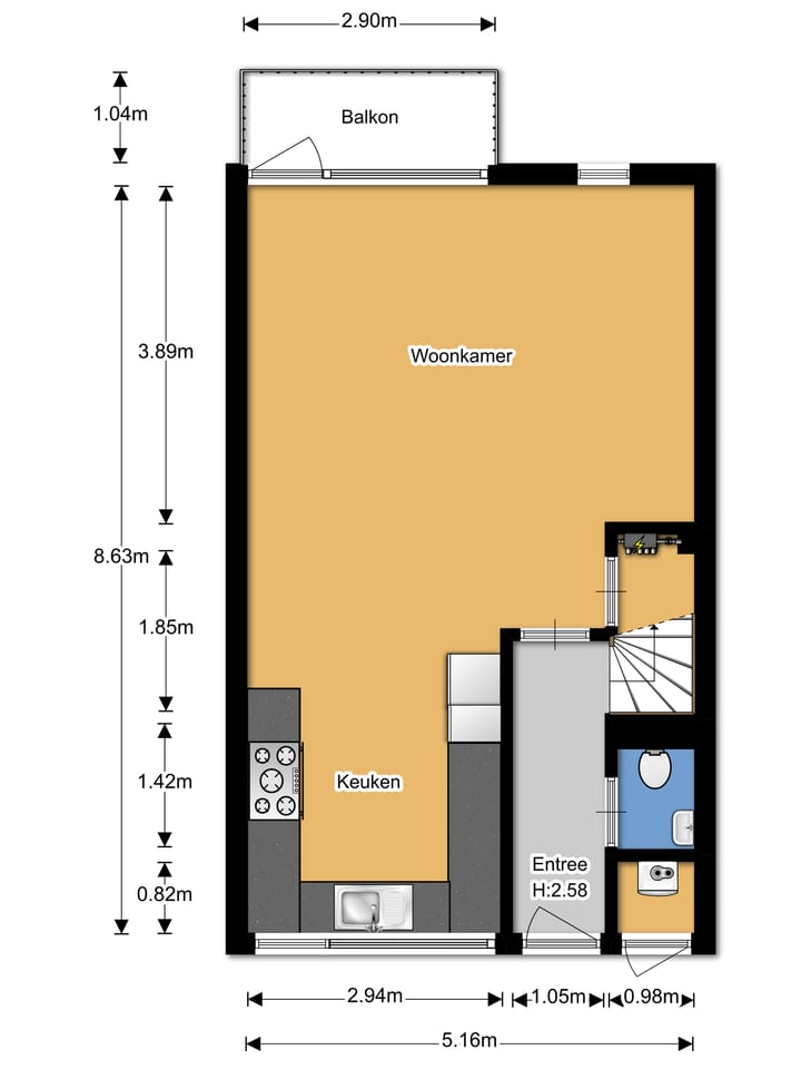
In het kort: woon-/eetkamer, open keuken, balkon, toilet, 4 slaapkamers en badkamer met o.a. tweede toilet. 96 m2 woonoppervlak.
Het gebouw:
- portiek met brievenbussen
- trappenhuis (geen lift)
- parkeren op eigen terrein en voor de deur
1e woonlaag (1e verdieping)
- galerij met voordeur van het appartement en kast met de cv-ketel
- gang met modern toilet en garderobe
- woon-/eetkamer met massief houten vloer en balkon
- open U-vormige keuken met diverse apparatuur
- keukenapparatuur: 5-pits gaskookplaat, afzuigkap, koel- vriescombinatie, oven en losse vaarwasser ter overname
2e woonlaag (2e verdieping)
- overloop
- 2 royale slaapkamers (circa 11 m2) waarvan 1 met kastenwand
- 2 werk/slaapkamers van elk circa 8 m2
- geheel voorzien van laminaatvloeren
- badkamer met douche, tweede toilet, wastafelmeubel en aansluiting wasapparatuur
Aanvullende informatie:
- eigen grond
- binnen de VvE is besloten om ieder een ‘eigen’ parkeerplaats toe te wijzen op het binnenterrein, dit is echter niet officieel vastgelegd
- woonoppervlakte 96 m2 (volgens meetinstructie NVM)
- balkon 3 m2
- berging 7 m2
- bouwjaar 1958
- de meterkast heeft 9 groepen en aardlekbeveiliging
- eigen cv-ketel (in kast op de galerij) Remeha Avanta uit 2014
- geheel voorzien van dubbele beglazing, grotendeels in kunststof kozijnen
- energielabel D
VvE:
- VvE bestaat uit 22 appartementsrechten, 17 garageboxen en 1 bedrijfsruimte
- professioneel beheerd door VPA VvE Beheer
- de maandelijkse bijdrage VvE bedraagt € 312,64
- MJOP aanwezig
- jaarlijkse ALV en notulen
- de eenmalige bijdrage van € 4.000,-- voor het renoveren van de galerijen (zomer 2025) wordt nog door verkopers voldaan
?
Omgeving:
- Uitzicht op parkachtig veldje aan de galerijzijde
- Dichtbij groot modern winkelcentrum Kerkelanden met een keur aan winkels en horeca
- Buurwinkels op de Admiraal de Ruyterlaan en bij de Heigalerij
- Ook de winkels van de Gijsbrecht van Amstelstraat zijn niet ver
- Op loopafstand de Hoorneboegseheide en Loosdrechtsebos met het iconisch monument Landgoed Zonnestraal met brasserie om voor, of na een wandeling, of fietstocht te genieten van een kop koffie of een heerlijke lunch of high tea.
Kortom: een zeer ruim en instapklaar appartement, op een fijne plek.
Kenmerken
Overdracht
- Laatste vraagprijs
- € 397.500 kosten koper
- Vraagprijs per m²
- € 4.141
- Status
- Verkocht
- Bijdrage VvE
- € 312,62 per maand
Bouw
- Soort appartement
- Maisonnette
- Soort bouw
- Bestaande bouw
- Bouwjaar
- 1958
- Soort dak
- Plat dak bedekt met bitumineuze dakbedekking
Oppervlakten en inhoud
- Gebruiksoppervlakten
- Wonen
- 96 m²
- Overige inpandige ruimte
- 1 m²
- Gebouwgebonden buitenruimte
- 3 m²
- Externe bergruimte
- 7 m²
- Inhoud
- 301 m³
Indeling
- Aantal kamers
- 5 kamers (4 slaapkamers)
- Aantal badkamers
- 1 badkamer en 1 apart toilet
- Badkamervoorzieningen
- Douche, toilet, en wastafelmeubel
- Aantal woonlagen
- 2 woonlagen
- Voorzieningen
- Glasvezelkabel, mechanische ventilatie, en TV kabel
- Gelegen op
- 1e woonlaag
Energie
- Energielabel
- D
- Verwarming
- Cv-ketel
- Warm water
- Cv-ketel
- Cv-ketel
- Remeha Avanta (gas gestookt combiketel uit 2014, eigendom)
Kadastrale gegevens
- HILVERSUM M 3126
- Kadastrale kaart
- Eigendomssituatie
- Volle eigendom
Buitenruimte
- Balkon/dakterras
- Balkon aanwezig
Bergruimte
- Schuur/berging
- Box
Parkeergelegenheid
- Soort parkeergelegenheid
- Op eigen terrein
VvE checklist
- Inschrijving KvK
- Ja
- Jaarlijkse vergadering
- Ja
- Periodieke bijdrage
- Ja (€ 312,62 per maand)
- Reservefonds aanwezig
- Ja
- Onderhoudsplan
- Ja
- Opstalverzekering
- Ja
Foto's 22
© 2001-2025 funda





















