
Omschrijving
- Prachtige plek -
- Zo te betrekken -
- Balkon zuid -
Op een mooie, rustige plek gelegen gerenoveerd 3 kamer appartement. Het appartement ligt op de tweede verdieping en heeft een ruim balkon op het zuiden. Het complex heeft een vrij uitzicht over een groenvoorziening en het Gorechtpark en beschikt over een lift. Op de begane grond bevinden zich een ruime gemeenschappelijke fietsenberging, alsmede de individuele fietsenbergingen. Het station en winkels bevinden zich op loopafstand.
Indeling: afgesloten entree met intercom en liftinstallatie.
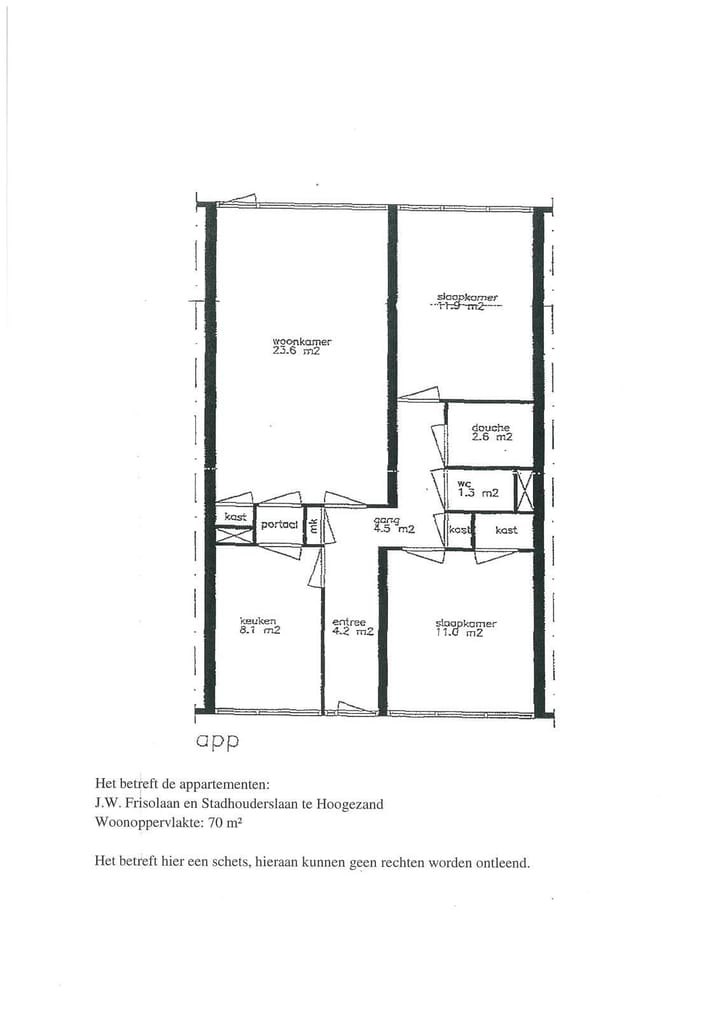
Indeling appartement: tochtportaal, hal met vaste kast, toilet, woonkamer ca. 700x375 met vaste kast en toegang naar balkon op het zuiden, moderne keuken met inbouwapparatuur en vaste kast, 2 slaapkamers waarvan één met vaste kast resp.: 11 en 12 m², moderne badkamer met inloopdouche. Het appartement is grotendeels v.v. laminaatvloeren.
INFO: bijdrage V.v.E. € 278,83 (incl. € 77,- voorschot stookkosten, water en kookgas), v.v. HR ++ glas, v.v. eigen boiler, v.v. laminaat.
Kenmerken
Overdracht
- Laatste vraagprijs
- € 215.000 kosten koper
- Vraagprijs per m²
- € 3.071
- Status
- Verkocht
- Bijdrage VvE
- € 201,83 per maand
Bouw
- Soort appartement
- Galerijflat (appartement)
- Soort bouw
- Bestaande bouw
- Bouwjaar
- 1972
- Specifiek
- Gedeeltelijk gestoffeerd
- Soort dak
- Plat dak bedekt met bitumineuze dakbedekking
- Toegankelijkheid
- Toegankelijk voor mensen met een beperking en toegankelijk voor ouderen
Oppervlakten en inhoud
- Gebruiksoppervlakten
- Wonen
- 70 m²
- Gebouwgebonden buitenruimte
- 5 m²
- Externe bergruimte
- 6 m²
- Inhoud
- 225 m³
Indeling
- Aantal kamers
- 3 kamers (2 slaapkamers)
- Aantal badkamers
- 1 badkamer en 1 apart toilet
- Badkamervoorzieningen
- Douche en wastafel
- Aantal woonlagen
- 1 woonlaag
- Voorzieningen
- Lift, natuurlijke ventilatie, en TV kabel
- Gelegen op
- 3e woonlaag
Energie
- Energielabel
- E
- Isolatie
- Dubbel glas en HR-glas
- Verwarming
- Blokverwarming
- Warm water
- Elektrische boiler
Kadastrale gegevens
- HOOGEZAND F 4278
- Kadastrale kaart
- Eigendomssituatie
- Volle eigendom
Buitenruimte
- Ligging
- Aan park, aan water en in woonwijk
- Balkon/dakterras
- Balkon aanwezig
Bergruimte
- Schuur/berging
- Inpandig
- Voorzieningen
- Elektra
Parkeergelegenheid
- Soort parkeergelegenheid
- Openbaar parkeren
VvE checklist
- Inschrijving KvK
- Ja
- Jaarlijkse vergadering
- Ja
- Periodieke bijdrage
- Ja (€ 201,83 per maand)
- Reservefonds aanwezig
- Ja
- Onderhoudsplan
- Ja
- Opstalverzekering
- Ja
Foto's 45
© 2001-2025 funda












































