
Omschrijving
Welkom in deze robuuste vrijstaande woning, gelegen in een kindvriendelijke en rustige buurt. Hier geniet je van comfort, ruimte én privacy. Met een royaal woonoppervlakte van ruim 180 m² en een volledig souterrain onder de originele woning, is er volop ruimte voor wonen, werken én ontspannen. De woning beschikt over diverse multifunctionele ruimtes, ideaal voor een kantoor, bedrijf of praktijk aan huis, een eigen sportruimte, atelier, mantelzorgwoning of een chillroom voor de kinderen.
Buiten biedt de grote, lichtrijke en recent gebouwde garage volop mogelijkheden: van werkplaats, bedrijfsruimte tot het stallen van meerdere voertuigen. Volledig geïsoleerd met verwarming en van alle gemakken voorzien! De riante oprit is geschikt voor meerdere auto’s, ideaal voor het ontvangen van gasten of het parkeren van de eigen auto’s. Daarnaast is de schuur ook zeker geschikt als opslag-, fitnessruimte of mantelzorgwoning.
De straat is doodlopend en verkeersluw, wat bijdraagt aan een veilige woonomgeving voor kinderen om vrij te spelen. De combinatie van vrijheid, functionaliteit en een prettige woonomgeving maakt dit een unieke kans voor wie royaal wil wonen in een geliefde wijk. Daarnaast is de woning op loopafstand van het centrum van Kerkdriel en zijn er meerdere speeltuinen op korte afstand te vinden.
Begane grond
Je betreedt de woning via een ruime entreehal met trapopgang naar de verdieping, meterkast, was- & CV ruimte en een modern toilet. Vanuit de hal kom je in de royale woonkamer, die heerlijk licht is door de grote raampartijen en zich strekt over de gehele diepte van de woning.
Het zitgedeelte aan de voorzijde nodigt uit tot ontspannen, terwijl je aan de achterzijde ruimte hebt voor een grote eettafel met zicht op de tuin middels de schuifpui. De half open keuken sluit hier naadloos op aan en heeft eveneens een doorgang naar de entree, wat zorgt voor een praktische en fijne doorloop. Daarnaast blijft de begane grond dankzij de bouw heerlijk koel tijdens hete zomers, wat het comfort verhoogt.
Extra pluspunt: de garage is van binnenuit bereikbaar, wat comfort en gemak toevoegt – zeker in de wintermaanden of bij slecht weer.
Eerste verdieping
Via een ruime overloop met een charmante toog bereik je drie nette en goed bemeten slaapkamers. De grote badkamer is volledig uitgerust met een ligbad, een dubbele wastafel, een douche en een tweede toilet – ideaal voor gezinsgebruik. De overloop geeft ook toegang naar het knusse balkon aan de voorzijde met een mooie blik op de straat.
Tweede verdieping
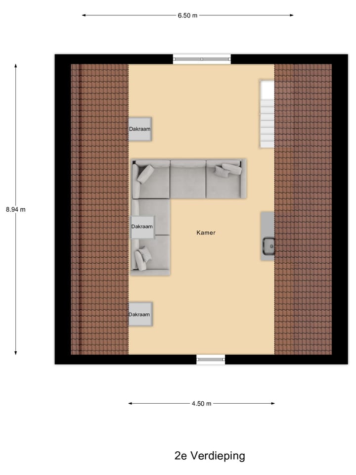
De verrassend ruime tweede verdieping is een zeer nette en fijne ruimte. Momenteel is het in gebruik als kantoorruimte, maar zeker ook ideaal als extra slaapkamer, logeerkamer, werkplek, studeerruimte of hobbyruimte. Dankzij drie dakramen en twee ramen valt er veel natuurlijk licht binnen. De aanwezigheid van een airco en een pantry met koelkast en warm water maken het comfort hier compleet. De inrichting als studio is hier ook zeker mogelijk. Achter de knieschotten is veel opbergruimte aanwezig.
Garage
De garage is volledig geïsoleerde, verwarmd en inpandig bereikbare, daarnaast biedt hij plek aan meerdere auto’s. De garage is zeer ruim en uitzonderlijk licht dankzij de aanwezigheid van maar liefst zes dakramen, twee lichtkoepels en openslaande deuren, mede hierdoor is een natuurlijke ventilatie mogelijk. De garage is groot genoeg voor het realiseren van een mooie werkruimte, opleidingsruimte, praktijkruimte of een atelier aan huis. Daarnaast leent de ruimte zich er ook prima naar om er een mantelzorgwoning van te maken. De voorbereidingen voor het realiseren van een badkamer zijn al getroffen. Heb je een hobby, dan is het ook een ideale hobbyruimte.
Souterrain
Het souterrain is een praktische ruimte, toegankelijk vanuit de hal, en opgedeeld in twee afzonderlijke gedeeltes plus een handige berging. Een ideale verdieping om naar eigen wens in te vullen! Deze ruimten zijn ideaal om als opslagruimte te gebruiken maar naast opslag zijn ook zeker andere invullingen mogelijk, zoals bijvoorbeeld een hobbyruimte of chillplek voor de kinderen.
Exterieur
Sfeervolle en goed onderhouden tuin met achterom, een ruim terras om van de zon te genieten, groene borders en volop privacy. Dat is wat deze woning nog meer te bieden heeft!
Kenmerken
- Woning is nagenoeg geheel voorzien van kunststof kozijnen met HR++ glas
- Garage en werkplaats zijn opnieuw opgebouwd en volledig geïsoleerd (2015), deze is eventueel ook geschikt als mantelzorgwoning. Hiervoor zijn al extra aansluitpunten voor riolering en verwarming aanwezig.
- Vloer tweede verdieping is geluiddempend uitgevoerd, de ruimte is voorzien van een airco die kan koelen en verwarmen
- Meterkast is geheel vernieuwd in 2015 en heeft een krachtstroomaansluiting
- Krachtstroom aanwezig in de garage / werkplaats, tevens zijn hier diverse loze leidingen aanwezig voor uitbreidingen.
Omgeving
Tussen Maas en Waal in het zuiden van de provincie Gelderland ligt een bijzonder stukje Nederland: de Bommelerwaard. De rivier en de vele plassen oefenen grote aantrekkingskracht uit, o.a. op watersportliefhebbers. In het gebied zijn diverse jachthavens en strandbaden te vinden. Zo bieden de Zandmeren in Kerkdriel in de zomer volop gelegenheid om te zwemmen en zijn er diverse jachthavens waar men tevens kan genieten van een hapje en een drankje met uitzicht op het water. Naast de watersport zijn er vele mooie wandel- en fietsroutes te vinden in de Bommelerwaard. Voor de dagelijkse boodschappen kan men in de meeste kernen dichtbij huis terecht, in de grotere kernen (waaronder Zaltbommel en Kerkdriel) zijn daarnaast sportaccommodaties, culturele centra en horecavoorzieningen te vinden. Voor degene die centraal wil wonen en werken in Nederland met veel rust en ruimte in het schitterend rivierengebied is Kerkdriel een absolute aanrader.
Kenmerken
Overdracht
- Oorspronkelijke vraagprijs
- € 777.000 kosten koper
- Laatste vraagprijs
- € 739.000 kosten koper
- Vraagprijs per m²
- € 4.016
- Status
- Verkocht
Bouw
- Soort woonhuis
- Eengezinswoning, vrijstaande woning
- Soort bouw
- Bestaande bouw
- Bouwjaar
- 1979
- Soort dak
- Zadeldak bedekt met pannen
Oppervlakten en inhoud
- Gebruiksoppervlakten
- Wonen
- 184 m²
- Overige inpandige ruimte
- 116 m²
- Gebouwgebonden buitenruimte
- 7 m²
- Perceel
- 394 m²
- Inhoud
- 1.109 m³
Indeling
- Aantal kamers
- 5 kamers (4 slaapkamers)
- Aantal badkamers
- 1 badkamer en 1 apart toilet
- Badkamervoorzieningen
- Douche, ligbad, toilet, en wastafel
- Aantal woonlagen
- 3 woonlagen en een kelder
- Voorzieningen
- Airconditioning, dakraam, glasvezelkabel, natuurlijke ventilatie, en TV kabel
Energie
- Energielabel
- C
- Isolatie
- Volledig geïsoleerd
- Verwarming
- Cv-ketel
- Warm water
- Cv-ketel en elektrische boiler
- Cv-ketel
- Remeha Calenta 40c (gas gestookt combiketel uit 2013, eigendom)
Kadastrale gegevens
- MAASDRIEL N 1299
- Kadastrale kaart
- Oppervlakte
- 394 m²
- Eigendomssituatie
- Volle eigendom
Buitenruimte
- Ligging
- Aan rustige weg, beschutte ligging en in woonwijk
- Tuin
- Achtertuin, voortuin en zijtuin
- Achtertuin
- 78 m² (9,50 meter diep en 8,25 meter breed)
- Ligging tuin
- Gelegen op het noordwesten
Garage
- Soort garage
- Aangebouwde stenen garage en souterrain
- Capaciteit
- 2 auto's
- Voorzieningen
- Vliering, elektra, verwarming en stromend water
- Isolatie
- Volledig geïsoleerd
Parkeergelegenheid
- Soort parkeergelegenheid
- Op eigen terrein en openbaar parkeren
Foto's 65
© 2001-2025 funda
































































