Verkocht
Schoorstraat bungalow 37891 KlazienaveenKlazienaveen-Noord
€ 592.500 v.o.n.
Kaart
- 134 m²
- 645 m²
- 3
Verkoopgeschiedenis
- Aangeboden sinds
- 10 februari 2024
- Verkoopdatum
- 2 november 2024
- Looptijd
- 8½ maand
Omschrijving
Aan de Schoorstraat in Klazienaveen met uitzicht op ruim openbaar groen wordt deze comfortabele vrijstaande bungalow gebouwd. De bungalow staat op een kavel van 645 m2 eigen grond en grenst aan een toegangsweg. Vanuit de woonkamer heeft u uitzicht over een ruim openbaar groenterrein. Van zelfsprekend is deze zeer goed geïsoleerde woning energie zuinig uitgevoerd met o.a. een warmtepomp, vloerverwarming en 16 zonnepanelen voor de elektriciteitsvoorziening. De kunststof kozijnen zijn voorzien van HR++ beglazing. Een woning met luxe uitstraling dichtbij het centrum met alle voorzieningen dichtbij gelegen.
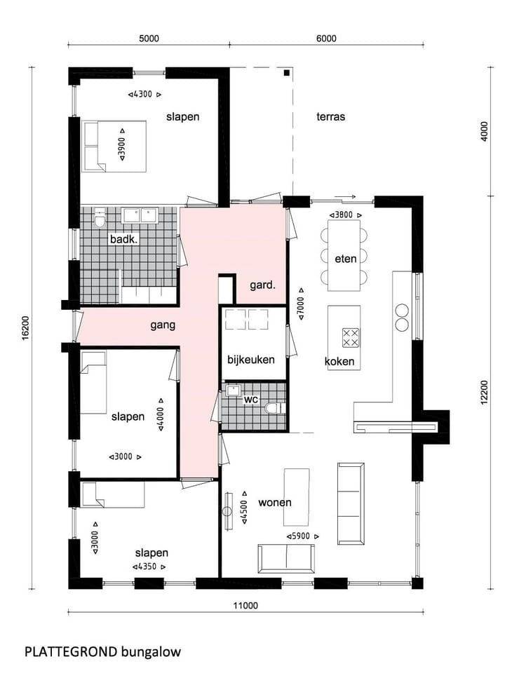
INDELING: entree/hal met garderobe nis en toegang naar gedeeltelijk overdek terras, meterkast, hangtoilet met fonteintje 3 ruime slaapkamers, badkamer met inloopdouche, hangtoilet en wastafel, ruime woonkamer met schoorsteenaansluiting, open keuken met schuifpui.
INFO
- ruime bungalow met 134 m2 woonoppervlak
- luxe uitstraling op ruime kavel eigen grond;
- stelpost inbouwkeuken €.5000,00;
Voor meer informatie kunt u vrijblijvend contact met ons opnemen.
Advertentie
Kenmerken
Overdracht
- Laatste vraagprijs
- € 592.500 vrij op naam
- Vraagprijs per m²
- € 4.422
- Status
- Verkocht
Bouw
- Bouwjaar
- Na 2020
- Soort woonhuis
- Bungalow, vrijstaande woning
- Soort bouw
- Nieuwbouw
- Soort dak
- Plat dak bedekt met bitumineuze dakbedekking
Oppervlakten en inhoud
- Gebruiksoppervlakten
- Wonen
- 134 m²
- Gebouwgebonden buitenruimte
- 8 m²
- Perceel
- 645 m²
- Inhoud
- 504 m³
Indeling
- Aantal kamers
- 4 kamers (3 slaapkamers)
- Aantal badkamers
- 1 apart toilet
- Aantal woonlagen
- 1 woonlaag
Energie
- Energielabel
- Niet beschikbaar
- Verwarming
- Gehele vloerverwarming
- Warm water
- Elektrische boiler
Kadastrale gegevens
- EMMEN X 003
- Kadastrale kaart
- Oppervlakte
- 645 m²
- Eigendomssituatie
- Volle eigendom
Buitenruimte
- Ligging
- In centrum en vrij uitzicht
- Tuin
- Tuin rondom
Parkeergelegenheid
- Soort parkeergelegenheid
- Op eigen terrein
Populariteit
4.283x
Bekeken
26x
Bewaard
10-2-2024
Op Funda
Buurt
Klazienaveen-Noord
Klazienaveen- Inwoners
- 4.855
- Gezin met kinderen
- 36%
- Gem. vraagprijs / m²
- € 2.716
Ontdek de buurt
Benieuwd naar het woningaanbod, bewoners en lokale makelaars?
Wil je dit huis niet vergeten?
Bewaar het als favoriet. Dan vind je ’m makkelijk terug en krijg je een seintje bij veranderingen.





