
Omschrijving
Een 3D beleving van deze woning vindt u onder het kopje 3D tour. Veel kijkplezier gewenst!
De mooie degelijke bouw van 1949 gecombineerd met een groen B-label. Dat heeft deze leuke hoekwoning met eigen oprit. De woning beschikt over een sfeervolle woonkamer, leefkeuken en bijkeuken op de begane grond. Op de verdieping heb je drie mooie slaapkamers en een grote badkamer. Plek om spullen op te bergen is er ook voldoende, dit kan namelijk op zolder, de grote kelder of de berging buiten. In de tuin is het ook goed toeven, deze heeft een goed formaat en is keurig aangelegd. Je kunt hier tot in de late uurtjes genieten van de zon door de ligging op het westen. Enthousiast? Maak een afspraak en we laten deze leuke woning graag aan jou zien.
Indeling
Begane grond:
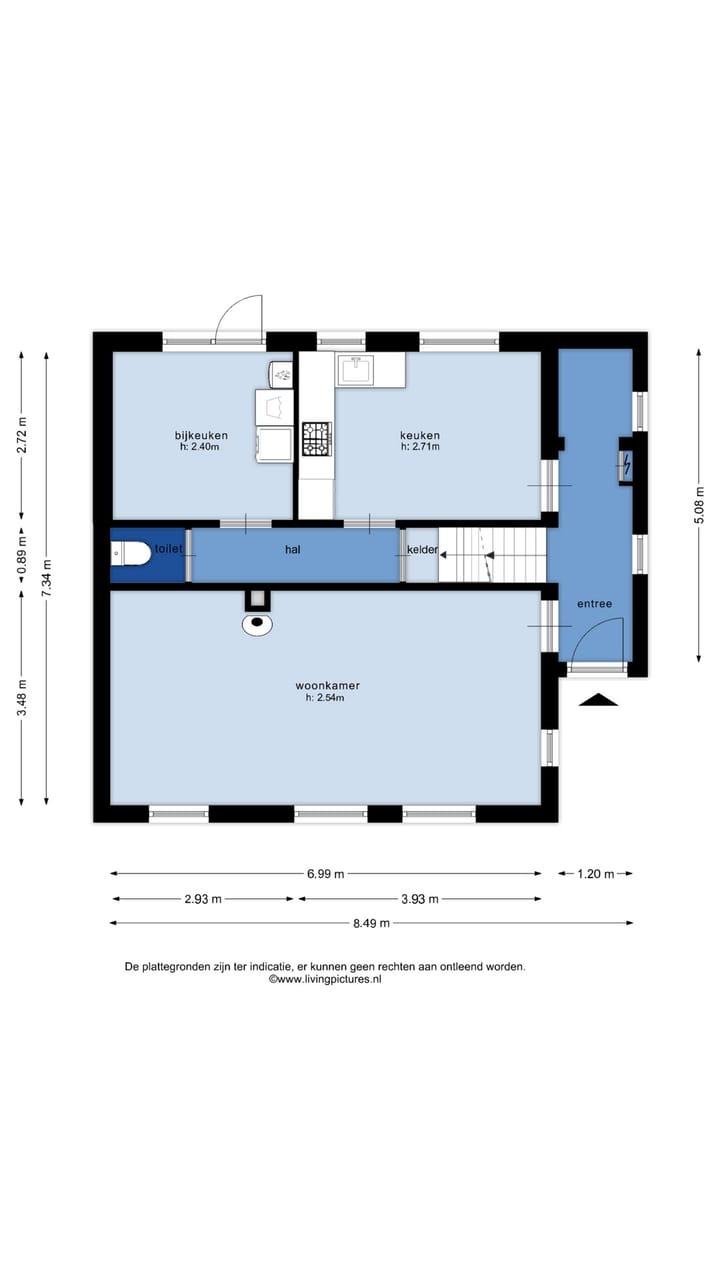
Je komt de woning binnen in een mooie ruime entree welke toegang biedt tot de woonkamer, trap naar de verdieping, de leefkeuken en er is een meterkast (7 groepen, groep zonnepanelen en aardlekschakelaar. Alles met automaten).
De woonkamer is aan de voorzijde gelegen en is mooi breed. Er zijn veel ramen welke een mooi zicht bieden. Verder is er nog een sierschouw aanwezig.
Aan de achterzijde van de woning is de leefkeuken gelegen. Deze grenst mooi aan de tuin. De inrichting is in hoekopstelling en voorzien van een ingebouwde koelkast, combi-oven, 4-pits gaskookplaat, afzuigkap en vaatwasser. Vanuit de keuken is de achterhal te bereiken.
Vanuit de achterhal is de kelder te bereiken, de toiletruimte en de bijkeuken. Laten we beginnen bij de kelder. Wat een ruimte! De kelder is een mooie droge ruimte welke perfect is voor het opbergen van etenswaren.
De toiletruimte is deels betegeld en voorzien van een duoblok. Let hier ook op de mooie oude gietijzeren stortbak van De Etna Breda.
Dan de bijkeuken, ook weer zo’n fijne praktische ruimte met hier de opstelplaats van de cv-ketel (Itho Daalderop Base Cube 2011), de aansluitingen voor de wasapparatuur en er is een deur naar de tuin.
Eerste verdieping:
Overloop met toegang tot de drie slaapkamers, de badkamer en de vaste kast.
Twee van de kamers liggen aan de voorzijde en de andere aan de achterzijde. Alle slaapkamers zijn voorzien van een vaste kast en één slaapkamer aan de voorzijde is zelfs voorzien van een extra kast.
De badkamer is geheel betegeld en super ruim. Er is een douche, ligbad en wastafel in meubel.
De vaste kast is voorzien van een trap naar de zolder.
Zolder:
Mooie bevloerde ruimte welke perfect is voor het opbergen van spullen.
Tuin:
De tuin is verzorgd aangelegd en ook weer ruim. Er is een groot terras achter de woning. Verder is er een gazon en is er een border.
Achterin de tuin is een tweede terras en hier is ook een overkapping gemaakt. Naast deze overkapping tref je de betonnen schuur met gestorte vloer en elektra.
Aan de voorzijde is nog een ruime siertuin en hier is de oprit waar je de auto kunt parkeren.
Algemeen:
- de vloer van de begane grond en eerste verdieping zijn van steenachtig materiaal;
- op het dak van de woning liggen 10 zonnepanelen welke goed zijn voor een opbrengst van circa 5MwH per jaar
Kenmerken
Overdracht
- Laatste vraagprijs
- € 325.000 kosten koper
- Vraagprijs per m²
- € 2.955
- Status
- Verkocht
Bouw
- Soort woonhuis
- Eengezinswoning, hoekwoning
- Soort bouw
- Bestaande bouw
- Bouwjaar
- 1949
- Soort dak
- Zadeldak bedekt met pannen
Oppervlakten en inhoud
- Gebruiksoppervlakten
- Wonen
- 110 m²
- Overige inpandige ruimte
- 5 m²
- Externe bergruimte
- 14 m²
- Perceel
- 242 m²
- Inhoud
- 435 m³
Indeling
- Aantal kamers
- 4 kamers (3 slaapkamers)
- Aantal badkamers
- 1 badkamer en 1 apart toilet
- Badkamervoorzieningen
- Douche, ligbad, wastafel, en wastafelmeubel
- Aantal woonlagen
- 2 woonlagen, een zolder, en een kelder
- Voorzieningen
- TV kabel en zonnepanelen
Energie
- Energielabel
- B
- Isolatie
- Dakisolatie, dubbel glas en muurisolatie
- Verwarming
- Cv-ketel
- Warm water
- Cv-ketel
- Cv-ketel
- Itho Daalderop Base Cube (gas gestookt combiketel uit 2011, eigendom)
Kadastrale gegevens
- KLUNDERT H 2550
- Kadastrale kaart
- Oppervlakte
- 242 m²
- Eigendomssituatie
- Volle eigendom
Buitenruimte
- Ligging
- Aan rustige weg en in woonwijk
- Tuin
- Achtertuin, voortuin en zijtuin
- Achtertuin
- 110 m² (11,00 meter diep en 10,00 meter breed)
- Ligging tuin
- Gelegen op het westen bereikbaar via achterom
Bergruimte
- Schuur/berging
- Vrijstaande stenen berging
- Voorzieningen
- Elektra
- Isolatie
- Geen isolatie
Garage
- Soort garage
- Niet aanwezig, wel mogelijk
Parkeergelegenheid
- Soort parkeergelegenheid
- Op eigen terrein
Foto's 59
© 2001-2025 funda


























































