
Omschrijving
II UNIEKE, RUIME EINDWONING II
Ben je klaar om verliefd te worden? Deze unieke eindwoning in de populaire woonwijk Lansingh-Zuid heeft mogelijk alles wat je zoekt! Voor de deur ligt een gezellige singel, waar je elke dag kunt genieten van het uitzicht op het water. Door de hoekligging is het hier heerlijk licht en voelt de woning extra ruim.
De keuken? Die is écht gigantisch! Dé plek om lekker te koken of lang te tafelen. Met vier ruime (slaap)kamers en twee badkamers is er plek genoeg voor iedereen.
En dan de locatie… Op loopafstand van natuurgebied 'De Krimpenerhout', waar je heerlijk kunt wandelen, fietsen of gewoon kunt genieten van de frisse lucht. Daarnaast is winkelcentrum 'De Olm' ook vlakbij met een supermarkt voor je dagelijkse boodschappen.
Indeling:
Begane grond
- Entree/hal voorzien van een meterkast, trapopgang, toiletruimte en toegang tot de woonkamer.
- Toiletruimte (ca. 1.54 m. x 1.02 m.) voorzien van een hangend toilet en fonteintje.
- Woonkamer (ca. 5.93 m. x 5.33 m.) voorzien van een airco.
- Half open keuken (ca. 6.62 m. x 3.20 m.) gesitueerd in een hoekopstelling en voorzien van een koelkast/vriezer, inductiekookplaat, vaatwasser, magnetron en twee (stoom)ovens. Vanuit de keuken heb je toegang tot de achtertuin.
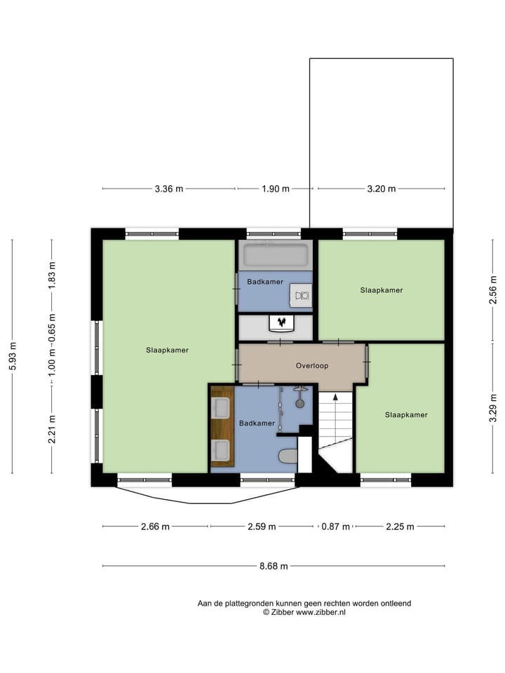
Eerste verdieping
- Trapopgang, overloop en toegang tot de diverse vertrekken.
- Slaapkamer I (ca. 5.93 m. x 3.36/2.66 m.) gelegen over de gehele diepte van de woning en voorzien van een airco.
- Slaapkamer II (ca. 3.29 m. x 2.25 m.) gelegen aan de voorzijde van de woning.
- Slaapkamer III (ca. 3.20 m. x 2.56 m.) gelegen aan de achterzijde van de woning.
- Badkamer I (ca. 1.90 m. x 1.83 m.) gelegen aan de achterzijde van de woning en voorzien van een ligbad en aansluiting voor de wasmachine.
- Badkamer II (ca. 2.59 m. x 2.21 m.) gelegen aan de voorzijde van de woning en voorzien van een toilet, douche en dubbele wastafel.
- Vaste kast met opstelplaats C.V. installatie (Intergas, 2024 eigendom).
Souterrain
- (Slaap)kamer IV (ca. 5.76 m. x 5.26 m.).
- Bergruimte (ca. 3.55 m. x 3.12 m.).
Tuin
- Vrijstaande stenen berging (ca. 3.43 m. x 2.66 m.) in de achtertuin.
- Achtertuin gelegen op het Zuidoosten.
Bijzonderheden
- De woning beschikt over 4 (slaap)kamers.
- De woning beschikt over 14 zonnepanelen.
- De woning beschikt over 2 airco's die zowel koelen als verwarmen.
- De woning beschikt over een energielabel B.
- De woning beschikt deels over kunststof kozijnen met HR++ beglazing.
- Oplevering in overleg (voorkeur verkopers juli 2025).
Kenmerken
Overdracht
- Laatste vraagprijs
- € 529.000 kosten koper
- Vraagprijs per m²
- € 3.206
- Status
- Verkocht
Bouw
- Soort woonhuis
- Eengezinswoning, eindwoning
- Soort bouw
- Bestaande bouw
- Bouwjaar
- 1997
- Soort dak
- Plat dak bedekt met bitumineuze dakbedekking
Oppervlakten en inhoud
- Gebruiksoppervlakten
- Wonen
- 165 m²
- Gebouwgebonden buitenruimte
- 5 m²
- Externe bergruimte
- 9 m²
- Perceel
- 129 m²
- Inhoud
- 585 m³
Indeling
- Aantal kamers
- 5 kamers (4 slaapkamers)
- Aantal badkamers
- 2 badkamers en 1 apart toilet
- Badkamervoorzieningen
- Ligbad, douche, dubbele wastafel, en toilet
- Aantal woonlagen
- 2 woonlagen en een kelder
- Voorzieningen
- Zonnepanelen
Energie
- Energielabel
- B
- Isolatie
- Volledig geïsoleerd
- Verwarming
- Cv-ketel
- Warm water
- Cv-ketel
- Cv-ketel
- Intergas (gas gestookt combiketel uit 2024, eigendom)
Kadastrale gegevens
- KRIMPEN AAN DEN IJSSEL A 8084
- Kadastrale kaart
- Oppervlakte
- 129 m²
- Eigendomssituatie
- Volle eigendom
Buitenruimte
- Ligging
- In woonwijk en vrij uitzicht
- Tuin
- Achtertuin
Bergruimte
- Schuur/berging
- Vrijstaande stenen berging
Parkeergelegenheid
- Soort parkeergelegenheid
- Openbaar parkeren
Foto's 44
© 2001-2025 funda











































