
Omschrijving
Te moderniseren tussengelegen woonhuis met garage, woonkamer, serre aanbouw, gesloten keuken, 3 slaapkamers, badkamer en tuin gelegen te Landgraaf - Schaesberg aan Beneluxstraat 20.
Souterrain:
Voorraadkelder 4.10 x 2.35 bereikbaar vanuit de keuken.
Begane grond:
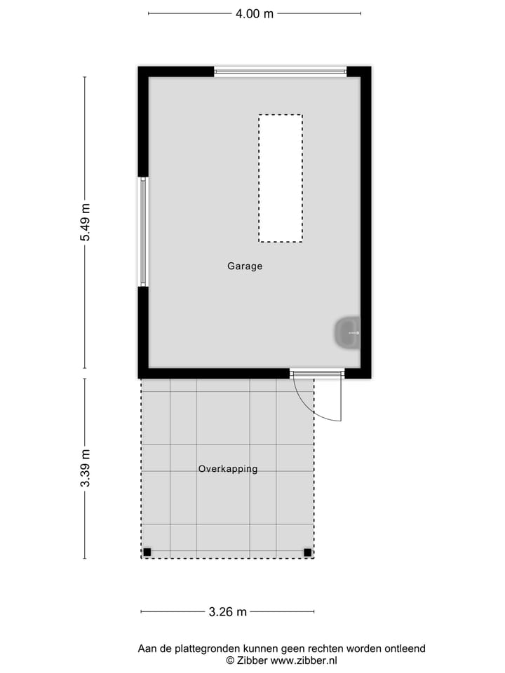
Voortuin. Entree/hal met plavuizenvloer en meterkast. Geheel licht betegelde toiletruimte met hangcloset. Woonkamer 7.85 x 3.70 met parketvloer open haardpartij (niet meer in gebruik) en gesloten keuken 3.60 x 2.30 met plavuizenvloer. De keuken is voorzien van eenvoudige aanbouwcombinatie inclusief koelkast, keramische kookplaat, oven en afzuigkap. Serre aanbouw 5.75 x 2.70 met bergkast en aansluitpunt wasapparatuur. Totale oppervlak van woonkamer, keuken en serre bedraagt ca. 53m2! De ruime tuin is voorzien van sierbestrating, berging, achterom en ruime garage 5.50 x 4.00 met smeerput.
1e verdieping:
Overloop. Drie slaapkamers respectievelijk 3.75 x 3.70, 3.75 x 2.85 en 3.70 x 2.30. Grotendeels betegelde badkamer met wastafel, inloopdouche en 2e toilet (duoblok).
2e verdieping:
Middels vaste ladder bereikbare bergzolder 6.10 x 2.65 met dakvenster alwaar cv-ketel (huur 2020).
Bijzonderheden:
- Modernisering wenselijk.
- Energielabel C. Kozijnen voorzien van dubbele beglazing.
- Pannendak in 2007 vernieuwd.
- Ruime garage.
- Op korte afstand van alle dagelijkse voorzieningen gelegen (scholen, winkels, openbaar vervoer en diversen uitvalswegen)
Alle aangegeven maatvoeringen betreffen circa maten.
Voor meer informatie of voor het maken van een afspraak tot bezichtiging kunt u contact opnemen ons kantoor tel. nr.: 088-4504666.
Nadere informatie / disclaimer:
- Ter bescherming van de belangen van zowel koper als verkoper, wordt uitdrukkelijk gesteld dat een koopovereenkomst met betrekking tot deze onroerende zaak eerst dan tot stand komt nadat koper en verkoper de koopovereenkomst hebben getekend (“schriftelijkheidsvereiste”).
- De termijn die wordt opgenomen voor eventuele (overeengekomen) ontbindende voorwaarden (bv. Financiering) is in de regel 4 tot 6 weken na het sluiten van de mondelinge wilsovereenkomst.
- De waarborgsom/bankgarantie is 10% van de koopsom. De koper dient deze 2 weken ná het vervallen van de ontbindende voorwaarden bij de desbetreffende notaris te deponeren.
- Koper is te allen tijde gerechtigd voor eigen rekening een bouwkundige keuring te (laten) verrichten dan wel andere adviseurs te raadplegen teneinde een goed inzicht te verkrijgen over de staat van onderhoud.
- Deze informatie is door ons met de nodige zorgvuldigheid samengesteld. Onzerzijds wordt echter geen enkele aansprakelijkheid aanvaard voor enige onvolledigheid, onjuist of anderszins, dan wel de gevolgen daarvan.
- Alle opgegeven maten en oppervlakten zijn indicatief. Van toepassing zijn de NVM voorwaarden.
Kenmerken
Overdracht
- Laatste vraagprijs
- € 225.000 kosten koper
- Vraagprijs per m²
- € 1.991
- Status
- Verkocht
Bouw
- Soort woonhuis
- Eengezinswoning, tussenwoning
- Soort bouw
- Bestaande bouw
- Bouwjaar
- 1965
- Soort dak
- Zadeldak bedekt met pannen
Oppervlakten en inhoud
- Gebruiksoppervlakten
- Wonen
- 113 m²
- Overige inpandige ruimte
- 26 m²
- Externe bergruimte
- 25 m²
- Perceel
- 242 m²
- Inhoud
- 490 m³
Indeling
- Aantal kamers
- 5 kamers (3 slaapkamers)
- Aantal badkamers
- 1 badkamer en 1 apart toilet
- Badkamervoorzieningen
- Douche, toilet, en wastafel
- Aantal woonlagen
- 2 woonlagen, een zolder, en een kelder
- Voorzieningen
- Dakraam, natuurlijke ventilatie, en rolluiken
Energie
- Energielabel
- C
- Isolatie
- Dakisolatie, dubbel glas en HR-glas
- Verwarming
- Cv-ketel
- Warm water
- Cv-ketel
- Cv-ketel
- HR (gas gestookt combiketel uit 2020, huur)
Kadastrale gegevens
- SCHAESBERG F 365
- Kadastrale kaart
- Oppervlakte
- 242 m²
- Eigendomssituatie
- Volle eigendom
Buitenruimte
- Tuin
- Achtertuin en voortuin
- Achtertuin
- 92 m² (15,00 meter diep en 6,10 meter breed)
- Ligging tuin
- Gelegen op het westen bereikbaar via achterom
Bergruimte
- Schuur/berging
- Vrijstaande houten berging
Garage
- Soort garage
- Vrijstaande stenen garage
- Capaciteit
- 1 auto
- Voorzieningen
- Elektra
Parkeergelegenheid
- Soort parkeergelegenheid
- Openbaar parkeren
Foto's 42
© 2001-2025 funda









































