
Omschrijving
Splinternieuwe warmtepomp, modern, energiezuinig, 5 slaapkamers, populaire en vernieuwde Vegelinbuurt, zijn zomaar een paar trefwoorden die van toepassing zijn op deze keurige tussenwoning die is gelegen op slechts een paar minuten van het bruisende stadscentrum!
Deze royale en gasloze woning is ontworpen met oog voor comfort en duurzaamheid, met vloerverwarming door de gehele woning, en dankzij de moderne technieken en energiebesparende maatregelen is het energieverbruik bijzonder laag.
Een ideale woning voor wie comfort, stijl en duurzaamheid zoekt! Maak snel een afspraak voor een bezichtiging en ervaar zelf het gemak en de luxe van deze woning.
Indeling begane grond: De ruime entree leidt je naar de lichte en open woonkamer, die naadloos overgaat in de moderne woonkeuken. Het geheel is afgewerkt met een pvc vloer, die het gevoel van ruimte en licht versterkt. Dankzij de openslaande deuren naar de achtertuin en de beglazing tot aan de grond, baadt de woonkamer in het daglicht. De woonkeuken is van alle gemakken voorzien met een vaste bergkast en diverse inbouwapparatuur. Aangrenzend vind je de bijkeuken met aansluitingen voor witgoed, de opstelling van de warmtepomp (vernieuwd in 2024), en een separate toiletruimte met vrijdragend toilet en fonteintje.
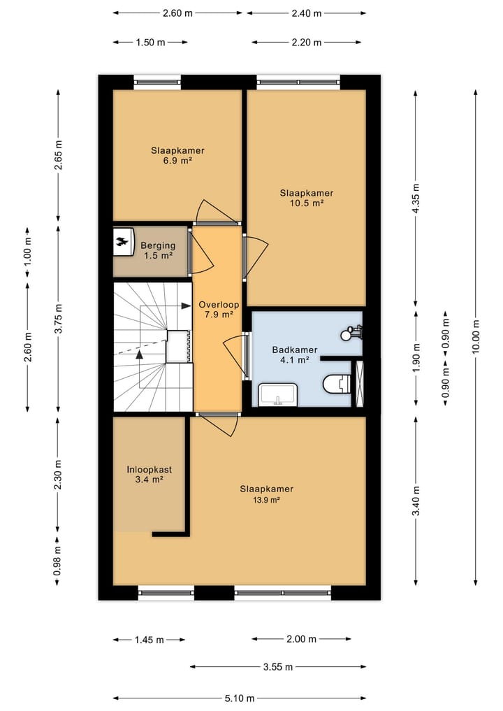
1e Verdieping: De overloop geeft toegang tot drie ruime slaapkamers en de moderne badkamer. De master bedroom aan de voorzijde van de woning is over de volledige breedte van de woning en beschikt over een royale inloopkast. De badkamer is uitgerust met een luxe stortdouche, een vaste wastafel en een tweede toilet, alles in een strakke en moderne stijl.
2e Verdieping: Via een vaste trap bereik je de tweede verdieping, waar je twee extra slaapkamers vindt. De vijfde slaapkamer heeft een praktische vaste bergkast met grote schuifdeuren, ideaal voor extra opslagruimte.
Berging: De berging bij deze woning is een waardevolle toevoeging die multifunctioneel kan worden ingezet. De ruimte biedt volop mogelijkheden voor opslag en organisatie. De berging is via de achtertuin bereikbaar aan de achterzijde van de woning.
Tuin: De zonnige achtertuin is gelegen op het zuidoosten en is een fijne plek waar u heerlijk kunt genieten van het buiten zijn. Vanuit de achtertuin is er een achterom die uitkomt op een groot, vrij toegankelijk parkeerterrein, waar je altijd een parkeerplekje voor je auto kunt vinden.
Bijzonderheden:
• Duurzame vloerverwarming op basis van nieuwe warmtepomp 2024, die ook koelt in de zomer
• Nieuwe PVC vloer 2024, gemakkelijk in onderhoud
• Ruim woonoppervlak met 5 slaapkamers
• Geheel geïsoleerd, A-label, gasloos
• Direct achter de woning parkeren
• Gelegen op loop- en fietsafstand van het centrum met alle voorzieningen binnen handbereik
• Schilderwerk 2023
• Zonnige tuin met houten schuur
Omgeving: Wonen in de nabijheid van alle voorzieningen als scholen, winkels, uitgaansgelegenheden en in het zuiden van de wijk staat het Frisius medisch centrum en ligt het Abbingapark.
Kenmerken
Overdracht
- Laatste vraagprijs
- € 395.000 kosten koper
- Vraagprijs per m²
- € 2.743
- Status
- Verkocht
Bouw
- Soort woonhuis
- Eengezinswoning, tussenwoning
- Soort bouw
- Bestaande bouw
- Bouwjaar
- 2005
- Soort dak
- Plat dak bedekt met bitumineuze dakbedekking en pannen
Oppervlakten en inhoud
- Gebruiksoppervlakten
- Wonen
- 144 m²
- Externe bergruimte
- 10 m²
- Perceel
- 115 m²
- Inhoud
- 475 m³
Indeling
- Aantal kamers
- 6 kamers (5 slaapkamers)
- Aantal badkamers
- 2 aparte toiletten
- Aantal woonlagen
- 3 woonlagen
- Voorzieningen
- Dakraam, mechanische ventilatie, en TV kabel
Energie
- Energielabel
- Isolatie
- Dakisolatie, dubbel glas, HR-glas, muurisolatie, vloerisolatie en volledig geïsoleerd
- Verwarming
- Aardwarmte, gehele vloerverwarming, warmte terugwininstallatie en warmtepomp
- Warm water
- Aardwarmte en elektrische boiler
Kadastrale gegevens
- LEEUWARDEN G 17964
- Kadastrale kaart
- Oppervlakte
- 115 m²
- Eigendomssituatie
- Volle eigendom
Buitenruimte
- Ligging
- Aan rustige weg en in woonwijk
- Tuin
- Achtertuin, voortuin en zonneterras
- Achtertuin
- 38 m² (7,50 meter diep en 5,10 meter breed)
- Ligging tuin
- Gelegen op het zuidoosten bereikbaar via achterom
Bergruimte
- Schuur/berging
- Vrijstaande houten berging
- Voorzieningen
- Elektra
Parkeergelegenheid
- Soort parkeergelegenheid
- Openbaar parkeren
Foto's 49
© 2001-2026 funda
















































