
Omschrijving
Op mooie woonstand aan de westkant van de stad bieden wij te koop aan deze karakteristieke 30'er jaren tussenwoning met in totaal 3 slaapkamers, een ruime woonkamer met erker en een beschutte achtertuin (met achterom) op het zuidwesten. De woning moet nog wel worden gemoderniseerd maar dat is meer dan de moeite waard!
De woning is gebouwd in 1933 en de woonoppervlakte bedraagt totaal 88m². Het perceel is 80m2 groot en is volledig eigendom. Verwarming vindt plaats door een CV installatie (huurketel). De woning is voorzien van zowel kunststof als houten kozijnen met dubbel glas en de zolder is geisoleerd. Het energielabel is C.
De ligging van de woning is uitermate gunstig want in de directe nabijheid zijn diverse voorzieningen, waaronder winkels, (basis)scholen, speelvelden en een supermarkt. Het stadscentrum bevindt zich op 2 minuten fietsen.
Bekijk de uitvoerige fotopresentatie voor een complete indruk van deze fraaie woning. De plattegrond van de woning geeft een duidelijk beeld van de afmetingen per vertrek. Bezichtiging aanvragen? Bel dan met ons NVM makelaarskantoor of reageer via franshettema.nl
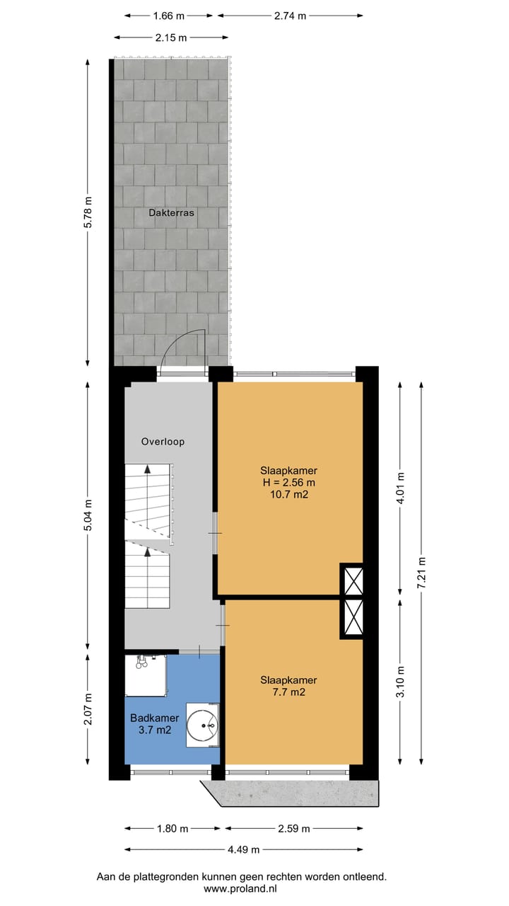
INDELINGSMOMSCHRIJVING
Begane grond: entree, hal, gang, trapopgang. Ruime doorzonwoonkamer van 27 m2 met veel lichtinval, erker en doorloop naar de dichte keuken in de aanbouw. Toiletruimte en achterdeur naar de zonnig geleden achtertuin met achterom richting de Mozartstraat.
1E VERDIEPING
overloop met aangrenzend 2 slaapkamers van ca. 10,7m2 en 7,7m2 en de badkamer. De badkamer is volledig betegeld en voorzien van douchecabine en wastafel. Vanaf de overloop kun je het dakterras bereiken en via de vaste trap kom je op de 2e verdieping.
2E VERDIEPING
Op de 2e verdieping bevindt zich nog een ruime kamer van ca. 10.4m2. De kamer is voorzien van een kunststof dakkapel aan de achterzijde.
ALGEMEEN:
- Kluswoning
- Ruime en lichte doorzonwoonkamer
- 3 slaapkamers
- Onderhoudsvriendelijke tuin op het zuidwesten met achterom
- Dakterras
- CV verwarming (huurketel)
- Kunststof en houten kozijnen met dubbel glas
- Dakisolatie
- Energielabel C
- Woonoppervlakte 88m²
- Kunststof dakkapel op de 2e verdieping
DISCLAIMER
De verkoopinformatie is door ons met de nodige zorgvuldigheid samengesteld. Onzerzijds wordt echter geen enkele aansprakelijkheid aanvaard voor enige onvolledigheid, onjuistheid of anderszins, dan wel de gevolgen daarvan. Aan de informatie kunnen geen rechten worden ontleend.
TOELICHTINGSCLAUSULE
De Meetinstructie is gebaseerd op de NEN2580. De Meetinstructie is bedoeld om een meer eenduidige manier van meten toe te passen voor het geven van een indicatie van de gebruiksoppervlakte. De Meetinstructie sluit verschillen in meetuitkomsten niet volledig uit, door bijvoorbeeld interpretatieverschillen, afrondingen of beperkingen bij het uitvoeren van de meting.entatietekst is in voorbereiding
Kenmerken
Overdracht
- Laatste vraagprijs
- € 215.000 kosten koper
- Vraagprijs per m²
- € 2.443
- Status
- Verkocht
Bouw
- Soort woonhuis
- Eengezinswoning, tussenwoning
- Soort bouw
- Bestaande bouw
- Bouwjaar
- 1933
- Soort dak
- Zadeldak bedekt met pannen
Oppervlakten en inhoud
- Gebruiksoppervlakten
- Wonen
- 88 m²
- Gebouwgebonden buitenruimte
- 12 m²
- Perceel
- 80 m²
- Inhoud
- 333 m³
Indeling
- Aantal kamers
- 4 kamers (3 slaapkamers)
- Aantal badkamers
- 1 badkamer en 1 apart toilet
- Badkamervoorzieningen
- Douche en wastafel
- Aantal woonlagen
- 3 woonlagen
- Voorzieningen
- Glasvezelkabel en TV kabel
Energie
- Energielabel
- C
- Isolatie
- Dakisolatie en dubbel glas
- Verwarming
- Cv-ketel
- Warm water
- Cv-ketel
- Cv-ketel
- Gas gestookt combiketel uit 2017, huur
Kadastrale gegevens
- LEEUWARDEN D 4044
- Kadastrale kaart
- Oppervlakte
- 80 m²
- Eigendomssituatie
- Volle eigendom
Buitenruimte
- Ligging
- In woonwijk
- Tuin
- Achtertuin en voortuin
- Achtertuin
- 29 m² (11,50 meter diep en 2,50 meter breed)
- Ligging tuin
- Gelegen op het zuidwesten bereikbaar via achterom
- Balkon/dakterras
- Dakterras aanwezig
Parkeergelegenheid
- Soort parkeergelegenheid
- Openbaar parkeren
Foto's 20
© 2001-2025 funda



















