
Omschrijving
Leuke starterswoning gelegen in het "Rode dorp" van Leeuwarden. Bijzonder is de aanbouw aan de achterzijde die de nieuwe eigenaar volop kansen biedt de woonkamer en/of keukenruimte uit te breiden tot een moderne living met woonkeuken-ambities.
De woning beschikt over ruime woonkamer met wenteltrap en een sfeervolle houtnerf-vloer, een halfopen keuken met inbouwapparatuur en een splinternieuwe badkamer (2025). Boven drie slaapkamers en een plat dak waar een groot zonneterras van maar liefst 20m² te creëren is.
De woning is goed onderhouden, met schilderwerk uitgevoerd in 2025.
Indeling begane grond:
Hal/entee met meterkast. Sfeervolle woonkamer met wenteltrap. De halfopen keukenruimte is voorzien van een opstelling met inbouwapparatuur (o.a. koelkast, vriezer en vaatwasser). De zeer recent (2025) gemoderniseerde badkamer is voorzien van een douche, wastafel en een modern wandcloset. De achtertuin is verbouwd tot leefruimte en voor veel doeleinden geschikt. Of met het doorbreken van keuken en/of woonkamer te transformeren tot een heuse woonkeuken?
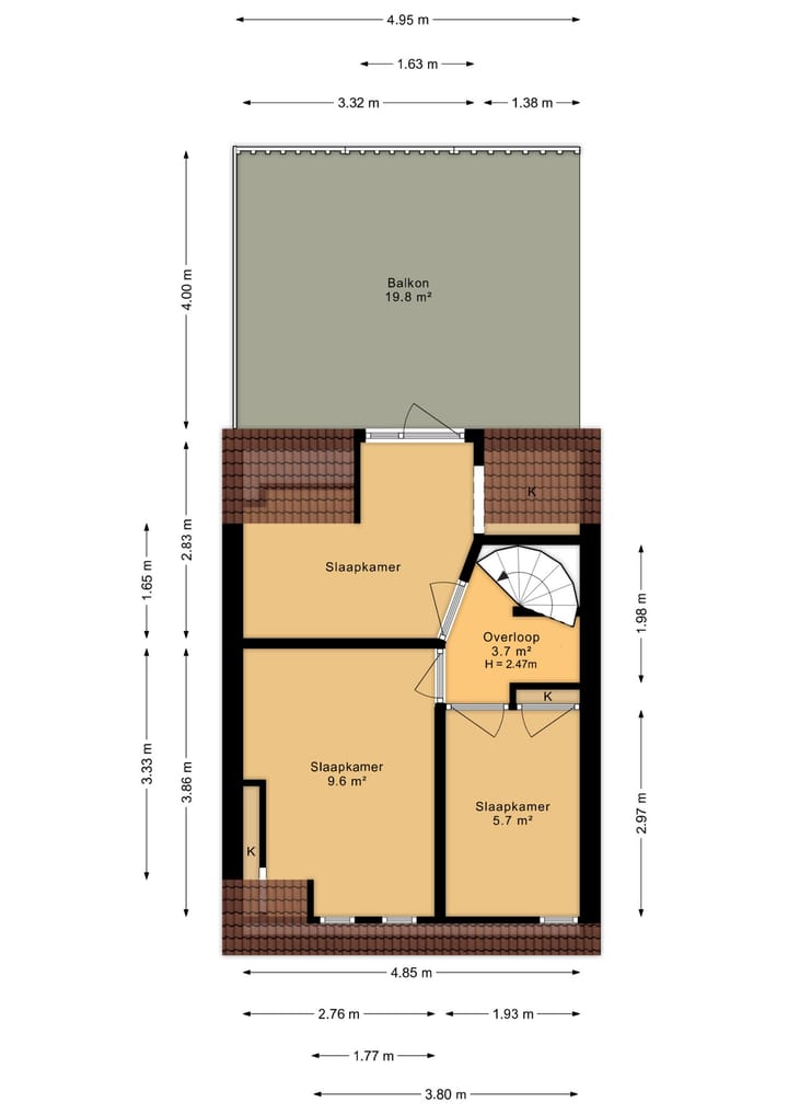
Indeling Verdieping:
Wenteltrap naar de overloop. De twee slaapkamers aan de voorzijde (respectievelijk ca. 10m² en 6m² groot) profiteren van extra ruimte dankzij de dakkapel over de volle breedte aan de voorzijde . De slaapkamer aan de achterzijde (ca. 8m² groot) heeft een opbouw met buitendeur naar het plat dak waar een riante dakterras van maarliefst ca. 20m² te realiseren is. Hier kan je heerlijk ongestoord van zonnige dagen genieten.
Bijzonderheden:
Elektrische installatie met zes automatische groepen. Verwarming middels een HR-combiketel (Intergas, 2023, eigendom). Gelegen op een perceel van 77m² groot (Canon € 528,- per jaar, erfpacht Gemeente Leeuwarden).
Omgeving:
Wonen in de gezellige woonbuurt ‘Rode Dorp’ met veel kleine straatjes en soortgelijke woningen. Op slechts 5 minuten fietsafstand van de binnenstad van Leeuwarden! Of maak een prachtige wandeling langs het groene gebied langs het stadsriviertje De Potmarge, slechts 300m van deze woning verwijderd.
Kenmerken
Overdracht
- Oorspronkelijke vraagprijs
- € 210.000 kosten koper
- Laatste vraagprijs
- € 199.500 kosten koper
- Vraagprijs per m²
- € 2.463
- Status
- Verkocht
Bouw
- Soort woonhuis
- Eengezinswoning, tussenwoning
- Soort bouw
- Bestaande bouw
- Bouwjaar
- 1928
- Soort dak
- Samengesteld dak bedekt met bitumineuze dakbedekking en pannen
Oppervlakten en inhoud
- Gebruiksoppervlakten
- Wonen
- 81 m²
- Gebouwgebonden buitenruimte
- 20 m²
- Perceel
- 77 m²
- Inhoud
- 300 m³
Indeling
- Aantal kamers
- 4 kamers (3 slaapkamers)
- Aantal badkamers
- 1 badkamer
- Badkamervoorzieningen
- Douche, inloopdouche, en wastafel
- Aantal woonlagen
- 2 woonlagen
- Voorzieningen
- Buitenzonwering, glasvezelkabel, natuurlijke ventilatie, en TV kabel
Energie
- Energielabel
- C
- Isolatie
- Dubbel glas en HR-glas
- Verwarming
- Cv-ketel
- Warm water
- Cv-ketel
- Cv-ketel
- Intergas (gas gestookt combiketel uit 2023, eigendom)
Kadastrale gegevens
- LEEUWARDEN G 14930
- Kadastrale kaart
- Oppervlakte
- 77 m²
- Eigendomssituatie
- Gemeentelijk eigendom belast met erfpacht
- Lasten
- € 528,00 per jaar
Buitenruimte
- Ligging
- Aan rustige weg en in woonwijk
- Tuin
- Achtertuin en voortuin
- Voortuin
- 16 m² (2,85 meter diep en 5,48 meter breed)
- Ligging tuin
- Gelegen op het noordoosten
- Balkon/dakterras
- Dakterras aanwezig
Bergruimte
- Schuur/berging
- Aangebouwde stenen berging
- Voorzieningen
- Elektra
Parkeergelegenheid
- Soort parkeergelegenheid
- Openbaar parkeren
Foto's 31
© 2001-2025 funda






























