
Omschrijving
Klussers opgelet!
Deze leuke (starters)woning staat aan de Willem Loréstraat in de buurt Welgelegen te Leeuwarden. De woning dient gerenoveerd en gemoderniseerd te worden. De wijk heeft een centrale ligging, het stadscentrum van Leeuwarden is op loopafstand en ook winkelcentrum ‘de Centrale’ ligt op steenworp afstand, net als de uitvalswegen. Verder wordt deze woning gekenmerkt door de aanwezigheid van openslaande deuren naar de achtertuin, 2 slaapkamers en energielabel E.
Van harte welkom om deze kans te komen bekijken!
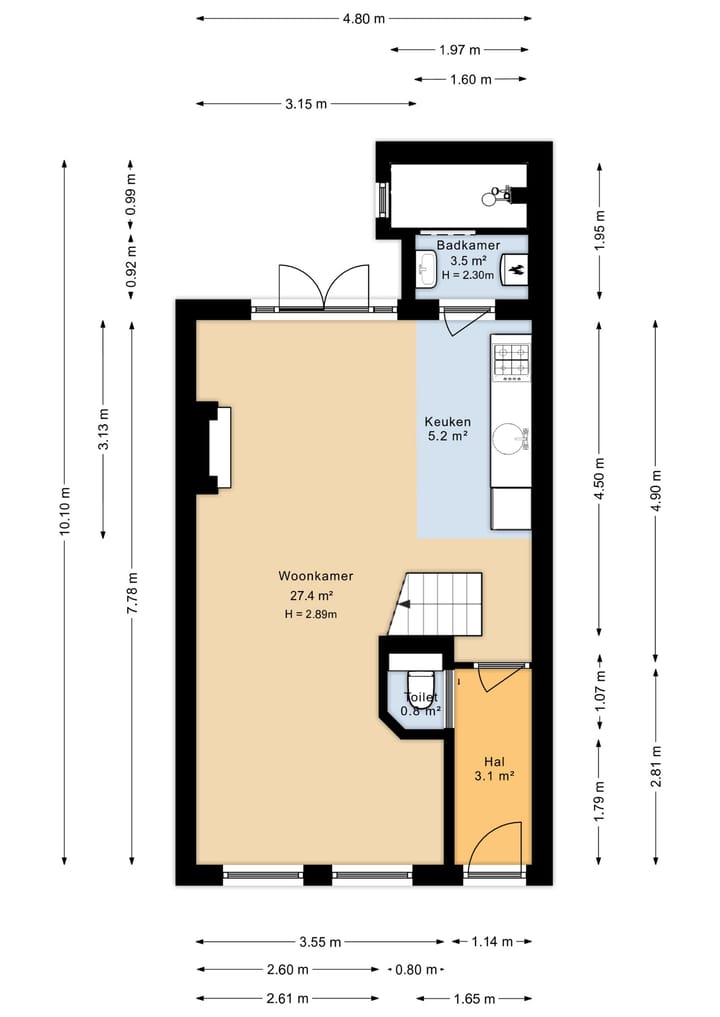
Indeling van de woning:
Begane grond:
- hal/entree met meterkast
- toilet
- woonkamer met hoog plafond en openslaande deuren naar de achtertuin
- open keuken met eenvoudig keukenblok
- trapopgang vanuit de woonkamer
- badkamer met wastafel met meubel, ligbad en cv-opstelling (werkt niet meer)
1e verdieping:
- overloop
- 2 slaapkamers (circa 7 en 8 m2)
Algemeen:
- gebruikersoppervlakte wonen 62 m2 en inhoud 244 m3
- perceeloppervlakte van 86 m2
- energielabel E
- Dakisolatie van toepassing
- cv-ketel werkt niet meer, woning wordt thans verwarmd met gashaard
- gemeentelijk monument
- aanvaarding kan op korte termijn
De woning is gemeten op basis van de Branche Brede Meetinstructie (BBMI). Deze meetinstructie is bedoeld om een meer eenduidige manier van meten toe te passen voor het geven van een indicatie van de gebruiksoppervlakte.
De Meetinstructie sluit verschillen in meetuitkomsten niet volledig uit, door bijvoorbeeld interpretatieverschillen, afrondingen of beperkingen bij het uitvoeren van de meting.
De Vos Makelaardij staat niet in voor de juistheid van de plattegronden en aanvaardt hiervoor geen aansprakelijkheid.
Kenmerken
Overdracht
- Laatste vraagprijs
- € 150.000 kosten koper
- Vraagprijs per m²
- € 2.419
- Status
- Verkocht
Bouw
- Soort woonhuis
- Eengezinswoning, tussenwoning
- Soort bouw
- Bestaande bouw
- Bouwjaar
- 1906
- Specifiek
- Gedeeltelijk gestoffeerd en monument
- Soort dak
- Zadeldak bedekt met pannen
Oppervlakten en inhoud
- Gebruiksoppervlakten
- Wonen
- 62 m²
- Externe bergruimte
- 6 m²
- Perceel
- 86 m²
- Inhoud
- 244 m³
Indeling
- Aantal kamers
- 3 kamers (2 slaapkamers)
- Aantal badkamers
- 1 badkamer
- Badkamervoorzieningen
- Douche, ligbad, toilet, en wastafel
- Aantal woonlagen
- 2 woonlagen
- Voorzieningen
- Natuurlijke ventilatie en TV kabel
Energie
- Energielabel
- E
- Isolatie
- Dakisolatie
- Verwarming
- Gaskachels
Kadastrale gegevens
- LEEUWARDEN G 18048
- Kadastrale kaart
- Oppervlakte
- 86 m²
- Eigendomssituatie
- Volle eigendom
Buitenruimte
- Ligging
- Aan rustige weg en in woonwijk
- Tuin
- Achtertuin en voortuin
- Achtertuin
- 28 m² (6,00 meter diep en 4,59 meter breed)
- Ligging tuin
- Gelegen op het zuiden
Bergruimte
- Schuur/berging
- Vrijstaande houten berging
Parkeergelegenheid
- Soort parkeergelegenheid
- Openbaar parkeren
Foto's 46
© 2001-2025 funda













































