
Omschrijving
- Oude Herengracht 14 te Leiden
English text below!
Opgelet! Wij mogen u aanbieden een volledig gerenoveerde benedenwoning met achtertuin op loopafstand van het bruisende centrum van Leiden. Het appartement is onlangs verbouwd en voorzien van een nieuwe keuken, badkamer, apart toilet, elektra, vloer, wanden zijn gestuct en gesaust. Dit pand, ligt aan een mooie locatie, op loopafstand van alles wat Leiden te bieden heeft zoals. De Leidse Schouwburg, musea, bioscopen, terrassen, restaurants, winkels de markt en stadsparken.Het Centraal Station, LUMC, Universiteit Leiden, Hoge School Leiden en het bioScience Park die zich op loopafstand bevinden.
Indeling:
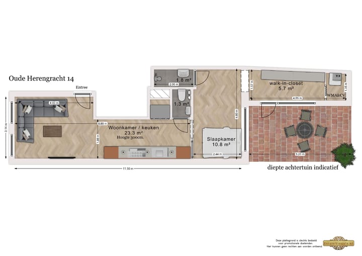
Entree met gezamenlijk hal en eigen bergruimte, afgesloten deur tot appartement op de begane grond. De ruime en lichte woonkamer is voorzien van een nette vloer, open keuken die voorzien is van diverse inbouwapparatuur. Er is een apart toilet aanwezig. De slaapkamer is gelegen aan de achterzijde en geeft toegang tot de nette badkamer met wastafel en walk-in closet. Via de achterzijde heeft u toegang tot de achtertuin.
Kortom: Op zoek naar een heerlijk appartement, waarbij het letterlijk uitpakken en wonen is, welkom bij de Oude Herengracht.
Bijzonderheden:
- Bouwjaar: 1938;
- Volledig gerenoveerd;
- Aan de Oude Herengracht in Leiden;’
- Loopafstand van het centrum;
- Heerlijk 2-kamer appartement;
- Volledig gerenoveerd;
- Combi ketel aanwezig en in eigendom;
- Achtertuin is indicatief te zien op de tekening en dient nog exact gesplitst te worden bij de notaris;
- Vve dient geactiveerd te worden met de kopers van de appartementen erboven;
- Inschrijving KvK van de Vve wel al aanwezig;
- Oplevering in overleg, kan snel.
Vraagprijs € 329.500,- K.K.
Attention! We can offer you a completely renovated ground floor apartment with backyard within walking distance of the bustling center of Leiden. The apartment has recently been renovated and has a new kitchen, bathroom, separate toilet, electricity, floor, walls have been plastered and painted. This building is in a beautiful location, within walking distance of everything Leiden has to offer. The Leidse Theater, museums, cinemas, terraces, restaurants, shops, the market and city parks. Central Station, LUMC, Leiden University, Leiden High School and the BioScience Park are within walking distance.
Layout:
Entrance with shared hall and own storage space, closed door to the apartment on the ground floor. The spacious and bright living room has a neat floor, open kitchen with various built-in appliances. There is a separate toilet. The bedroom is located at the rear and gives access to the neat bathroom with sink and walk-in closet. You have access to the backyard through the rear.
In short: If you are looking for a wonderful apartment where you can literally unpack and live, welcome to the Oude Herengracht.
Details:
- Year of construction: 1938;
- Completely renovated;
- On the Oude Herengracht in Leiden;'
- Walking distance from the center;
- Lovely 2-room apartment;
- Completely renovated;
- Combi boiler available and owned;
- The backyard can be seen indicatively on the drawing and must still be split exactly at the notary;
- Vve must be activated with the buyers of the apartments above;
- Chamber of Commerce registration of the Vve is already present;
- Delivery in consultation, can be done quickly.
Asking price € 329,5000 K.K.
Kenmerken
Overdracht
- Laatste vraagprijs
- € 329.500 kosten koper
- Vraagprijs per m²
- € 7.011
- Status
- Verkocht
Bouw
- Soort appartement
- Benedenwoning (appartement)
- Soort bouw
- Bestaande bouw
- Bouwjaar
- 1938
- Soort dak
- Samengesteld dak bedekt met bitumineuze dakbedekking en pannen
Oppervlakten en inhoud
- Gebruiksoppervlakten
- Wonen
- 47 m²
- Inhoud
- 189 m³
Indeling
- Aantal kamers
- 1 kamer (1 slaapkamer)
- Aantal badkamers
- 1 badkamer en 1 apart toilet
- Badkamervoorzieningen
- Douche en wastafel
- Aantal woonlagen
- 1 woonlaag
- Voorzieningen
- Mechanische ventilatie en TV kabel
- Gelegen op
- Begane grond
Energie
- Energielabel
- Isolatie
- Dubbel glas
- Verwarming
- Cv-ketel
- Warm water
- Cv-ketel
- Cv-ketel
- Gas gestookt, eigendom
Kadastrale gegevens
- LEIDEN C 2502
- Kadastrale kaart
- Eigendomssituatie
- Volle eigendom
Buitenruimte
- Ligging
- Aan vaarwater, in centrum en vrij uitzicht
- Tuin
- Achtertuin
Parkeergelegenheid
- Soort parkeergelegenheid
- Betaald parkeren en parkeervergunningen
VvE checklist
- Inschrijving KvK
- Ja
- Jaarlijkse vergadering
- Nee
- Periodieke bijdrage
- Nee
- Reservefonds aanwezig
- Nee
- Onderhoudsplan
- Nee
- Opstalverzekering
- Nee
Foto's 28
© 2001-2026 funda



























