
Omschrijving
Uniek grachtenpand aan de Herengracht – Rijksmonument met potentie in hartje Leiden
Aan één van de mooiste grachten van Leiden ligt dit indrukwekkende rijksmonument uit 1725: Herengracht 18. Een statig pand vol karakter, historie en mogelijkheden. Met een unieke ligging midden in het centrum en uitzicht op het kalme water van de gracht, is dit een plek waar rust en het bruisende stadsleven samenkomen.
Het pand is momenteel opgedeeld in drie zelfstandige appartementen, verdeeld over de begane grond, eerste, tweede en derde verdieping. Elk appartement beschikt over een eigen meterkast en cv-ketel, wat flexibiliteit biedt voor gebruik of verhuur. Er is een vergunning én tekeningen aanwezig voor deze driedeling, wat het pand bijzonder geschikt maakt voor beleggers of mensen die op zoek zijn naar een combinatie van wonen en verhuren.
Maar dat is niet alles: de woning biedt óók de mogelijkheid om het pand weer te transformeren tot één royaal en karakteristiek woonhuis. Daarmee is Herengracht 18 ideaal voor wie droomt van wonen in een historisch pand met volop ruimte, midden in de stad.
De Herengracht is zonder twijfel één van de meest karakteristieke en geliefde grachten van Leiden. Hier ervaar je dagelijks de sfeer van vervlogen tijden, met prachtige gevels, statige panden en het rustgevende water voor de deur. Tegelijkertijd woon je hier in het hart van de stad, met winkels, gezellige cafés, restaurants en speciaalzaken op loopafstand, waaronder de levendige Haarlemmerstraat.
Voor de dagelijkse boodschappen zijn er meerdere supermarkten in de directe omgeving, en ook wie van cultuur of natuur houdt, zit hier goed. Het Plantsoen, de Hortus Botanicus, de Pieterskerk en andere historische bezienswaardigheden liggen op steenworp afstand. Het Centraal Station en diverse uitvalswegen zijn uitstekend bereikbaar, waardoor je snel in en uit de stad bent.
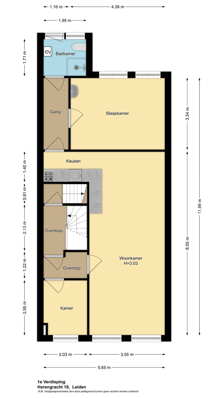
De indeling is als volgt:
Begane grond:
Entree gebouw. Ruime hal met meterkasten, trap naar de verdieping en een trapkast. Ruim appartement die nog naar eigen wens ingedeeld kan worden. De keuken zou naar de nis in het midden verplaatst kunnen worden, waardoor er aan de achterzijde een slaapkamer gemaakt zou kunnen worden. De badkamer zou naast de keuken gemaakt kunnen worden.
Eerste verdieping:
Overloop met toegang tot het tweede en derde appartement. De entree van het appartement op de eerste verdieping is aan de voorzijde. Kleine hal met toegang tot de eerste slaapkamer aan de voorzijde en de woonkamer. De woonkamer is heerlijk ruim en door zijn formaat makkelijk in te delen. Er is een eenvoudige open keuken. Aan de achterzijde is er een gang die toegang geeft tot de tweede en tevens grootste slaapkamer. Aan het einde van de gang de badkamer met douche, toilet, wastafel en de cv-ketel. In de badkamer is verder nog een deur naar het platte dak.
Tweede verdieping:
Kleine overloop met toilet en toegang tot zowel de woonkamer als de slaapkamer. De woonkamer ligt aan de straat zijde en heeft een open keuken. Aan de achterzijde de slaapkamer met wastafel en toegang tot badkamer met douche. Op de overloop is er nog een vaste “vlizotrap” die toegang geeft tot de derde verdieping met zichtbare kapconstructie. Op deze derde verdieping hangt ook de cv-ketel van dit appartement.
Kort samengevat:
• Rijksmonument uit 1725 aan de Herengracht
• Momenteel opgedeeld in 3 zelfstandige appartementen
• Vergunning en tekeningen voor drie wooneenheden aanwezig
• Mogelijkheid tot samenvoeging tot één royaal woonhuis
• Gelegen op toplocatie in het historische centrum van Leiden
• Nabij winkels, horeca, cultuur, groen en openbaar vervoer
Kenmerken
Overdracht
- Laatste vraagprijs
- € 995.000 kosten koper
- Vraagprijs per m²
- € 4.403
- Status
- Verkocht
Bouw
- Soort woonhuis
- Herenhuis, tussenwoning
- Soort bouw
- Bestaande bouw
- Bouwjaar
- 1725
- Specifiek
- Beschermd stads- of dorpsgezicht en monument
- Soort dak
- Zadeldak bedekt met pannen
Oppervlakten en inhoud
- Gebruiksoppervlakten
- Wonen
- 226 m²
- Perceel
- 102 m²
- Inhoud
- 944 m³
Indeling
- Aantal kamers
- 7 kamers (4 slaapkamers)
- Aantal badkamers
- 2 badkamers en 2 aparte toiletten
- Badkamervoorzieningen
- 2 douches en toilet
- Aantal woonlagen
- 4 woonlagen
Energie
- Energielabel
- Niet verplicht
- Verwarming
- Cv-ketel
- Warm water
- Cv-ketel
- Cv-ketel
- HR-combiketel (gas gestookt combiketel, eigendom)
Kadastrale gegevens
- LEIDEN I 2926
- Kadastrale kaart
- Oppervlakte
- 102 m²
- Eigendomssituatie
- Volle eigendom
Buitenruimte
- Ligging
- Aan vaarwater en in centrum
Parkeergelegenheid
- Soort parkeergelegenheid
- Betaald parkeren
Foto's 33
© 2001-2026 funda
































