
Omschrijving
TWEE-ONDER-EEN-KAP-WONING MET EXTRA GROTE BERGING
HET PROJECT
De Notentuin wordt een nieuw buurt in Lelystads nieuwste wijk Warande. De stad is hier vlakbij, maar vooral de natuur springt in het oog. Hier woon je tussen twee parken in: het Elzenpark en het toekomstige Esdoornpark. Deze parkbossen worden met elkaar verbonden via een groene verbindingszone. Zowel fase 1 als fase 2 zijn gestart met de bouw en naar verwachting wordt fase 2 opgeleverd in het najaar van 2025.
In fase 2 komen 16 woningen, verdeeld over een 4 vrijstaande villa's en 12 twee-onder-een-kapwoningen. De woningen van De Notentuin, zijn duidelijk familie van elkaar, maar zijn elk toch net weer even anders. Dat zorgt voor een gemêleerd straatbeeld en volop keuze. De bebouwing heeft een eigentijdse, landelijke architectuurstijl, bestaande uit woningen met zadeldaken of daarvan afgeleide dakvormen met lage gootaanzetten. Door toepassing van houten gevelbekleding, in combinatie met metselwerk ontstaat een gebied met een hoge architectonische kwaliteit. De nieuwe duurzame wijk heeft een kleinschalig karakter, passend bij de omliggende polder. Dat maakt De Notentuin dé plek voor starters, doorstromers en gezinnen. Drukke straten zul je er niet vinden. Gemak, ruimte en vrijheid staan voorop!
ROYALE TWEE-ONDER-EEN-KAPWONING
Ben je op zoek naar ruime en energiezuinige twee-onder-een-kapwoning? Dan is deze woning echt iets voor jou. Deze fraaie woning heeft een woonoppervlakte van 160 m2, verdeeld over drie royale verdiepingen en een grote berging van circa 15 m2 in de achtertuin.
Indeling bouwnummer 48:
Zij-entree met toegang tot het toilet (compleet met sanitair en moderne tegels) en de trap naar de eerste verdieping met daaronder een trapkast. Aan de voorzijde bevindt zich de keuken. Deze wordt casco opgeleverd, zodat na oplevering naar eigen wens de keuken kan worden geplaatst. Hierbij kan een groot eiland worden geplaatst met zowel het koken als het spoelen. Aan de muur kan een grote kastenwand komen met alle apparatuur. Aan de achterzijde is de tuingerichte woonkamer gelegen met openslaande deuren naar de achtertuin (ZO). In de achtertuin bevind zich een extra grote berging met kanteldeur van circa 15 m2. Er zijn al extra heipalen geslagen voor een eventuele later te plaatsen uitbouw van 2,4 meter op de begane grond.
Op de eerste verdieping bevinden zich een ruime en lichte overloop, 3 slaapkamers, waarbij de master bedroom aan de voorzijde is gelegen en is voorzien van een inloopkast. Naast deze slaapkamer ligt de ruime badkamer. Deze badkamer is compleet en voorzien van een toilet, dubbele wastafel, ligbad, douche, vloerverwarming en moderne grote tegels.
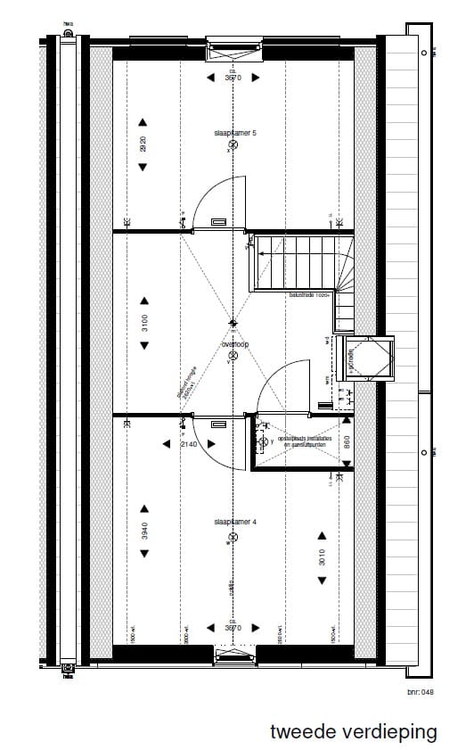
De tweede verdieping heeft 2 ruime slaapkamers en een grote overloop. Op deze overloop bevinden zich de opstelplaats voor de wasmachine en droger. Ook is er nog een afgesloten technische ruimte.
Koopsom € 565.000,-- v.o.n.
De koopsom is compleet met meerwerkopties: Heipalen t.b.v. een uitbouw van 2,4 meter, trapkast, vergroten berging in tuin, installatie t.b.v. keuken met eilandopstelling, aansluiting afzuigkap uit vloer ipv uit plafond, tegelpakket toilet en badkamer Premium variant (kleur creme), standaard sanitair en wijzigen formaat douchebak naar 120x90x4, binnendeuren zonder bovenlicht, set van 2 buitenkranen, pakket extra wandcontactdozen, pakket loze leidingen, extra aardlekschakelaar, bedrade leiding tuinverlichting achtergevel en een loze leiding t.b.v. autolaadpunt
ENERGIEZUINIG
Je woning in De Notentuin is duurzaam en energiezuinig. Met dank aan stadsverwarming, comfortabele vloerverwarming op alle verdiepingen waarbij alle vertrekken een eigen thermostaat hebben en hoogwaardige en onderhoudsvriendelijke kunststof kozijnen met triple glas en screens. Dat zorgt ervoor dat je woning voldoet aan de eisen van Woningborg met betrekking tot de BENGnorm en energielabel A++ zullen hebben.
LOCATIE
In De Notentuin woon je overal dichtbij. Voor je dagelijkse boodschappen fiets je naar de supermarkt of bakker. Scholen, kinderopvang en sportgelegenheden vind je overal. Om fijn te wonen hoef je Lelystad niet uit. Wil je dat wel? Vanuit De Notentuin rijd je via de A6 zo richting Amsterdam, Utrecht of Zwolle. Ga je liever met het OV? Ook het treinstation ligt op fietsafstand. Waar je ook naartoe gaat, Lelystad is de ideale uitvalsbasis om te wonen.
Kenmerken
Overdracht
- Laatste vraagprijs
- € 565.000 vrij op naam
- Vraagprijs per m²
- € 3.844
- Status
- Verkocht
Bouw
- Soort woonhuis
- Eengezinswoning, 2-onder-1-kapwoning
- Soort bouw
- Nieuwbouw
- Bouwjaar
- 2025
Oppervlakten en inhoud
- Gebruiksoppervlakten
- Wonen
- 147 m²
- Externe bergruimte
- 15 m²
- Inhoud
- 368 m³
Indeling
- Aantal kamers
- 6 kamers (5 slaapkamers)
- Aantal badkamers
- 1 badkamer en 1 apart toilet
- Badkamervoorzieningen
- Douche, dubbele wastafel, ligbad, toilet, en vloerverwarming
- Aantal woonlagen
- 3 woonlagen
- Voorzieningen
- Balansventilatie en dakraam
Energie
- Energielabel
- Niet beschikbaar
- Isolatie
- Driedubbel glas en volledig geïsoleerd
- Verwarming
- Stadsverwarming en gehele vloerverwarming
- Warm water
- Centrale voorziening
Buitenruimte
- Ligging
- In woonwijk
- Tuin
- Achtertuin en voortuin
- Achtertuin
- 90 m² (10,00 meter diep en 9,00 meter breed)
- Ligging tuin
- Gelegen op het zuidoosten
Bergruimte
- Schuur/berging
- Vrijstaande houten berging
- Voorzieningen
- Elektra
Parkeergelegenheid
- Soort parkeergelegenheid
- Op eigen terrein
Foto's 38
© 2001-2026 funda





































