
Omschrijving
Landelijk wonen in Loenersloot!
Gelegen in een rustige straat aan de rand van Loenersloot is deze goed onderhouden twee-onder-één-kapwoning met garage, vijf slaapkamers en een fantastisch uitzicht over de weilanden!
Loenersloot is een landelijk gelegen dorpje in de gemeente Stichtse Vecht, aan rivier de Angstel en gekenmerkt door Kasteel Loenersloot. Het best bewaarde geheim van de Randstad en waarvan het kasteelpark dagelijks vrij toegankelijk is voor publiek.
Centraal gelegen tussen Amsterdam, Utrecht, Hilversum en Mijdrecht, met uitstekende verbinding via A2 en N201 en een goede busverbinding naar NS Station Breukelen en Abcoude.
In Loenersloot is een basisschool (Montessorischool Loenersloot) aanwezig en in de omgeving diverse middelbare scholen.
Voor de dagelijkse boodschappen is Loenen aan de Vecht op korte (fiets) afstand.
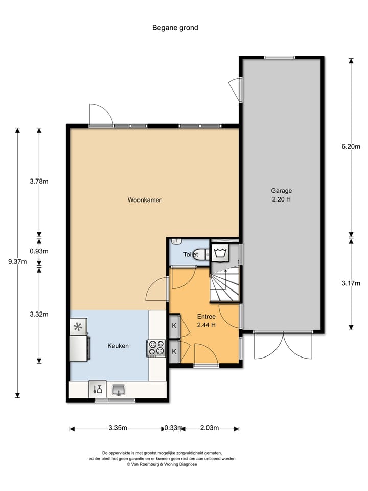
Indeling:
Via de voortuin met oprit met parkeermogelijkheid is de entree van de woning te bereiken.
Toegang tot de woning, ruime hal met garderobe, meterkast, bergkast, toilet, toegang naar de garage, trapopgang naar de eerste verdieping en toegang tot de ruime woonkamer.
De open keuken is aan de voorzijde gelegen en beschikt over een keramische kookplaat, afzuigkap, vaatwasser, oven en een koelkast.
Lichte en ruime woonkamer met schitterend uitzicht over de achtergelegen weilanden!
Mooie verzorgde achtertuin gelegen op het oosten en er is ook toegang tot de garage vanuit de tuin.
De garage heeft aan de voorzijde openslaande deuren, aansluitingen voor de wasmachine en droger en zeer veel opbergmogelijkheden.
Eerste verdieping:
Overloop, twee slaapkamers aan de voorzijde, ouderslaapkamer aan de achterzijde met een recentelijk geplaatste dakkapel-venster en een vierde slaapkamer met balkonvenster.
Verzorgde badkamer voorzien van ligbad, douche, toilet en wastafel.
Tweede verdieping:
Voorzolder met zijraam, praktische bergruimte en opstelling verwarmingsketel en geiser. Vierde slaapkamer met dakraam aan de achterzijde.
Bijzonderheden:
- Het betreft een schitterend gelegen twee-onder-één-kapwoning;
- De woonoppervlakte bedraagt circa 116 m2;
- Grote woonkamer met open keuken;
- De keuken is voorzien van apparatuur;
- Vier slaapkamers op de eerste verdieping;
- Nette badkamer met ligbad, douche, wastafel en toilet;
- Vijfde slaapkamer op de tweede verdieping;
- Veel bergruimte op de tweede verdieping;
- Gunstige ligging;
- Keurig verzorgde voor- en achtertuin. Achtertuin gelegen op het oosten;
- Ruime garage;
- Parkeren op eigen terrein;
- 18 stuks zonnepanelen;
- Energielabel B.
Wilt u deze prachtige woning zelf ervaren, maak dan snel een afspraak voor een bezichtiging!
Deze informatie is door ARENS MAKELAARS met de nodige zorgvuldigheid samengesteld. Wij aanvaarden echter geen enkele aansprakelijkheid voor enige onvolledigheid, onjuistheid of anderszins, dan wel de gevolgen daarvan. Alle opgegeven maten en oppervlakten zijn indicatief. Koper heeft zijn eigen onderzoeksplicht naar alle zaken, die voor hem van belang zijn. Met betrekking tot deze woning is ARENS MAKELAARS de makelaar van verkoper. Wij adviseren u een NVM-makelaar in te schakelen, die u met zijn deskundigheid zal bijstaan in het aankoopproces. Indien u geen professionele begeleiding wenst in te schakelen, acht u zich volgens de wet deskundig genoeg om alle zaken, die van belang zijn, te kunnen overzien. De Algemene Consumentenvoorwaarden van de NVM zijn van toepassing.
Kenmerken
Overdracht
- Laatste vraagprijs
- € 545.000 kosten koper
- Vraagprijs per m²
- € 4.698
- Status
- Verkocht
Bouw
- Soort woonhuis
- Eengezinswoning, 2-onder-1-kapwoning
- Soort bouw
- Bestaande bouw
- Bouwjaar
- 1984
- Soort dak
- Zadeldak bedekt met pannen
Oppervlakten en inhoud
- Gebruiksoppervlakten
- Wonen
- 116 m²
- Overige inpandige ruimte
- 26 m²
- Perceel
- 179 m²
- Inhoud
- 480 m³
Indeling
- Aantal kamers
- 6 kamers (5 slaapkamers)
- Aantal badkamers
- 1 badkamer en 1 apart toilet
- Badkamervoorzieningen
- Douche, ligbad, toilet, en wastafelmeubel
- Aantal woonlagen
- 3 woonlagen
- Voorzieningen
- Dakraam, glasvezelkabel, mechanische ventilatie, TV kabel, en zonnepanelen
Energie
- Energielabel
- Verwarming
- Heteluchtverwarming
- Warm water
- Geiser
Kadastrale gegevens
- LOENEN F 864
- Kadastrale kaart
- Oppervlakte
- 130 m²
- Eigendomssituatie
- Volle eigendom
- LOENEN H 202
- Kadastrale kaart
- Oppervlakte
- 49 m²
- Eigendomssituatie
- Volle eigendom
Buitenruimte
- Ligging
- Aan rustige weg, in woonwijk, landelijk gelegen en vrij uitzicht
- Tuin
- Achtertuin en voortuin
- Achtertuin
- 63 m² (7,00 meter diep en 9,00 meter breed)
- Ligging tuin
- Gelegen op het oosten bereikbaar via achterom
Garage
- Soort garage
- Aangebouwde houten garage
- Capaciteit
- 1 auto
- Voorzieningen
- Elektra en stromend water
Parkeergelegenheid
- Soort parkeergelegenheid
- Op eigen terrein en openbaar parkeren
Foto's 32
© 2001-2026 funda































