
Omschrijving
Unieke kans: Twee-onder-een-kapwoning met zeer ruim perceel én als extra (naast een bestemming Wonen) ook een bedrijfsbestemming
Bent u op zoek naar een woning met eindeloze mogelijkheden? Dan is dit uw kans! Deze twee-onder-een-kapwoning biedt u niet alleen een woonoppervlak van meer dan 100 m², maar staat ook op een royaal perceel van maar liefst 3.740 m² met bedrijfsmatige bestemming (milieucategorie 1 en 2). Dit maakt het object uitermate geschikt voor ondernemers, hobbyisten of paardenliefhebbers die werk en wonen willen combineren.
De woning:
De woning zelf is degelijk gebouwd, maar verkeert in een eenvoudige staat en dient gemoderniseerd te worden. Dit biedt u juist de kans om de woning volledig naar eigen smaak en behoefte aan te passen. Met de juiste visie tovert u dit huis om tot een heerlijk thuis met volop ruimte in en om het huis.
Het perceel:
Het perceel is bijzonder royaal en voorzien van een bouwvlak van 239 m², wat ruimte biedt voor (uitbreiding van) bedrijfsactiviteiten of het realiseren van bijgebouwen. De bestemming ‘Bedrijf’ (categorie 1 en 2) maakt het mogelijk om een breed scala aan activiteiten te ontplooien, van lichte opslag tot kleinschalige ambachtelijke bedrijven. Daarnaast is het toegestaan om 1 paard te houden, wat het perceel ook interessant maakt voor de liefhebber van kleinschalige paardenhouderij.
Kenmerken:
• Twee-onder-een-kapwoning met ca. 100 m² woonoppervlak
• Perceel van 3.500 m² met bedrijfsbestemming
• Bouwvlak van 239 m²
• Bestemmingsplan: Bedrijf (categorie 1 en 2)
• Stallingsplek voor 3 paarden
• Woning dient gemoderniseerd te worden
• Rustige ligging met uitstekende bereikbaarheid
Een unieke kans voor wie wonen en ondernemen wil combineren op een ruim perceel met potentie.
Of u nu droomt van een eigen plek om te genieten van buitenritten of een rustige thuishaven voor uw paard dichtbij huis, deze locatie biedt een prachtige kans. De woning vraagt om modernisering, maar biedt tegelijkertijd de ruimte en vrijheid waar elke paardenliefhebber van droomt.
Nieuwsgierig naar de mogelijkheden? Neem contact op voor een bezichtiging en ontdek deze unieke plek zelf!
HET BETREFT EEN OBJECT MET GECOMBINEERDE WOON-/BEDRIJFSBESTEMMING, INFORMEER VOORAF NAAR DE FINANCIERINGSMOGELIJKHEDEN OM TELEURSTELLING ACHTERAF TE VOORKOMEN.
BIJZONDERHEDEN:
• Energielabel E;
• Bouwjaar circa 1934;
• Dubbele bestemming; Wonen en 'Bedrijf' in milieucategorie 1 en 2
• Parkeergelegenheid op eigen terrein;
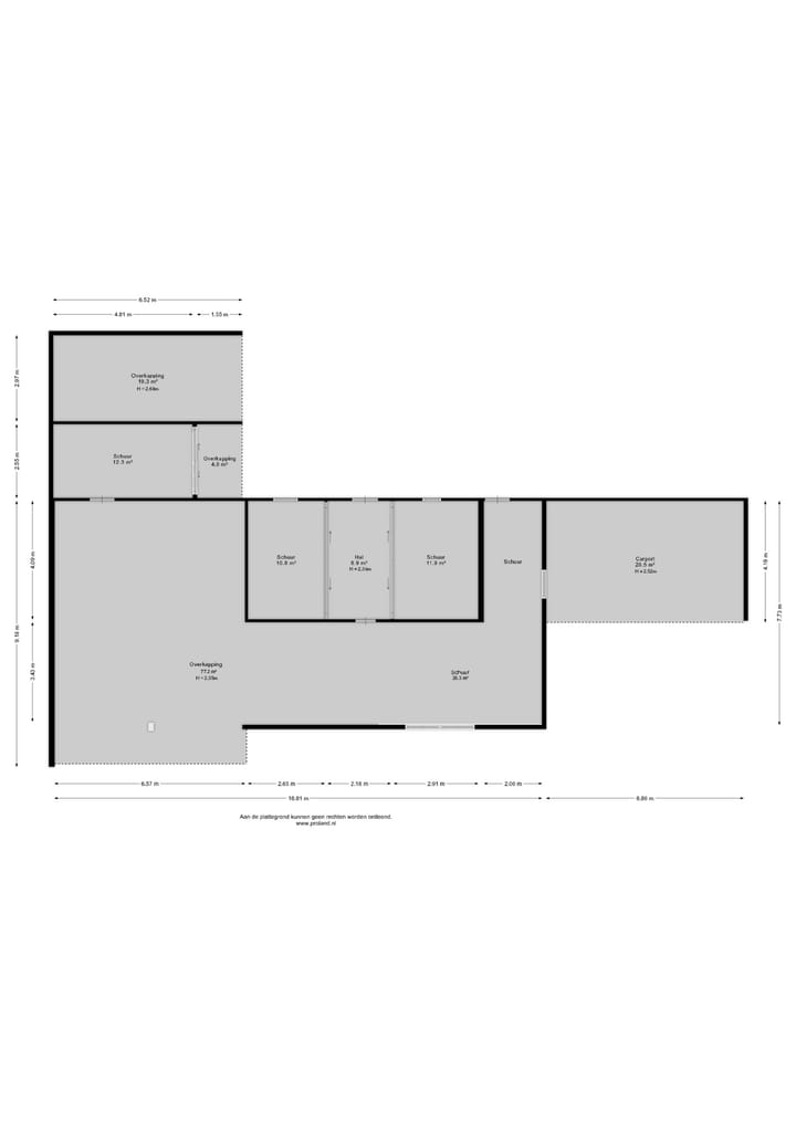
• Bijgebouw met overkapping en paardenstallen;
• Overdrachtsbelasting; deels laag tarief (woonhuis) en deels hoog tarief (bijgebouw +weiland)
• Woonoppervlak circa 108m²;
• Bijgebouw circa 47m²;
• Het hierboven beschreven is geen garantie, maar geeft slechts mogelijkheden aan. Vraag eerst na bij de gemeente of uw bedrijfsmatige wensen / paarden hobby ook daadwerkelijk zijn toegestaan.
• In de koopovereenkomst worden een ouderdomsclausule en asbestclausule opgenomen, alsmede een dubbel gebruik bij artikel 6.3 van de NVM koopovereenkomst;
• Oplevering in overleg.
Plan vandaag nog een bezichtiging en ontdek zelf wat deze woning zo bijzonder maakt!
Voor meer informatie of een bezichtiging, neem contact met ons op. Of je nu jouw droomhuis wilt vinden of je eigendom met vertrouwen wilt verkopen, Derk Makelaardij biedt een persoonlijke aanpak die is gebouwd op expertise, integriteit en toewijding.
Onze missie is helder: de vastgoedreis soepel laten verlopen, van het eerste advies tot de laatste handtekening.
Ervaar de toekomst van vastgoed met Derk Makelaardij – waar jouw doelen ons doel worden.
Kenmerken
Overdracht
- Laatste vraagprijs
- € 675.000 kosten koper
- Vraagprijs per m²
- € 6.250
- Status
- Verkocht
Bouw
- Soort woonhuis
- Eengezinswoning, 2-onder-1-kapwoning
- Soort bouw
- Bestaande bouw
- Bouwjaar
- 1934
- Soort dak
- Mansarde dak bedekt met pannen
Oppervlakten en inhoud
- Gebruiksoppervlakten
- Wonen
- 108 m²
- Overige inpandige ruimte
- 10 m²
- Externe bergruimte
- 45 m²
- Perceel
- 3.740 m²
- Inhoud
- 460 m³
Indeling
- Aantal kamers
- 5 kamers (4 slaapkamers)
- Aantal badkamers
- 1 badkamer en 2 aparte toiletten
- Badkamervoorzieningen
- Douche en wastafel
- Aantal woonlagen
- 2 woonlagen en een vliering
- Voorzieningen
- TV kabel
Energie
- Energielabel
- Isolatie
- Gedeeltelijk dubbel glas
- Verwarming
- Cv-ketel
- Warm water
- Cv-ketel
- Cv-ketel
- Nefit (gas gestookt combiketel uit 2000, eigendom)
Kadastrale gegevens
- MAARSSEN C 10
- Kadastrale kaart
- Oppervlakte
- 3.740 m²
- Eigendomssituatie
- Volle eigendom
Buitenruimte
- Ligging
- Aan drukke weg, buiten bebouwde kom en vrij uitzicht
- Tuin
- Achtertuin, voortuin en zijtuin
- Achtertuin
- 110 m² (22,00 meter diep en 5,00 meter breed)
- Ligging tuin
- Gelegen op het zuidwesten bereikbaar via achterom
Bergruimte
- Schuur/berging
- Vrijstaande houten berging
Garage
- Soort garage
- Carport
Parkeergelegenheid
- Soort parkeergelegenheid
- Op eigen terrein en openbaar parkeren
Foto's 44
© 2001-2026 funda











































