
Omschrijving
Instapklaar en sfeervol 3-kamerappartement met royaal souterrain en privé tuin in Maastricht
Op zoek naar een instapklare woning met een warme uitstraling én extra ruimte? Dit keurig afgewerkte 3-kamerappartement aan de Malpertuisstraat in Maastricht is gelegen in een verzorgd complex met veel groen in de omgeving. De woning beschikt over een royaal souterrain, lichte leefruimtes en een frisse, moderne inrichting. Ideaal voor starters, stellen of kleine gezinnen!
Begane grond:
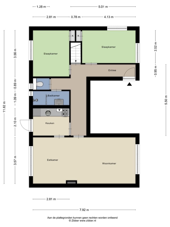
Via bordes bereikbare entree naar centrale hal die in verbinding staat tot alle ruimtes. De sfeervolle en goed ingedeelde woonkamer met een grote raampartij aan zowel de voor- als achterzijde zorgt voor een aangename lichtinval en een vrij uitzicht op het groen voor de deur. Dankzij de ietwat verhoogde ligging geniet je overigens van extra privacy én een fijn uitzicht. De woonkamer loopt naadloos over in de eetkamer, ideaal voor gezellige diners of een rustige thuiswerkplek.
De keuken is bereikbaar via een aparte deur vanuit zowel de eetkamer als de centrale hal en is voorzien van voldoende kastruimte, werkblad en diverse inbouwapparatuur. Vanuit de keuken is ook de achtertuin te bereiken. Verder bevinden zich in dit appartement twee comfortabele slaapkamers, beide met voldoende lichtinval en ruimte voor een kast of bureau. De nette en in 2021 vernieuwde badkamer is voorzien van een douche en wastafel; het toilet, eveneens in die tijd vernieuwd, is separaat. Een praktische indeling met oog voor comfort.
Souterrain:
Via de centrale hal bereik je het ruime privé souterrain, verdeeld in twee gedeeltes (ca. 28 m² totaal). Perfect te gebruiken als extra berging, hobbyruimte of zelfs thuiswerkplek. De inpandige toegang zorgt voor optimaal gemak, maar ook van buiten is deze prima bereikbaar.
Tuin:
Gezellige privé-tuin (ca. 33m²) gelegen op het zuidoosten, met de gehele dag zon. De tuin is bereikbaar vanuit de keuken alsook het souterrain. Vanaf de straatzijde is met een afgesloten poort toegang tot het terrein behorende bij het complex, alwaar de privétuinen zijn gelegen.
Aanvullende informatie:
- Goed onderhouden en direct te betrekken appartement met twee slaapkamers
- Groot privé souterrain met veel mogelijkheden
- Privé tuin, gelegen op het zuidoosten
- Kunststof kozijnen met isolerende beglazing
- Voor- en achterdeur worden op korte termijn vernieuwd;
- Cv-ketel (HR, huur, bouwjaar 2021);
- VvE -bijdrage €169,69 p/mnd: groot onderhoud, glasverzekering, opstalverzekering, onderhoud groenvoorziening, gezamenlijke verbruikskosten voor elektriciteit.
- Voldoende gratis parkeergelegenheid in de omgeving
- Centrale ligging nabij winkels, scholen, sportfaciliteiten, openbaar vervoer en uitvalswegen
- Kortom: een verrassend ruim en licht appartement met extra's die je niet snel vindt in deze prijsklasse. Plan snel een bezichtiging en laat je verrassen door de ruimte en sfeer die deze woning te bieden heeft!
Deze informatie is met zorg samengesteld. Desondanks kunnen er geen rechten aan worden ontleend. Alle opgegeven maten zijn indicatief. Deze aanbieding geldt uitsluitend als uitnodiging tot bezichtiging.
Kenmerken
Overdracht
- Laatste vraagprijs
- € 219.000 kosten koper
- Vraagprijs per m²
- € 2.882
- Status
- Verkocht
- Bijdrage VvE
- € 169,69 per maand
Bouw
- Soort appartement
- Portiekwoning
- Soort bouw
- Bestaande bouw
- Bouwjaar
- 1959
Oppervlakten en inhoud
- Gebruiksoppervlakten
- Wonen
- 76 m²
- Overige inpandige ruimte
- 28 m²
- Inhoud
- 344 m³
Indeling
- Aantal kamers
- 3 kamers (2 slaapkamers)
- Aantal badkamers
- 1 badkamer en 1 apart toilet
- Badkamervoorzieningen
- Douche, wastafel, en wastafelmeubel
- Aantal woonlagen
- 1 woonlaag
Energie
- Energielabel
- D
- Verwarming
- Cv-ketel
- Warm water
- Cv-ketel
- Cv-ketel
- HR (gas gestookt combiketel uit 2021, huur)
Kadastrale gegevens
- MAASTRICHT L 3910
- Kadastrale kaart
- Eigendomssituatie
- Volle eigendom
Buitenruimte
- Tuin
- Achtertuin
- Achtertuin
- 0,10 meter diep en 0,03 meter breed
- Ligging tuin
- Gelegen op het zuidoosten
Parkeergelegenheid
- Soort parkeergelegenheid
- Openbaar parkeren
VvE checklist
- Inschrijving KvK
- Ja
- Jaarlijkse vergadering
- Ja
- Periodieke bijdrage
- Ja (€ 169,69 per maand)
- Reservefonds aanwezig
- Ja
- Onderhoudsplan
- Ja
- Opstalverzekering
- Ja
Foto's 29
© 2001-2025 funda




























