
Omschrijving
Goed onderhouden 2-onder-1-kapwoning met doorzon woonkamer, open keuken, tuinkamer, drie slaapkamers, separaat gelegen xl garage met eigen oprit en een fantastisch vrij uitzicht aan de voorzijde. Dit object is rustig en landelijk gelegen aan Op de Warreij 22 in het pittoresk Maasdorp Itteren. De woning is rustig gelegen op een perceel van 253m² in Itteren. Itteren ligt op enkele autominuten rijden van het centrum van Maastricht. Voeg hierbij de unieke landelijke ligging nabij openbaar vervoer, uitvalswegen, de fraaie Maasoever en een uitgestrekt wandel- en fietsgebied en deze locatie biedt u voor nu en voor de toekomst en prettig woon- en leefklimaat.
INDELING
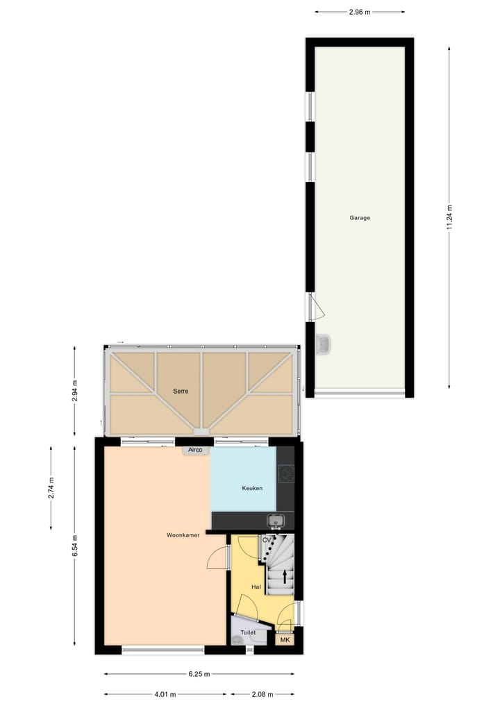
Begane grond:
Entrée/ hal met meterkast, trapopgang met trapkast met CV installatie, toilet en toegang tot de woonkamer. De toiletruimte is voorzien van een wandcloset en een fonteintje. Gezellige, licht overgoten doorzon woonkamer met open keuken (totaal ca. 33 m²), welke voorzien is van een lichte tegelvloer. De zitkamer is aan de voorzijde gelegen en biedt een rustig uitzicht over de velden. De eetkamer bevindt zich aan de achterzijde en staat in open verbinding met de keuken. De open keuken is aan de achterzijde gelegen en beschikt over een keukenaanbouw in L-opstelling met boven- en onderkasten en de navolgende apparatuur: spoelbak, 4- zone inductiekookplaat, combi oven, koelkast met vriesvak, vaatwasser en een afzuigkap. Aansluitend aan de keuken is de tuinkamer/ serre (ca. 17m²) gelegen, welke toegang geeft tot de tuin. Tevens is de woonkamer voorzien van een airco die kan koelen en verwarmen.
1e Verdieping:
Middels vaste trap te bereiken overloop met toegang tot drie slaapkamers en de badkamer. De slaapkamers (respectievelijk ca. 13, 11 en 7,5m²) zijn uitgerust met kunststof kozijnen met isolerende beglazing. De badkamer (ca. 3,5m²) is geheel betegeld en beschikt over een douche, toilet en een vaste wastafel met onderkast.
Tuin:
Dit object beschikt over een onderhoudsvriendelijke betegelde achtertuin, waarbij de achtertuin georiënteerd is op het zuiden. Dit gedeelte is geheel omsloten en beschikt ook over een achteringang. Vanuit de tuin heeft men toegang
tot de xl garage (ca. 33m²), welke voorzien is van licht, elektra, water, een sectionaalpoort en een eigen oprit. Tevens is de omvormer van de zonnepanelen aanwezig in de garage en beschikt de garage over een smeerput.
Nadere bijzonderheden:
- Goed onderhouden woning met een woonoppervlakte van ca. 98m²;
- Gelegen op een perceel van 253m²;
- Aan de voorzijde is de woning voorzien van een fantastisch vrij uitzicht;
- Geheel voorzien van kunststof kozijnen met isolerende beglazing;
- Xl garage met eigen smeerput;
- Cv-ketel (Bosch, ca. uit 2012 gehuurd van Hesi);
- Sfeervolle tuinkamer/ serre aanwezig;
- Uitgerust met een airco;
- Grotendeels voorzien van rolluiken;
- Voorzien van 15 zonnepanelen uit 2021 in eigendom;
- Alle vermelde afmetingen zijn indicatief en kunnen afwijken van de werkelijkheid.
OMGEVING:
Deze woning is gelegen in het pittoresk Maasdorp Itteren, welke sinds 1970 behoort tot de gemeente Maastricht. Itteren is omsloten door het Julianakanaal en de Maas en is omgeven door prachtig natuurschoon, waardoor het een zeer geliefd fiets- en wandelgebied is. Het centrum van Maastricht alsook alle relevante (winkel) voorzieningen van Bunde en Meerssen liggen op korte afstand en zijn per auto, fiets en bus snel en gemakkelijk te bereiken.
Kenmerken
Overdracht
- Laatste vraagprijs
- € 325.000 kosten koper
- Vraagprijs per m²
- € 3.316
- Status
- Verkocht
Bouw
- Soort woonhuis
- Eengezinswoning, 2-onder-1-kapwoning
- Soort bouw
- Bestaande bouw
- Bouwjaar
- 1970
- Soort dak
- Plat dak bedekt met bitumineuze dakbedekking
Oppervlakten en inhoud
- Gebruiksoppervlakten
- Wonen
- 98 m²
- Externe bergruimte
- 33 m²
- Perceel
- 253 m²
- Inhoud
- 348 m³
Indeling
- Aantal kamers
- 4 kamers (3 slaapkamers)
- Aantal badkamers
- 1 badkamer en 1 apart toilet
- Badkamervoorzieningen
- Douche, toilet, en wastafel
- Aantal woonlagen
- 2 woonlagen
- Voorzieningen
- Airconditioning, rolluiken, schuifpui, en zonnepanelen
Energie
- Energielabel
- B
- Isolatie
- Dubbel glas en muurisolatie
- Verwarming
- Cv-ketel en elektrische verwarming
- Warm water
- Cv-ketel
- Cv-ketel
- Bosch (gas gestookt uit 2012, huur)
Kadastrale gegevens
- ITTEREN B 1053
- Kadastrale kaart
- Oppervlakte
- 253 m²
- Eigendomssituatie
- Volle eigendom
Buitenruimte
- Ligging
- Aan rustige weg en vrij uitzicht
- Tuin
- Achtertuin en voortuin
- Achtertuin
- 63 m² (9,60 meter diep en 6,60 meter breed)
- Ligging tuin
- Gelegen op het zuiden bereikbaar via achterom
Garage
- Soort garage
- Vrijstaande stenen garage
- Capaciteit
- 2 auto's
- Voorzieningen
- Elektrische deur, elektra en stromend water
- Isolatie
- Dubbel glas
Parkeergelegenheid
- Soort parkeergelegenheid
- Op eigen terrein en openbaar parkeren
Foto's 19
© 2001-2025 funda


















