
Omschrijving
Ruim en statig herenhuis in hartje Wyck!
Dit karaktervolle herenhuis uit 1926 biedt een unieke combinatie van authentieke sfeer, ruimte en comfort in het steeds populairder wordende stadsdeel Wyck.
Wat maakt dit woonhuis bijzonder?
- Statig en sfeervol: originele details en een tijdloze uitstraling
- Ruime woonkamer met veel lichtinval
- Fraaie keuken, perfect voor kookliefhebbers
- Vijf slaapkamers, drie badkamers, ideaal voor een groot gezin of thuiswerkplek
- Provisiekelder en zolder voor extra bergruimte
- Omsloten stadstuin, een oase van rust midden in de stad
Kenmerkend voor het wonen in Wyck zijn: Stijlvol, Levendig en Historisch.
Wyck is een van de meest gewilde woonwijken van Maastricht, gelegen aan de oostelijke Maasoever. Deze charmante wijk combineert de historische architectuur met de dynamiek van een bruisende stadsomgeving. Niet alleen vanwege een aantal statige historische panden staat Wyck bekend maar ook vanwege de sfeervolle straatjes, de knusse pleintjes en de exclusieve boetieks en winkels. Hier vindt u hippe koffiebars, ambachtelijke speciaalzaken en een breed scala aan restaurants en cafés. De wijk ademt een internationale sfeer, mede dankzij de nabijheid van het treinstation en de centrale bushalte, ideaal voor forenzen en bezoekers van deze stad. Kortom dit stadsdeel combineert historische charme met een levendige sfeer en uitstekende bereikbaarheid.
Indeling:
Souterrain:
Achter een afgesloten deur onder de trap ligt een functionele en karaktervolle mergelkelder. Deze ruimte biedt niet alleen extra bergruimte maar is ook praktisch ingericht met aansluitingen voor een wasmachine, droger, vriezer en de standplaats van de waterontharder. Dankzij de constante temperatuur is deze kelder ook ideaal voor de opslag van wijn en levensmiddelen.
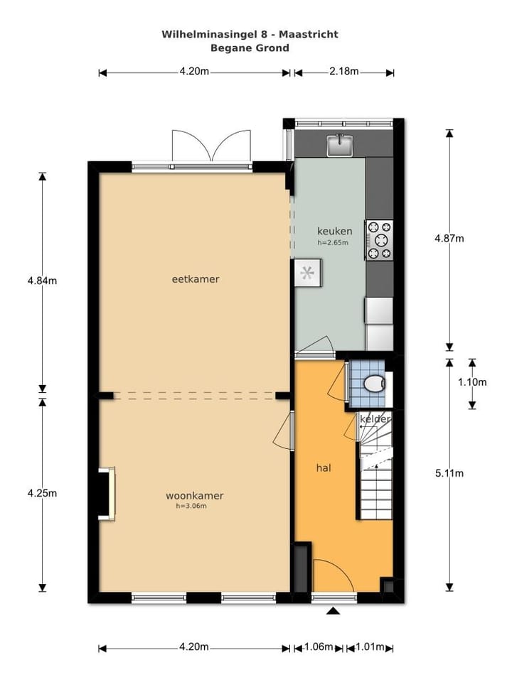
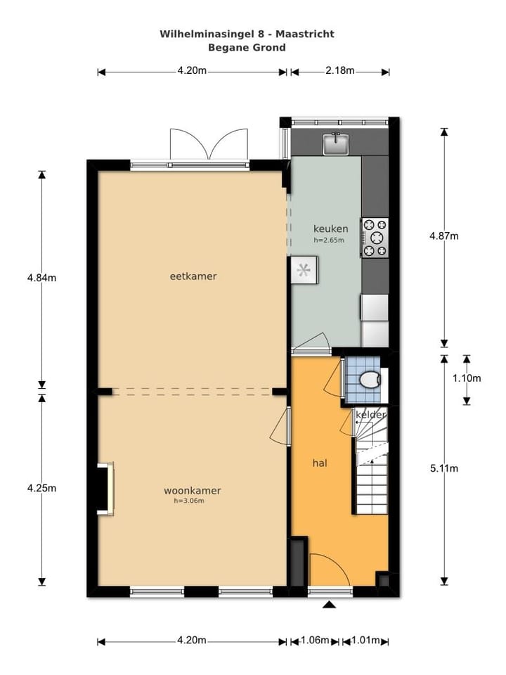
Begane grond:
Stap binnen op de verhoogde begane grond en ervaar direct de charmante sfeer van deze woning. Via een ruime hal bereikt u een lichte en royale woonkamer, een stijlvolle keuken en het moderne toilet. Mooi van de woonkamer van ca. 39m2 is o.a, het hoge plafond, de grote ramen aan de voorzijde en de openslaande tuindeuren die zorgen voor veel natuurlijk licht. Verder geven de authentieke plankenvloer, de gestucte wanden en plafond, de fraaie natuurstenen schouw een mix van klassiek en eigentijds.
De keuken is een droom voor elke kookliefhebber. De keuken is voorzien van een hoogwaardige keukeninrichting met veel boven- en onderkastjes (incl. draaiplateau) en granieten keukenblad, uitgerust met een 6-pits Boretti inductiefornuis met ovens, een vaatwasmachine, een koel-vriescombinatie, magnetron en afzuigkap. De vloer is afgewerkt met een door de hal doorlopende natuurstenen vloer.
Het modern toilet is voorzien van een inbouwcloset met een fonteintje.
Stadstuin:
Stap via openslaande deuren vanuit de woonkamer direct de geheel ommuurde stadstuin in, een waar verlengstuk van uw woonruimte. Deze op het Zuiden gelegen tuin met tuinberging is voorzien van bestrating en een smaakvolle mix van diverse beplanting. De tuin is een groene oase vol rust en privacy.
Eerste verdieping:
Via fraaie trap bereikt u de overloop van de eerste verdieping met drie karaktervolle slaapkamers, een separaat toilet en een badkamer.
Slaapkamer 1: ruime masterbedroom met erker van ca. 19,8m2 aan de voorzijde gelegen compleet met grote inbouwkastenwand.
Slaapkamer 2: ruime aan de achterzijde gelegen slaapkamer (nu als hobbykamer ingebruik) van ca. 18.6m2;
Slaapkamer 3: kleine slaapkamer van ca. 6.3m2, geschikt als studeer-, werk- of extra opbergruimte te gebruiken.
Separaat toilet met inbouwcloset en fonteintje.
Badkamer (1) met ligbad met douchescherm en badkamermeubel met wastafel.
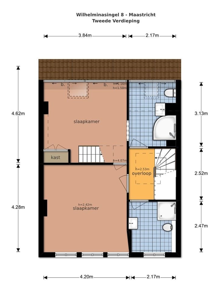
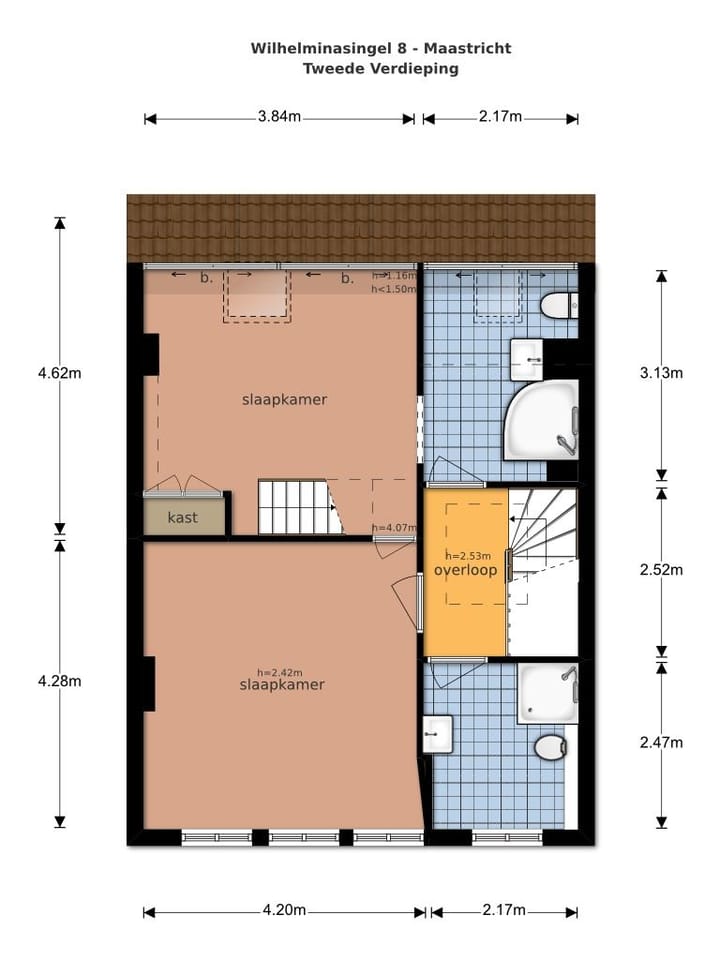
Tweede verdieping:
Via het trappenhuis heeft u toegang tot de overloop met bijzondere lichtkoepel van de 2de verdieping met 2 slaapkamers en 2 badkamers.
Slaapkamer 4: ruime slaapkamer aan de voorzijde gelegen van ca. 18m2 met laminaatvloer.
Slaapkamer 5: slaapkamer van ca. 15.2m2 met groot dakraam is bereikbaar via badkamer (3) en biedt via een vaste trap toegang tot de zolderverdieping.
Badkamer (2): moderne badkamer met douche en glazen douchescherm, toilet (inbouwcloset) en wastafel met onderbouwkast.
Badkamer (3): badkamer met douchecabine, toilet en vaste wastafel.
Ruime bergzolder via trap in slaapkamer 5 bereikbaar. De zolder biedt veel opslagruimte en is de standplaats van de HR combi c.v.-installatie uit 2020 (eigendom).
Verdere bijzonderheden:
Perceeloppervlak: 103m2.
Woonoppervlak: 175m2.
Overige inpandige ruimte: 42m2.
Isolatie: Dakisolatie, kozijnen grotendeels voorzien van enkele beglazing met voorzetramen en rolluiken (grotendeels elektrisch bedienbaar), de tuindeuren en de dakramen zijn dubbel beglaasd.
Energielabel: F geldig tot 2028.
Verwarming- en warmwaterinstallatie: HR c.v.-installatie uit 2020 (eigendom)
Parkeren: vergunninghouders of betaald parkeren in de straat en omgeving.
Bent u op zoek naar een karakteristiek herenhuis met alle gemakken van de stad? Maak een afspraak en ontdek dit bijzondere thuis!
Kenmerken
Overdracht
- Oorspronkelijke vraagprijs
- € 750.000 kosten koper
- Laatste vraagprijs
- € 700.000 kosten koper
- Vraagprijs per m²
- € 4.000
- Status
- Verkocht
Bouw
- Soort woonhuis
- Herenhuis, tussenwoning
- Soort bouw
- Bestaande bouw
- Bouwjaar
- 1926
- Soort dak
- Zadeldak bedekt met pannen
Oppervlakten en inhoud
- Gebruiksoppervlakten
- Wonen
- 175 m²
- Overige inpandige ruimte
- 42 m²
- Externe bergruimte
- 3 m²
- Perceel
- 103 m²
- Inhoud
- 754 m³
Indeling
- Aantal kamers
- 11 kamers (5 slaapkamers)
- Aantal badkamers
- 3 badkamers en 2 aparte toiletten
- Badkamervoorzieningen
- Ligbad, wastafelmeubel, 2 douches, 2 toiletten, en 2 wastafels
- Aantal woonlagen
- 3 woonlagen, een zolder, en een kelder
- Voorzieningen
- Buitenzonwering, dakraam, rolluiken, rookkanaal, en TV kabel
Energie
- Energielabel
- F
- Isolatie
- Dakisolatie en gedeeltelijk dubbel glas
- Verwarming
- Cv-ketel
- Warm water
- Cv-ketel
- Cv-ketel
- HR combi ketel Vaillat Ecotech (gas gestookt combiketel uit 2020, eigendom)
Kadastrale gegevens
- MAASTRICHT E 2051
- Kadastrale kaart
- Oppervlakte
- 103 m²
- Eigendomssituatie
- Volle eigendom
Buitenruimte
- Ligging
- In woonwijk
- Tuin
- Achtertuin
- Achtertuin
- 33 m² (5,00 meter diep en 6,50 meter breed)
- Ligging tuin
- Gelegen op het zuidwesten
Bergruimte
- Schuur/berging
- Vrijstaande stenen berging
Parkeergelegenheid
- Soort parkeergelegenheid
- Parkeervergunningen
Foto's 55
© 2001-2025 funda






















































