Dit huis op Funda: https://www.funda.nl/detail/koop/verkocht/neer/huis-ericalaan-12/89221997/

Omschrijving
Op de hoek van Ericalaan en de Meidoornlaan in Neer staat deze goed onderhouden woning met garage te wachten op zijn nieuwe bewoners. Dus ben je starter of met je gezin op zoek naar een leuke woning, lees dan snel verder….
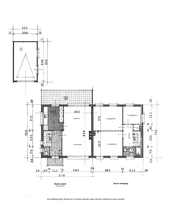
Bij binnenkomst kom je uit in de ontvangsthal. Hier bevindt zich het moderne gastentoilet met fonteintje, de meterkast, trappenkast met cv-ketel, de vaste trap naar de eerste verdieping, de toegang naar de doorzon eet-/ woonkamer met prachtig uitzicht op de groenstrook en het speeltuintje. Vanuit de eetkamer is de luxe keuken te bereiken welke voorzien van diverse inbouwapparatuur en heerlijk uitzicht op groenstrook en tuin. Op de verdieping treft men een keurige badkamer met vloerverwarming, inloopdouche, 2e toilet en wastafelmeubel maar ook drie prima slaapvertrekken. De slaapkamers zijn afgewerkt met eigentijdse laminaatvloeren en behang-/ en stucwerk wanden. Verder is er nog een muurkast waar thans de witgoedaansluiting is opgesteld. Middels vaste trap is de zolderverdieping bereikbaar. Hier is een ruime overloop maar ook 4e slaap-/hobbykamer te bereiken met groot dakraam.
Rondom ligt een mooie perceel met diverse aanplant waarbij de huidige bewoners hebben gekozen om dit in open verbinding te stellen met straat. Nieuwe bewoners kunnen deze omheinen om er meer privacy te creëren. Achter in de tuin ligt nog een garage met eigen oprit welke uitkomt aan de Meidoornlaan.
Kortom, een hele fijne woning met tal van mogelijkheden en meer voldoende ruimte! Deze woning is met minimale investeringen te personaliseren en beschikbaar. Enthousiast?! Neem dan even contact op met ons kantoor en plan je bezichtigingsafspraak. Onze enthousiaste makelaar laat je het graag zien.
Indeling
Begane grond:
Entree/hal – toilet met fonteintje – meterkast – garderobe – trappenkast - eet-/woonkamer en luxe keuken.
Eerste verdieping
Overloop – drie slaapvertrekken – muurkast met witgoedaansluiting en verzorgde badkamer.
Tweede verdieping
Overloop met extra opbergruimte en mogelijkheid voor droger alsook een 4e slaap-/ hobbykamer.
Tuin
De achtertuin is georiënteerd op het Noordoosten met eigen achterom – terras – garage – oprit – diverse aanplant gelegen aan groenstrook met speeltuintje.
Bijzonderheden
- Definitief energielabel C, registratienummer 366438578 en is geldig tot 20-12-2034;
- Luxe keuken (2016) met navolgende inbouwapparatuur inductiekookplaat – RVS afzuigkap – vaatwasser – koelkast en praktische apothekerskast in lichte kleuropstelling;
- Op de begane grond ligt een houtlook PVC vloer en zijn er lichte structuurverf wanden;
- De Nefit cv-installatie (2008) betreft eigendom en hangt beneden in de trappenkast;
- Compacte boven verzorgde badkamer v.v. vloerverwarming, inloopdouche, 2e toilet en vaste wastafelmeubel met spiegelwand;
- Slaapkamers en overloop op de verdieping zijn afgewerkt met een eigentijdse laminaatvloer alsook vinyl en behang-/ en strakke stucwerkwanden;
- Vaste trap naar zolderverdieping met extra slaap-/ en of hobbyruimte met dakraam en verwarming;
- Rondom is de woning v.v. kunststof kozijnen met isolerende beglazing en grotendeels v.v. rolluiken;
- In 2016 is de meterkast aangepast aan de hedendaagse eisen en er is glasvezel aanwezig;
- Stukje grond voor-/ en de zijkant is in bruikleen van de gemeente Leudal;
- Het platte dak van de garage is in 2011 nog in zijn geheel vervangen;
- Deze woning heeft een fantastische ligging grenzend aan een groenvoorziening / speelveldje is ligt op loopafstand van de faciliteiten en heeft een rijk verenigingsleven;
- Alle maten, plattegronden zijn indicatief, waaraan verder geen rechten ontleend kunnen worden;
- Ter bescherming van de belangen van zowel koper als verkoper, wordt uitdrukkelijk gesteld dat een koopovereenkomst met betrekking tot deze onroerende zaak eerst dan tot stand komt nadat koper en verkoper de koopovereenkomst hebben getekend (“schriftelijkheidsvereiste”);
- De termijn die wordt opgenomen voor eventuele (overeengekomen) ontbindende voorwaarden (financiering) is in de regel 6 weken na het sluiten van mondelinge overeenkomst;
- De waarborgsom/bankgarantie is 10% van de koopsom. De koper dient deze 2 weken ná het vervallen van de ontbindende voorwaarden bij de desbetreffende notaris te deponeren;
- Koper is te allen tijde gerechtigd voor eigen rekening een bouwkundige keuring te (laten) verrichten dan wel andere adviseurs te raadplegen teneinde een goed inzicht te verkrijgen over de staat van onderhoud.
Kenmerken
Overdracht
- Laatste vraagprijs
- € 325.000 kosten koper
- Vraagprijs per m²
- € 3.095
- Status
- Verkocht
Bouw
- Soort woonhuis
- Eengezinswoning, hoekwoning
- Soort bouw
- Bestaande bouw
- Bouwjaar
- 1973
- Soort dak
- Zadeldak bedekt met pannen
- Keurmerken
- Energie Prestatie Advies
Oppervlakten en inhoud
- Gebruiksoppervlakten
- Wonen
- 105 m²
- Overige inpandige ruimte
- 10 m²
- Externe bergruimte
- 16 m²
- Perceel
- 305 m²
- Inhoud
- 311 m³
Indeling
- Aantal kamers
- 5 kamers (4 slaapkamers)
- Aantal badkamers
- 1 badkamer en 1 apart toilet
- Badkamervoorzieningen
- Inloopdouche, toilet, vloerverwarming, en wastafelmeubel
- Aantal woonlagen
- 3 woonlagen
- Voorzieningen
- Dakraam, natuurlijke ventilatie, rolluiken, en TV kabel
Energie
- Energielabel
- C
- Isolatie
- Dakisolatie, dubbel glas en muurisolatie
- Verwarming
- Cv-ketel
- Warm water
- Cv-ketel
- Cv-ketel
- Nefit HR (gas gestookt combiketel uit 2008, eigendom)
Kadastrale gegevens
- LEUDAL L 542
- Kadastrale kaart
- Oppervlakte
- 305 m²
- Eigendomssituatie
- Volle eigendom
Garage
- Soort garage
- Vrijstaande stenen garage
- Capaciteit
- 1 auto
- Voorzieningen
- Elektra
Parkeergelegenheid
- Soort parkeergelegenheid
- Op eigen terrein en openbaar parkeren
Foto's 27
© 2001-2025 funda


























