
Omschrijving
Welkom in deze speelse en verrassend ruime eengezinswoning!
In de geliefde en kindvriendelijke wijk Getsewoud Noord wacht deze unieke woning op nieuwe bewoners. Hier geniet u van een levendige, maar toch rustige omgeving met alle voorzieningen binnen handbereik. Winkels, (basis)scholen, sportclubs en speeltuintjes liggen op loopafstand, waardoor dit de perfecte plek is voor jong en oud!
Bij aankomst parkeert u uw auto op eigen terrein en loopt u via de voortuin naar de entree. Binnen wordt u meteen verwelkomd in de ruime en lichte leefkeuken. De speelse vide en de gezellige eetbar geven de ruimte een uitnodigende sfeer. De keuken, uitgevoerd in een neutrale kleurstelling, is voorzien van diverse inbouwapparatuur zoals een koel-/vriescombinatie, vaatwasser, 5-pits gasfornuis, oven en magnetron. Hier grenst de eethoek direct aan, een heerlijke plek om samen te komen en te genieten van een goed diner.
Achter de keuken vindt u bovendien een praktische inpandige berging, ideaal voor fietsen, tuingereedschap en extra opslagruimte. De berging is bereikbaar vanuit de woonkeuken en vanuit de voortuin.
In de voortuin geniet u heerlijk op het terras aangrenzend aan de woning. Hier heeft u vrijwel de gehele middag zon met de gunstige zuidwest ligging.
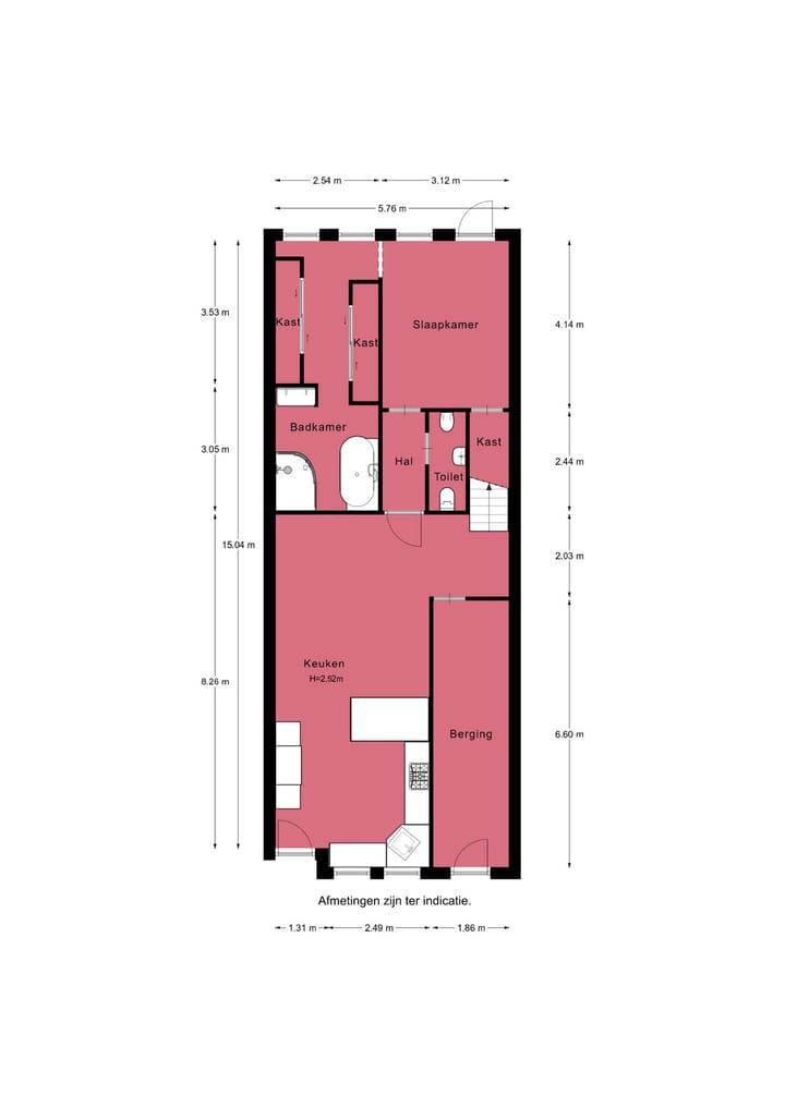
Vanuit het eetgedeelte heeft u toegang tot de hal met toilet met fonteintje en de deur naar de hoofdslaapkamer. Een rustige en comfortabele ruimte met een royale inloopkast en ensuite badkamer. Vanuit deze slaapkamer heeft u toegang tot de achtertuin, waar u 's ochtends met een kop koffie kunt genieten van de eerste zonnestralen. De ensuite badkamer is een ware wellnessruimte met een douche, sauna, ligbad met jacuzzi en jetstreams en een stijlvol wastafelmeubel.
De eerste verdieping verrast met een lichte en ruime doorzonwoonkamer. Dankzij de grote ramen profiteert u hier van een prachtige lichtinval gedurende de hele dag. Deze sfeervolle ruimte biedt volop mogelijkheden voor een comfortabele zithoek of een fijne werkplek. De woonkamer geeft toegang tot het riante terras op het zuidwesten waar u heerlijk van de zomerse dagen kunt genieten.
Op de tweede verdieping bevinden zich nog twee ruime slaapkamers en een tweede badkamer, compleet met een ligbad met jacuzzi en jetstreams, douchecabine, toilet en dubbele wastafel. Daarnaast is er een aparte ruimte voor de wasmachine en droger en opstelplaats voor de cv-installatie (2020).
Bijzonderheden:
- Speels ingedeelde woning
- Voortuin en zonnig terras op de eerste verdieping, beiden gelegen op het zuidwesten
- Eén slaapkamer met ensuite badkamer op de begane grond
- Twee riante slaapkamers op de tweede verdieping
- Tweede badkamer op de tweede verdieping
- Buitenschilderwerk uitgevoerd in 2023
- 13 zonnepanelen (430Wp) geplaatst in 2024
- Mechanische ventilatiebox vernieuwd in 2022
Kenmerken
Overdracht
- Laatste vraagprijs
- € 650.000 kosten koper
- Vraagprijs per m²
- € 3.963
- Status
- Verkocht
Bouw
- Soort woonhuis
- Eengezinswoning, tussenwoning
- Soort bouw
- Bestaande bouw
- Bouwjaar
- 2004
- Soort dak
- Plat dak
Oppervlakten en inhoud
- Gebruiksoppervlakten
- Wonen
- 164 m²
- Overige inpandige ruimte
- 12 m²
- Gebouwgebonden buitenruimte
- 36 m²
- Perceel
- 150 m²
- Inhoud
- 587 m³
Indeling
- Aantal kamers
- 5 kamers (3 slaapkamers)
- Aantal badkamers
- 2 badkamers en 1 apart toilet
- Badkamervoorzieningen
- 2 douches, 2 wastafels, 2 wastafelmeubels, whirlpool, ligbad, en toilet
- Aantal woonlagen
- 3 woonlagen
- Voorzieningen
- Buitenzonwering, mechanische ventilatie, rolluiken, en zonnepanelen
Energie
- Energielabel
- Isolatie
- Volledig geïsoleerd
- Verwarming
- Cv-ketel
- Warm water
- Cv-ketel
- Cv-ketel
- Intergas Kompakt HRE (gas gestookt combiketel uit 2020, eigendom)
Kadastrale gegevens
- HAARLEMMERMEER AE 3355
- Kadastrale kaart
- Oppervlakte
- 150 m²
- Eigendomssituatie
- Volle eigendom
Buitenruimte
- Ligging
- In woonwijk
- Tuin
- Voortuin en zonneterras
- Voortuin
- 50 m² (8,26 meter diep en 6,00 meter breed)
- Ligging tuin
- Gelegen op het zuidwesten
- Balkon/dakterras
- Dakterras aanwezig
Bergruimte
- Schuur/berging
- Inpandig
- Voorzieningen
- Elektra
Parkeergelegenheid
- Soort parkeergelegenheid
- Op eigen terrein en openbaar parkeren
Foto's 45
© 2001-2026 funda












































