
Omschrijving
Ruime eengezinswoning met 3 slaapkamers gelegen op een perceel van maar liefst 148 m².
Het stadsdeel Lindenholt kent een goede bereikbaarheid door de gunstige ligging ten opzichte van de uitvalswegen naar Venlo, ’s-Hertogenbosch, Rotterdam, Arnhem en Keulen. Op loop afstand bevindt zich trein- en busstation Dukenburg. De voorzieningen op het gebied van sport en zorg zijn ruim aanwezig. Deze groene wijk kent twee basisscholen en een scholengemeenschap voor voortgezet onderwijs (het Mondial College Lindenholt). Het recreatiegebied de Berendonc, de meubelboulevard én het winkelcentrum Dukenburg met een grote diversiteit aan winkels liggen op korte afstand.
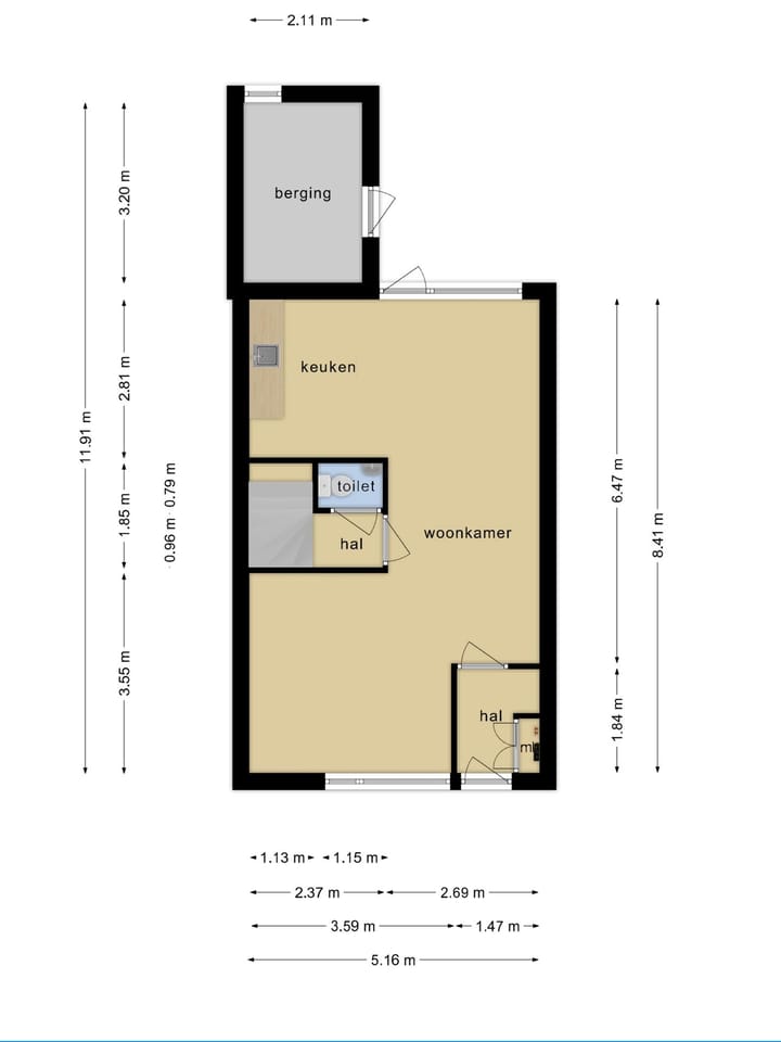
INDELING Entree met tochtportaal en meterkast, L-vormige woonkamer, hal v.v. toilet en trapopgang, open keuken en schuifdeuren naar de achtertuin met een overkapping en achterom in de achtertuin. Vanuit de achtertuin is de aangebouwde stenen berging met praktische vlonder erin bereikbaar. 1e verdieping: ruime overloop met 3 slaapkamers van resp. circa 15m², circa 11 m² en circa 8,5m². Verder een ruime badkamer met een 2e toilet, wastafelmeubel, designradiator, douche en fraaie betegeling.. De zolderverdieping is bereikbaar met een vaste trap. Op zolder is de 4e slaapkamer en een aparte ruimte voor de cv installatie, wasmachine en mechanische ventilatiebox.
Bijzonderheden:
De woning is in 2020 geheel voorzien van kunststof kozijnen met dubbel glas en draai kiep ramen, glad stucwerk en led inbouwverlichting. De voortuin is geheel onderhoudsvrij betegeld. Verder zijn de badkamer en toilet beneden geheel vernieuwd in 2020, de keuken heeft een nieuw aanrechtblad en nieuwe inbouwapparatuur. De achterdeur en raamkozijn in de achtergevel zijn verwijderd en vervangen voor een kunststof schuifpui met dubbel glas en horren.
Interesse in deze woning? Neem contact op voor een bezichtiging.
Kenmerken
Overdracht
- Laatste vraagprijs
- € 350.000 kosten koper
- Vraagprijs per m²
- € 3.333
- Status
- Verkocht
Bouw
- Soort woonhuis
- Eengezinswoning, tussenwoning
- Soort bouw
- Bestaande bouw
- Bouwjaar
- 1983
- Soort dak
- Zadeldak bedekt met pannen
Oppervlakten en inhoud
- Gebruiksoppervlakten
- Wonen
- 105 m²
- Externe bergruimte
- 6 m²
- Perceel
- 148 m²
- Inhoud
- 310 m³
Indeling
- Aantal kamers
- 5 kamers (4 slaapkamers)
- Aantal badkamers
- 1 badkamer en 1 apart toilet
- Aantal woonlagen
- 2 woonlagen en een zolder
- Voorzieningen
- Dakraam, glasvezelkabel, mechanische ventilatie, en natuurlijke ventilatie
Energie
- Energielabel
- B
- Isolatie
- Dakisolatie, dubbel glas, muurisolatie en vloerisolatie
- Verwarming
- Cv-ketel
- Warm water
- Cv-ketel
- Cv-ketel
- Hr (gas gestookt combiketel uit 2015)
Kadastrale gegevens
- NEERBOSCH E 3691
- Kadastrale kaart
- Oppervlakte
- 148 m²
- Eigendomssituatie
- Volle eigendom
Buitenruimte
- Ligging
- Aan rustige weg
- Tuin
- Achtertuin en voortuin
- Voortuin
- 22 m² (4,20 meter diep en 5,25 meter breed)
- Ligging tuin
- Gelegen op het zuidwesten bereikbaar via achterom
Bergruimte
- Schuur/berging
- Aangebouwde stenen berging
- Voorzieningen
- Elektra
Parkeergelegenheid
- Soort parkeergelegenheid
- Openbaar parkeren
Foto's 20
© 2001-2025 funda



















