
Omschrijving
Woningzoekers opgelet! Ruime tussenwoning met een zonnige tuin op het westen, gelegen in een fijne woonomgeving met een vrij uitzicht op groen en een grote waterpartij. De woning is volledig voorzien van hoogwaardige kunststof kozijnen met HR++ beglazing en is daarmee zeer comfortabel. Laat u verrassen door deze woning met zijn bijzonder ruime woonkamer met speelse woonkeuken, de 4 ruime slaapkamers, verzorgd sanitair en zonnige tuin met vrije achterom. Kom snel kijken!
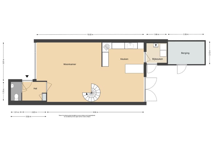
Indeling:
Begane grond
Entree in hal met meterkast, toilet en doorgang naar de woonkamer. Een bijzonder ruime en lichte woonkamer met de zithoek aan de straatzijde en de speels ingedeelde woonkeuken aan de tuinzijde. U zult werkelijk versteld staan van de ontzettend ruime opzet van deze woonkamer. Aan de tuinzijde treft u openslaande deuren naar de tuin.
De keuken is ruim van opzet en uitgevoerd in een lichte kleurstelling met veel werkruimte. Verder beschikt de keuken over de gewenste inbouwapparatuur. De grote bar maakt het plaatje compleet. Via de keuken treft u de praktische bijkeuken met daar de wasmachine- en drogeropstelling, de CV ketel en ook vanuit hier heeft u toegang tot de tuin.
1e verdieping
Overloop geeft toegang tot maar liefst 4 mooie slaapkamers, allen ruim van opzet en de nette badkamer met douche/ligbad, 2e toilet en wastafelmeubel. Een stukje extra comfort vindt u terug in de geïntegreerde rolluiken aan zowel de voor- als de achterzijde. Verder treft u op de overloop een bergkast.
Tuin
De zonnige tuin is onderhoudsarm ingericht met sierbestrating en kunststof vlonderdelen. Een tuin met veel zon en privacy! Verder treft u een ruime stenenberging voor bijvoorbeeld het stallen van de fietsen en achter in de tuin de vrije achterom.
Voortuin
Graag schenken wij ook aandacht aan de voortuin. Hier heeft u een prachtig uitzicht op groen en de achterliggende waterpartij. Vandaar ook het gezellige zitje in de voortuin.
Locatie
De woning is gelegen in een kindvriendelijke wijk met alle dagelijkse voorzieningen als de supermarkt, de bakker en winkels op loopafstand. Parkeergelegenheid is eveneens goed aanwezig, daarnaast zijn trein- en busstations en de uitvalswegen richting Vlissingen en Middelburg kort bij.
Nieuwsgierig geworden naar deze leuke tussenwoning? Neem dan contact op met Schinkel de Weerd Makelaardij voor een bezichtigingsafspraak.
Bijzonderheden:
- Standaard dient koper een bankgarantie c.q. waarborgsom van 10% van de koopprijs te stellen c.q. te storten via de notaris. Dit zal opgenomen worden in de koopovereenkomst;
- In de koopovereenkomst zal tevens een artikel worden opgenomen dat verband houdt met de ouderdom;
- Bij woningen en appartementen met bouwjaar tot 1993 zal er in de koopovereenkomst een asbestclausule worden opgenomen.
Deze informatie is door ons met de nodige zorgvuldigheid samengesteld. Onzerzijds wordt echter geen enkele aansprakelijkheid aanvaard voor enige onvolledigheid, onjuistheid of anderszins, dan wel de gevolgen daarvan. Alle opgegeven maten en oppervlakten zijn indicatief.
Kenmerken
Overdracht
- Laatste vraagprijs
- € 269.000 kosten koper
- Vraagprijs per m²
- € 2.280
- Status
- Verkocht
Bouw
- Soort woonhuis
- Eengezinswoning, tussenwoning
- Soort bouw
- Bestaande bouw
- Bouwjaar
- 1971
- Specifiek
- Gestoffeerd
- Soort dak
- Plat dak
Oppervlakten en inhoud
- Gebruiksoppervlakten
- Wonen
- 118 m²
- Overige inpandige ruimte
- 6 m²
- Perceel
- 135 m²
- Inhoud
- 420 m³
Indeling
- Aantal kamers
- 5 kamers (4 slaapkamers)
- Aantal badkamers
- 1 badkamer en 1 apart toilet
- Badkamervoorzieningen
- Douche, ligbad, toilet, en wastafelmeubel
- Aantal woonlagen
- 2 woonlagen
- Voorzieningen
- Mechanische ventilatie, natuurlijke ventilatie, en rolluiken
Energie
- Energielabel
- C
- Isolatie
- Dubbel glas
- Verwarming
- Cv-ketel
- Warm water
- Cv-ketel
- Cv-ketel
- Nefit (gas gestookt uit 2024, eigendom)
Kadastrale gegevens
- VLISSINGEN I 2107
- Kadastrale kaart
- Oppervlakte
- 135 m²
- Eigendomssituatie
- Volle eigendom
Buitenruimte
- Ligging
- In woonwijk
- Tuin
- Achtertuin en voortuin
- Achtertuin
- 44 m² (8,00 meter diep en 5,50 meter breed)
- Ligging tuin
- Gelegen op het noordwesten bereikbaar via achterom
Bergruimte
- Schuur/berging
- Aangebouwde stenen berging
Parkeergelegenheid
- Soort parkeergelegenheid
- Openbaar parkeren
Foto's 23
© 2001-2025 funda






















