
Omschrijving
Sfeervol 3-kamerappartement met twee balkons, in hartje Oosterbeek!
Op een buitengewoon centrale en mooie locatie bieden wij dit aantrekkelijke 3-kamerappartement aan, gelegen op de eerste woonlaag van een kleinschalig appartementencomplex (1979) met lift. Vanuit het appartement geniet u zowel van een sfeervol en gezellig zicht op de levendige dorpskern van Oosterbeek als van de rust en het vrije zicht aan de achterzijde.
Indeling:
Begane grond: centrale entree
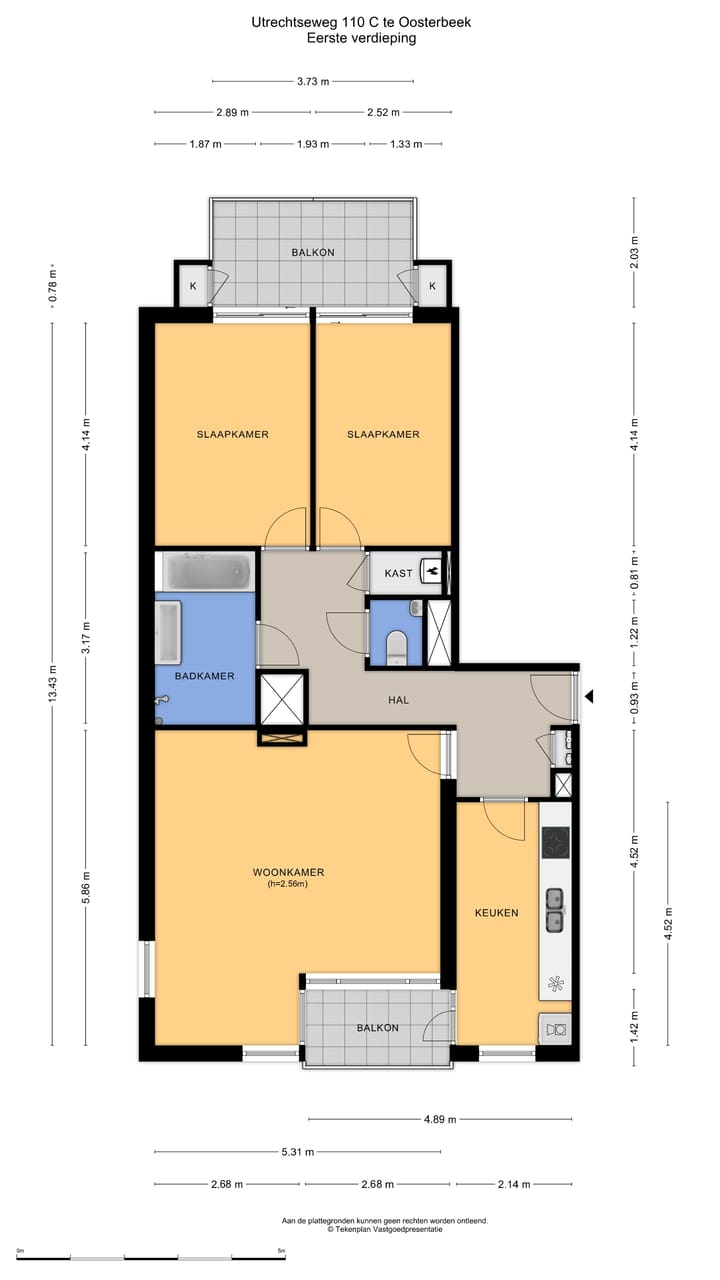
Appartement: via de ruime entree loopt u de hal binnen. Aan de hal liggen de keuken met toegang tot het eerste balkon, de lichte en ruime woonkamer met open haard, en het separate toilet.
Verder vindt u aan de achterzijde van het appartement twee royale slaapkamers, beide met toegang tot het zonnige, tweede balkon. De nette badkamer is voorzien van een ligbad, douche en wastafel.
In de onderbouw bevindt zich een praktische berging.
Bijzonderheden:
- ideale ligging in het centrum, nabij winkels en openbaar vervoer
- kleinschalig complex met lift
- actieve VvE, bijdrage: € 214,- per maand
Aanvaarding: in overleg
Kenmerken
Overdracht
- Laatste vraagprijs
- € 375.000 kosten koper
- Vraagprijs per m²
- € 4.464
- Status
- Verkocht
- Bijdrage VvE
- € 214,00 per maand
Bouw
- Soort appartement
- Portiekflat (appartement)
- Soort bouw
- Bestaande bouw
- Bouwjaar
- 1979
- Specifiek
- Gedeeltelijk gestoffeerd
- Soort dak
- Samengesteld dak bedekt met bitumineuze dakbedekking en pannen
Oppervlakten en inhoud
- Gebruiksoppervlakten
- Wonen
- 84 m²
- Overige inpandige ruimte
- 1 m²
- Gebouwgebonden buitenruimte
- 11 m²
- Externe bergruimte
- 5 m²
- Inhoud
- 280 m³
Indeling
- Aantal kamers
- 3 kamers (2 slaapkamers)
- Aantal badkamers
- 1 badkamer en 1 apart toilet
- Badkamervoorzieningen
- Douche, ligbad, en wastafel
- Aantal woonlagen
- 1 woonlaag
- Voorzieningen
- Lift, mechanische ventilatie, rookkanaal, schuifpui, en TV kabel
- Gelegen op
- 1e woonlaag
Energie
- Energielabel
- D
- Isolatie
- Dubbel glas
- Verwarming
- Cv-ketel en open haard
- Warm water
- Cv-ketel
- Cv-ketel
- Gas gestookt combiketel uit 2018, eigendom
Kadastrale gegevens
- OOSTERBEEK D 8290
- Kadastrale kaart
- Eigendomssituatie
- Volle eigendom
Buitenruimte
- Ligging
- In centrum en vrij uitzicht
- Balkon/dakterras
- Balkon aanwezig
Bergruimte
- Schuur/berging
- Inpandig
Parkeergelegenheid
- Soort parkeergelegenheid
- Openbaar parkeren
VvE checklist
- Inschrijving KvK
- Ja
- Jaarlijkse vergadering
- Ja
- Periodieke bijdrage
- Ja (€ 214,00 per maand)
- Reservefonds aanwezig
- Ja
- Onderhoudsplan
- Ja
- Opstalverzekering
- Ja
Foto's 42
© 2001-2025 funda









































