
Omschrijving
Aan de rand van Oosterbeek staat dit karakteristieke halfvrijstaand woonhuis met prachtig vrij uitzicht, ruime voortuin en een diepe zonnige achtertuin op het zuiden. Hier bevinden zich twee terrassen waarvan één met een heerlijke terrasoverkapping.
Deze sfeervolle jaren dertig woning heeft veel authentieke details en is goed onderhouden. Naast het huis ligt een diepe oprit met een vrijstaande garage.
De woning ligt op een gewilde locatie. De Bilderbergbossen beginnen letterlijk aan het einde van de straat, waar ook diverse sportaccommodaties te vinden zijn. De dorpskern en basisscholen liggen, evenals het centrum van Arnhem en diverse middelbare scholen, op loop- en fietsafstand. Het NS- station ligt op loopafstand en de A50 en A12 zijn in slechts enkele autominuten bereikbaar.
Begane grond;
Entree, fraaie hal met toilet, trapopgang en toegang tot een fijne werk-/studeerkamer en de woonkamer. De royale en lichte woon-/eetkamer heeft een erker aan de voorzijde, een inbouwhoutkachel en openslaande deuren naar het zonnige terras in de achtertuin (20 meter diep).
Open keuken met veel daglicht, werkbladen, inbouwapparatuur en praktische kastruimte. Vanuit de keuken is een ruime (wijn)kelder bereikbaar, evenals een handige bijkeuken (verwarmd) met tuindeur, bergruimte, meterkast en opstelling voor oven en wasapparatuur.
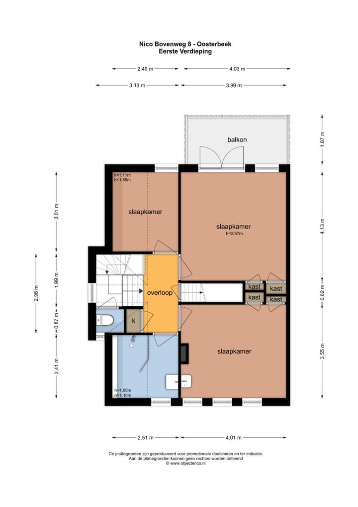
Eerste verdieping;
Fraai open en licht trappenhuis met vaste kast op de overloop met op het tussenbordes een separaat toilet. Op de eerste verdieping bevinden zich drie slaapkamers waarvan één aan de voorzijde met inbouwkasten en wastafel. Aan de achterzijde zijn twee slaapkamers gesitueerd, waarvan één met twee inbouwkasten en openslaande deuren naar ruim balkon met uitzicht over de achtertuin. De badkamer is voorzien van wastafelmeubel en een ruime inloopdouche.
Tweede verdieping;
Middels vaste trap te bereiken overloop met dakraam, vaste kast en opstelling van de c.v.-ketel.
Daarnaast twee slaapkamers waarvan één met extra dakraam.
Algemeen;
- Energielabel C;
- 11 zonnepanelen;
- Nieuwe c.v.-ketel 2024;
- Sfeervolle terrasoverkapping voorzien van elektra.
- Extra overkapping voor houtopslag.
Wieman Makelaardij besteedt de uiterste zorg aan de betrouwbaarheid en actualiteit van de gegevens in de door ons samengestelde verkoopdocumentatie. Onjuistheden en onvolledigheden kunnen echter voorkomen. Aan de door ons gepresenteerde gegevens waaronder de teksten en plattegronden kunnen geen rechten worden ontleend. Twijfelt u aan de juistheid van de gegevens, vraag dan hoe deze zijn verkregen of kom nog een keer kijken. Probeer te allen tijde alle voor u relevante informatie vooraf te verkrijgen. Neem bijvoorbeeld uw eigen NVM-aankoopmakelaar mee.
Kenmerken
Overdracht
- Laatste vraagprijs
- € 920.000 kosten koper
- Vraagprijs per m²
- € 5.860
- Status
- Verkocht
Bouw
- Soort woonhuis
- Eengezinswoning, 2-onder-1-kapwoning
- Soort bouw
- Bestaande bouw
- Bouwjaar
- 1927
- Soort dak
- Samengesteld dak
Oppervlakten en inhoud
- Gebruiksoppervlakten
- Wonen
- 157 m²
- Overige inpandige ruimte
- 9 m²
- Gebouwgebonden buitenruimte
- 8 m²
- Externe bergruimte
- 18 m²
- Perceel
- 418 m²
- Inhoud
- 620 m³
Indeling
- Aantal kamers
- 7 kamers (5 slaapkamers)
- Aantal badkamers
- 1 badkamer en 2 aparte toiletten
- Badkamervoorzieningen
- Inloopdouche en wastafelmeubel
- Aantal woonlagen
- 3 woonlagen en een kelder
- Voorzieningen
- Buitenzonwering, dakraam, mechanische ventilatie, natuurlijke ventilatie, rookkanaal, en zonnepanelen
Energie
- Energielabel
- C
- Isolatie
- Dakisolatie, dubbel glas, grotendeels dubbelglas, HR-glas, muurisolatie en vloerisolatie
- Verwarming
- Cv-ketel en houtkachel
- Warm water
- Cv-ketel en elektrische boiler
- Cv-ketel
- Vaillant Ecotec plus 25/32 CW4 (gas gestookt combiketel uit 2024, eigendom)
Kadastrale gegevens
- OOSTERBEEK C 2906
- Kadastrale kaart
- Oppervlakte
- 418 m²
- Eigendomssituatie
- Volle eigendom
Buitenruimte
- Ligging
- Aan bosrand, aan rustige weg, in bosrijke omgeving, in woonwijk en vrij uitzicht
- Tuin
- Achtertuin, voortuin en zijtuin
- Achtertuin
- 216 m² (18,00 meter diep en 12,00 meter breed)
- Ligging tuin
- Gelegen op het zuiden bereikbaar via achterom
- Balkon/dakterras
- Balkon aanwezig
Garage
- Soort garage
- Vrijstaande stenen garage
- Capaciteit
- 1 auto
- Voorzieningen
- Elektra
Parkeergelegenheid
- Soort parkeergelegenheid
- Op eigen terrein en openbaar parkeren
Foto's 55
© 2001-2025 funda






















































