
Omschrijving
Vrijstaande woning in het mooie Oudega (sm)!
Onder de rook van een van de oudste kerken van Friesland vinden we deze goed onderhouden, vrijstaande woning. De woning heeft een woonoppervlak van maar liefst 132 vierkante meter en beschikt over 4 slaapkamers, waarvan een op de begane grond. In 2018 is de woning vrijwel volledig gemoderniseerd en tevens voorzien van een aanbouw. In dit jaar is ook de keuken vernieuwd welke beschikt over allerhande eigentijdse apparatuur. De badkamer en slaapkamer op de begane grond maken deze woning levensloopbestendig en klaar voor nog vele jaren woonplezier. De woning beschikt daarnaast ook nog eens over een externe garage.
Indeling:
Begane grond
Bij binnenkomst stap je de hal binnen, waar de trap naar de eerste verdieping zich bevindt. In de hal vind je tevens een separaat toilet. Vanuit de hal is er toegang tot een slaapkamer en een naastgelegen badkamer. Via de hal kom je uit in de woonkamer die in directe verbinding staat met de keuken. Aangrenzend aan de keuken bevindt zich de eetkamer. Via de keuken kom je in de bijkeuken die toegang biedt tot de kelder.
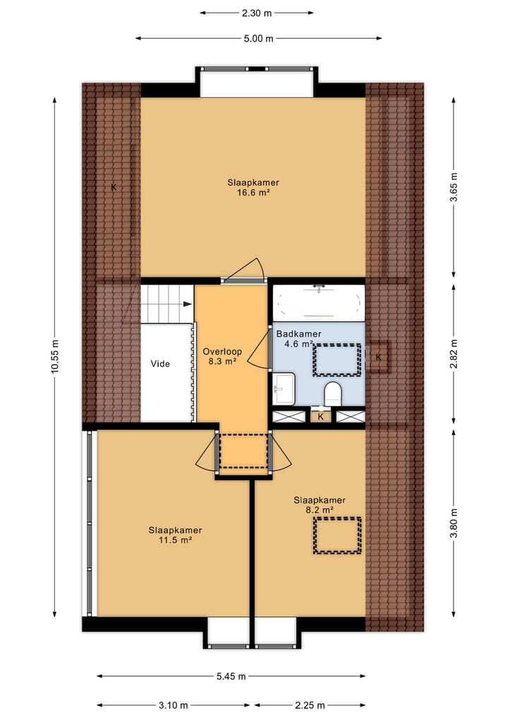
Eerste verdieping
De trap in de hal leidt naar de eerste verdieping, waar je op een ruime overloop met een vide terechtkomt. Vanaf de overloop zijn er drie slaapkamers te bereiken, evenals de tweede badkamer met ligbad.
Kenmerken
Overdracht
- Laatste vraagprijs
- € 420.000 kosten koper
- Vraagprijs per m²
- € 3.182
- Status
- Verkocht
Bouw
- Soort woonhuis
- Eengezinswoning, vrijstaande woning
- Soort bouw
- Bestaande bouw
- Bouwjaar
- 1980
- Soort dak
- Zadeldak bedekt met pannen
Oppervlakten en inhoud
- Gebruiksoppervlakten
- Wonen
- 132 m²
- Overige inpandige ruimte
- 10 m²
- Externe bergruimte
- 50 m²
- Perceel
- 442 m²
- Inhoud
- 532 m³
Indeling
- Aantal kamers
- 5 kamers (4 slaapkamers)
- Aantal badkamers
- 2 badkamers en 1 apart toilet
- Badkamervoorzieningen
- Douche, 2 toiletten, 2 wastafels, en ligbad
- Aantal woonlagen
- 2 woonlagen
- Voorzieningen
- Natuurlijke ventilatie, rookkanaal, en zonnepanelen
Energie
- Energielabel
- B
- Verwarming
- Cv-ketel
- Warm water
- Cv-ketel
- Cv-ketel
- ATAG (2020, eigendom)
Kadastrale gegevens
- OUDEGA B 3947
- Kadastrale kaart
- Oppervlakte
- 442 m²
- Eigendomssituatie
- Volle eigendom
Buitenruimte
- Ligging
- In centrum en in woonwijk
- Tuin
- Tuin rondom
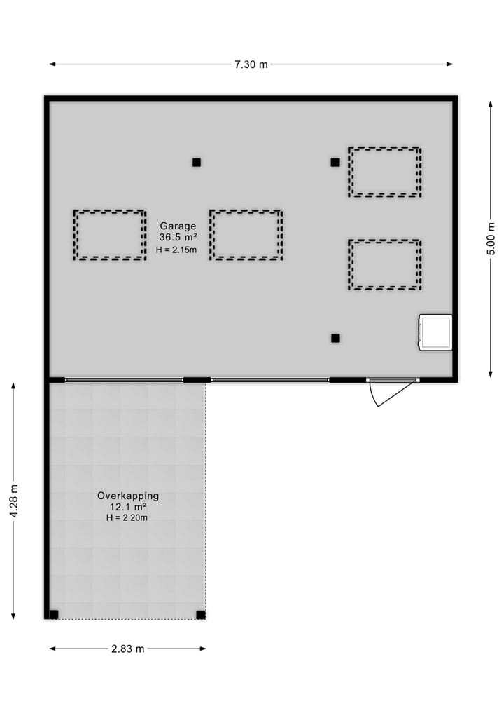
Garage
- Soort garage
- Vrijstaande stenen garage
- Capaciteit
- 1 auto
- Voorzieningen
- Elektra
Parkeergelegenheid
- Soort parkeergelegenheid
- Op eigen terrein
Foto's 80
© 2001-2025 funda















































































