
Omschrijving
Op een unieke plek midden in het natuurgebied de Ackerdijkse Plassen gelegen. Vrijstaande voormalige boerderij (Gerardushoeve) met schuur, stal, opstallen en een boomgaard.
Deze voormalige boerderij biedt de mogelijkheid van landelijk wonen, echter wel op zeer korte afstand van de steden (Rotterdam centrum 15 min, Den Haag 20 min.) en de vele voorzieningen. O.a. de scholen (basisscholen en middelbare scholen), openbaar vervoer, winkels en uitvalswegen zijn op korte afstand.
Van deze woning is een unieke woningwebsite beschikbaar. Download op funda de brochure voor de link naar de website waar je alle gegevens en meer informatie van deze woning kunt vinden.
LET OP!!
Deze woning wordt aangeboden door Natuurmonumenten en wordt uitgegeven in erfpacht met een afhankelijk recht van opstal. De vraagprijs betreft de totale waarde van het object inclusief het erfpachtsdeel. Op basis van de vraagprijs bestaat de opstal waarde € 587.450,-- (52%) en de grondwaarde € 537.550,-- (48%). Deze grondwaarde wordt omgerekend in een erfpachtscanon welke bij deze waarde € 14.110,-- per jaar bedraagt. Mocht de koopsom aangepast worden zullen ook de waardecomponenten naar rato aangepast worden. Voor meer informatie kunt u terecht op ons kantoor.
De indeling is als volgt:
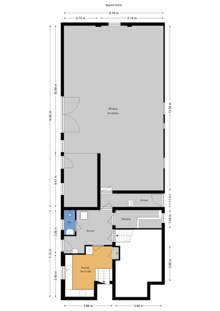
Begane grond:
entree, hal, badkamer voorzien van een wastafel en douche, toegang kelder en berging; gang met meterkast en toegang tot de ruime berging; eenvoudige keuken; overloop, trap naar de 1e verdieping, toilet met fonteintje; slaapkamer; woonkamer.
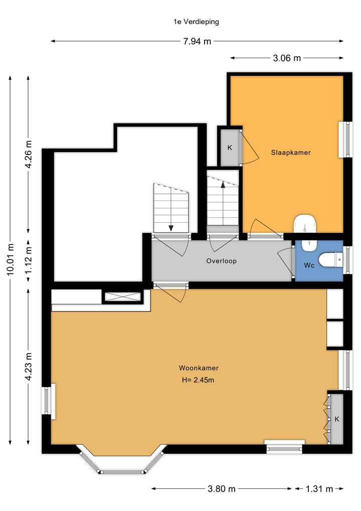
1e verdieping:
overloop, 3 slaapkamers.
Bijzonderheden/Kenmerken:
- De woning mag uitsluitend voor particuliere woondoeleinden worden gebruikt. Dus geen B&B, theetuin, bedrijf aan huis, etc is op deze locatie niet toegestaan;
- Erfpachtvoorwaarden van Natuurmonumenten zijn toepassing;
- Het gaat hierom een Cultuur Historische Waardevol pand (CHW, voorwaarden van het CHW op deze verkoop van toepassing;
- Kosten onderhoud toegangsweg is voor eigenaar Zwetkade 8 en Natuurmonumenten;
- Aan de voorzijde van de woning kan eventueel een stuk perceel +/- 250m2 gehuurd worden van Hoogheemraadschap van Delfland;
- Woning is aangesloten op een persriool, koper heeft dit te dulden en mag rondom het persriool geen grondroerende werkzaamheden verrichten;
- Keuze notaris in overleg;
- Zelfbewoningsverplichting;
- Niet-bewoners-, ouderdoms- en materialenclausule van toepassing;
- Geen lijst van zaken en NVM vragenlijst aanwezig;
- Woonoppervlakte 164 m2;
- Overige inpandige ruimte 148 m2;
- Externe bergruimte 198 m2;
- Perceel kadastraal gemeente Pijnacker sectie I nummer 794 are 27 centiare 55;
- Bouwjaar 1924;
- Energielabel G.
- De woning dient intern gemoderniseerd te worden.
Afmetingen/maten:
- woonkamer 4.23 x 7.94
- keuken 3.56 x 2.75
- tuin 9.28 x 5.88
- berging 13.56 x 8.19
- slaapkamer (begane grond) 4.26 x 3.06
- slaapkamer (1e verdieping) 2.80 x 6.04
- slaapkamer (1e verdieping) 2.83 x 3.09
- slaapkamer (1e verdieping) 2.83 x 2.85
Oplevering: in overleg
Interesse in dit huis? Schakel uw eigen NVM Aankoopmakelaar in.
Uw NVM Aankoopmakelaar komt op voor uw belang en bespaart u tijd, geld en zorgen.
Adressen van NVM Aankoopmakelaars vindt u op Funda.nl
Oplevering: in overleg
Kenmerken
Overdracht
- Laatste vraagprijs
- € 1.125.000 kosten koper
- Vraagprijs per m²
- € 6.902
- Status
- Verkocht
Bouw
- Soort woonhuis
- Woonboerderij, vrijstaande woning
- Soort bouw
- Bestaande bouw
- Bouwjaar
- 1924
- Soort dak
- Zadeldak bedekt met pannen
Oppervlakten en inhoud
- Gebruiksoppervlakten
- Wonen
- 163 m²
- Overige inpandige ruimte
- 164 m²
- Externe bergruimte
- 198 m²
- Perceel
- 2.755 m²
- Inhoud
- 1.276 m³
Indeling
- Aantal kamers
- 5 kamers (4 slaapkamers)
- Aantal badkamers
- 1 apart toilet
- Aantal woonlagen
- 2 woonlagen
Energie
- Energielabel
- G
- Isolatie
- Geen isolatie
- Verwarming
- Cv-ketel
- Warm water
- Cv-ketel
- Cv-ketel
- Gas gestookt combiketel uit 2016, eigendom
Kadastrale gegevens
- PIJNACKER I 794
- Kadastrale kaart
- Oppervlakte
- 2.755 m²
- Eigendomssituatie
- Eigendom belast met opstal
Buitenruimte
- Tuin
- Tuin rondom
Bergruimte
- Schuur/berging
- Vrijstaande stenen berging
Parkeergelegenheid
- Soort parkeergelegenheid
- Op eigen terrein
Foto's 80
© 2001-2025 funda















































































