
Omschrijving
Ben jij op zoek naar een leuke woning in het centrum van Poortvliet? Dan mogen we je verwelkomen in de Noordstraat 34! Deze sfeervolle tussenwoning heeft een charmante woonkamer met open keuken, 3 fijne slaapkamers (met de mogelijkheid voor een extra kamer) en een gave tuin met overkapping. Het huis heeft een gunstig energielabel C, waardoor er extra leenmogelijkheden zijn. Kom kijken en misschien is dit straks jouw nieuwe thuis!
Begane grond:
Hal/entree met de meterkast (7 groepen en 2 aardlekschakelaars) en toegang tot de woonkamer.
Woonkamer:
Charmante woonkamer met laminaatvloer, trapkast en toegang tot de hal en de open keuken aan de achterzijde. Het raam aan de achterzijde is uitgerust met een rolluik.
Open keuken:
Moderne keuken in lengteopstelling - met schiereiland - en voorzien van een 5-pits gaskookplaat, afzuigkap, combi magnetron/oven, koelkast, vaatwasser en een spoelbak. Ook is er een achterdeur naar de tuin.
Portaal:
Hier vind je de trapopgang en een betegeld toilet met mechanische ventilatie (deze dient nog aangesloten te worden).
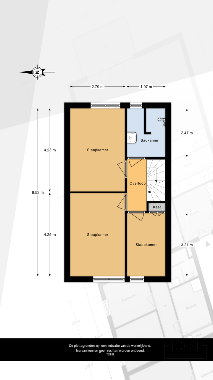
1e verdieping:
Overloop met toegang tot 3 slaapkamers, de badkamer en de 2e verdieping middels een vaste trap. De laminaatvloer is doorgelegd in alle slaapkamers.
3 slaapkamers:
De ouderslaapkamers is gelegen aan de achterzijde. Slaapkamer 2 en 3 bevinden zich aan de voorzijde. De ramen van alle slaapkamers zijn uitgerust met rolluiken.
Badkamer:
Compleet betegelde badkamer met ruime inloopdouche en een wastafel met meubel.
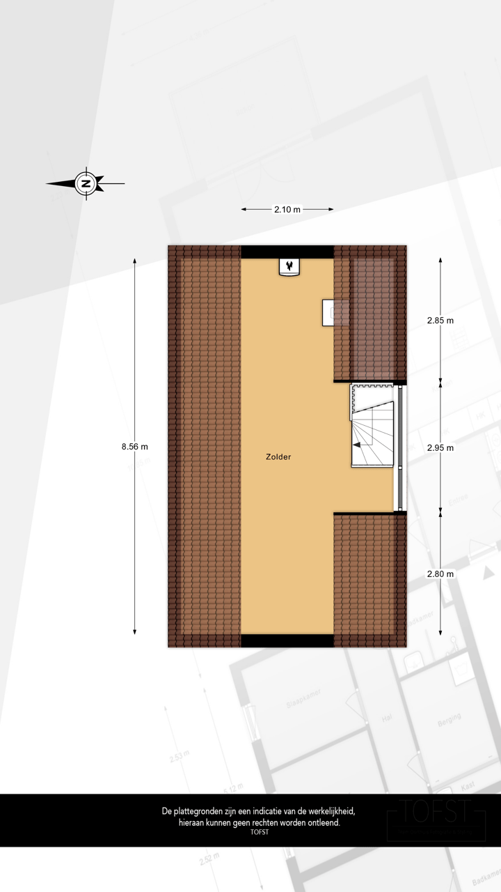
2e verdieping:
Open zolderruimte met dakkapel, aansluitingen voor wasmachine en droger, de CV-combiketel (Nefit, 2017) en de mechanische ventilatie unit. Door middel van een tussenwand zou hier een 4e slaapkamer gerealiseerd kunnen worden.
Tuinen:
De onderhoudsvriendelijke voortuin heeft sierbestrating en plantenborders. De achtertuin - gelegen op het oosten - is aangelegd met sierbestrating, plantenborder, achterom en een overkapping met berging en elektra.
Algemeen:
- Sfeervolle tussenwoning met 3 slaapkamers;
- Mogelijkheid voor een extra slaapkamer;
- Centraal gelegen nabij diverse uitvalswegen;
- Tuin op het oosten, met achterom;
- Houten berging met gezellige overkapping;
- Kozijnen buitenzijde schilderwerk 2024;
- Energielabel: C (vraag je adviseur naar de extra leenmogelijkheden!);
- Aanvaarding: in overleg (indicatie: begin 2025).
Mark Makelaardij behartigt de belangen van de verkopende partij.
Wil je de woning bezichtigen? Van harte welkom na een met Mark Makelaardij gemaakte afspraak.
Kenmerken
Overdracht
- Laatste vraagprijs
- € 270.000 kosten koper
- Vraagprijs per m²
- € 2.571
- Status
- Verkocht
Bouw
- Soort woonhuis
- Eengezinswoning, tussenwoning
- Soort bouw
- Bestaande bouw
- Bouwjaar
- 1977
- Soort dak
- Zadeldak bedekt met pannen
Oppervlakten en inhoud
- Gebruiksoppervlakten
- Wonen
- 105 m²
- Externe bergruimte
- 7 m²
- Perceel
- 133 m²
- Inhoud
- 337 m³
Indeling
- Aantal kamers
- 4 kamers (3 slaapkamers)
- Aantal badkamers
- 1 badkamer en 1 apart toilet
- Badkamervoorzieningen
- Douche, wastafel, en wastafelmeubel
- Aantal woonlagen
- 3 woonlagen
- Voorzieningen
- Mechanische ventilatie, natuurlijke ventilatie, rolluiken, en TV kabel
Energie
- Energielabel
- C
- Isolatie
- Dubbel glas
- Verwarming
- Cv-ketel
- Warm water
- Cv-ketel
- Cv-ketel
- Nefit (gas gestookt combiketel uit 2017, eigendom)
Kadastrale gegevens
- POORTVLIET N 1259
- Kadastrale kaart
- Oppervlakte
- 133 m²
- Eigendomssituatie
- Volle eigendom
Buitenruimte
- Ligging
- Aan rustige weg en in centrum
- Tuin
- Achtertuin en voortuin
- Achtertuin
- 61 m² (11,95 meter diep en 5,10 meter breed)
- Ligging tuin
- Gelegen op het oosten bereikbaar via achterom
Bergruimte
- Schuur/berging
- Vrijstaande stenen berging
- Isolatie
- Geen isolatie
Parkeergelegenheid
- Soort parkeergelegenheid
- Openbaar parkeren
Foto's 35
© 2001-2025 funda


































