
Omschrijving
Vrijstaand wonen met volop groen in de omgeving, de Braassem op loopafstand.
Deze vrijstaande en zeer goed onderhouden woning komt uit 2021 en ligt op een ruim perceel van 415 vierkante meter. De woning zelf heeft 161 vierkante meter woonoppervlak en is modern afgewerkt. Een keuken die van alle gemakken voorzien is, een ruime garage en op de verdiepingen de beschikking over vier slaapkamers en een werkkamer.
De ligging van deze woning is ideaal. Rondom de woning en in de tuin kunt u genieten van veel privacy en vrijheid. Er is veel groen in de omgeving en het strandje en haven aan de Braassem op loopafstand. In het dorp is een basisschool. Er zijn diverse uitvalswegen in de nabije omgeving, waardoor steden als Amsterdam, Utrecht en Den Haag gemakkelijk te bereiken zijn. Schiphol is in ongeveer 15 minuten bereikbaar met openbaar vervoer.
Indeling
Via de oprit met carport komt u bij de entree van de woning. De hal is ruim en licht, hier bevinden zich onder meer de meterkast (10 groepen en krachtstroom), de toiletruimte (Villeroy & Boch) en garderobe ruimte onder de trap. Net als de rest van de begane grond is de vloer afgewerkt met een PVC-vloer in combinatie met vloerverwarming.
De woonkamer bevind zich aan de voorzijde van de woning. Door de vele ramen is het mooi licht, het uitzicht is op de polder richting de Braassem. De grote open keuken ligt aan de achterzijde van de woning. Deze is van alle gemakken voorzien. Veel bergruimte, wijnkoelkast, koelkast, vriezer, oven, combi-oven (allen Siemens) en een Bora-kookplaat. Het grote kookeiland is daarnaast voorzien van extra elektriciteit. Vanuit de keuken is er via dubbele openslaande deuren toegang tot de achtertuin en is ook de garage binnendoor bereikbaar. De garage heeft aan de voorzijde een brede garagedeur en een loopdeur. Aan de achterzijde is er een deur direct naar de achtertuin. In de garage staat de Nibe warmtepomp (lease). Deze voorziet in verwarmen en koelen.
De achtertuin is aan de woning voorzien van een groot terras en verder in het grasveld nog een zithoek met mogelijkheid voor een zonnescherm. Er is altijd wel een plek om de zon op te zoeken of juist te vermijden. De tuin is afgezet met een hek.
Eerste verdieping
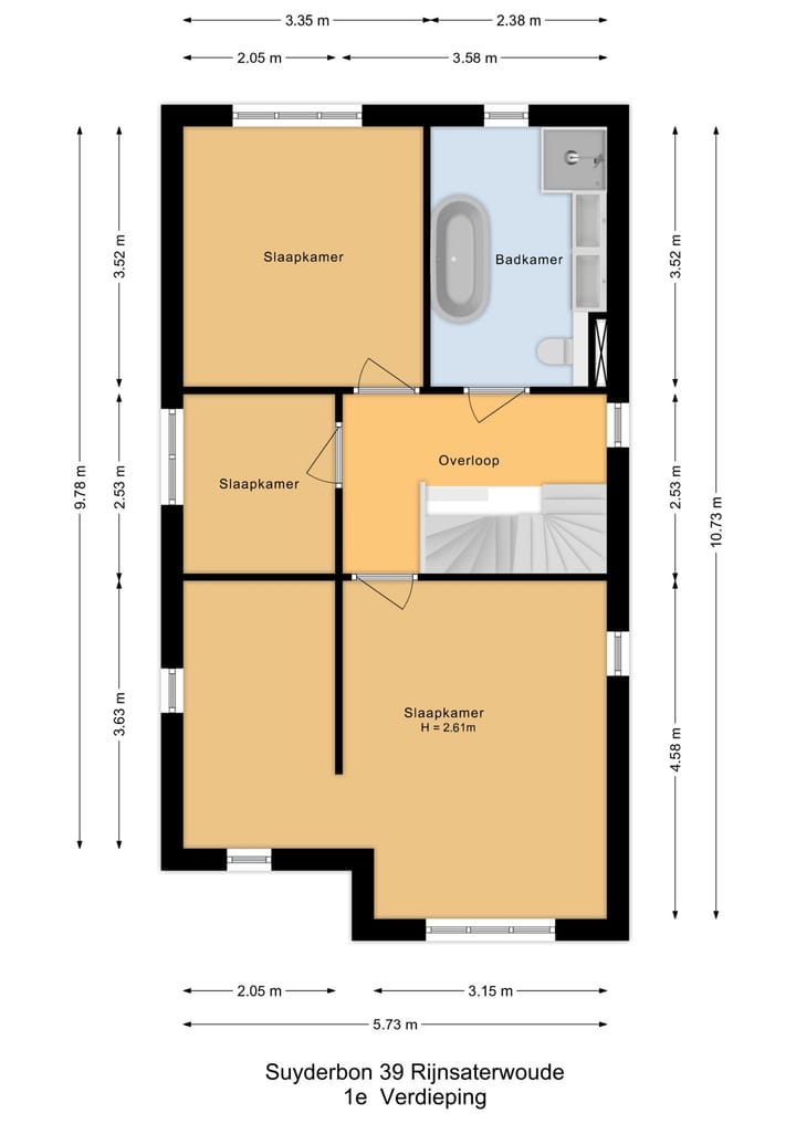
Net als beneden is ook de eerste verdieping voorzien vloerverwarming. Hier echter met vloerbedekking. Er is een ruime en lichte overloop die toegang geeft tot twee slaapkamers, de werkkamer en de badkamer. De grote slaapkamer aan de voorzijde van de woning beschikt over een grote inloopkast, draai-/kiepramen met horren en veel natuurlijk licht. De tweede slaapkamer ligt aan de achterzijde. Ook deze voorzien van een draai-/kiepraam. In de modern afgewerkte badkamer is een bad, inloopdouche, wandcloset (Villeroy & Boch) en dubbele wastafel. De werkkamer ligt tussen de slaapkamers en is ook bij de achterliggende slaapkamer te trekken als inloopkast of kinderkamer.
Tweede verdieping
De tweede verdieping is voorzien van linoleum. In het middendeel is de opstelplaats voor de wasmachine, droger, mechanische ventilatie en de omvormer voor de 8 zonnepanelen. De twee slaapkamers beschikken beiden over een Velux dakraam met uitzicht op het Braassemermeer.
Bijzonderheden
- Bouwjaar 2021.
- Woonoppervlak 161m² .
- Volledig geïsoleerd.
- Energielabel A.
- 8 Zonnepanelen.
- Warmtepomp in de lease € 184,00 per maand (inclusief onderhoud)
- 4 slaapkamers en een werkkamer.
- Garage.
- Overdekte parkeerplaats op eigen terrein.
- Ideale gezinswoning.
- Lagere school en kinderopvang op loopafstand (IKC),
- Centrale ligging in de Randstad.
- Schiphol met openbaar vervoer in ongeveer 15 minuten bereikbaar.
- Oplevering in overleg.
Kenmerken
Overdracht
- Laatste vraagprijs
- € 950.000 kosten koper
- Vraagprijs per m²
- € 5.864
- Status
- Verkocht
Bouw
- Soort woonhuis
- Eengezinswoning, vrijstaande woning
- Soort bouw
- Bestaande bouw
- Bouwjaar
- 2021
Oppervlakten en inhoud
- Gebruiksoppervlakten
- Wonen
- 162 m²
- Overige inpandige ruimte
- 16 m²
- Gebouwgebonden buitenruimte
- 9 m²
- Perceel
- 415 m²
- Inhoud
- 650 m³
Indeling
- Aantal kamers
- 6 kamers (5 slaapkamers)
- Aantal woonlagen
- 3 woonlagen
- Voorzieningen
- Mechanische ventilatie en zonnepanelen
Energie
- Energielabel
- A
- Isolatie
- Dakisolatie, dubbel glas, muurisolatie, vloerisolatie en volledig geïsoleerd
- Verwarming
- Gedeeltelijke vloerverwarming en warmtepomp
Kadastrale gegevens
- KAAG EN BRAASSEM A 2556
- Kadastrale kaart
- Oppervlakte
- 415 m²
- Eigendomssituatie
- Volle eigendom
Buitenruimte
- Ligging
- Aan rustige weg, in woonwijk en vrij uitzicht
Garage
- Soort garage
- Aangebouwde stenen garage
- Capaciteit
- 1 auto
- Voorzieningen
- Elektra
Parkeergelegenheid
- Soort parkeergelegenheid
- Op eigen terrein en openbaar parkeren
Foto's 46
© 2001-2025 funda













































