
Omschrijving
Starters opgelet! Ben jij op zoek naar een modern appartement dat je zonder enige moeite kunt betrekken in een rustige woonwijk? Dan is Dubbelebuurt 37 in Rijnsburg zeker een bezoekje waard! Het appartement is gelegen aan een rustig hofje dat onlangs is vernieuwd, in een rustige en kindvriendelijke woonwijk. Op minder dan vijf minuten wandelen bereik je een klein winkelcentrum met onder andere een bakker, slager en supermarkt. Én met een kwartier fietsen kun je heerlijk winkelen in de stad of uitwaaien op het strand van Katwijk. Bel jij ons voor het inplannen van een bezichtiging?
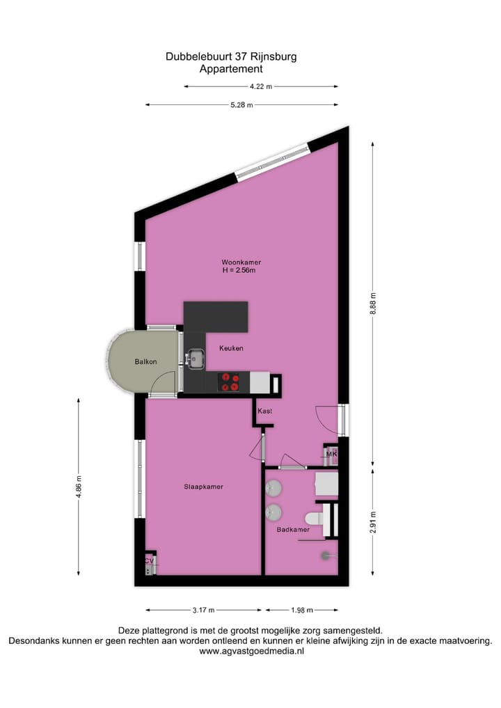
De indeling is als volgt:
Begane grond:
De gemeenschappelijke entree van het complex is voorzien van brievenbussen, bellentableau, intercominstallatie en trappenhuis. Tevens tref je hier de toegang tot de berging die voorzien is van elektra.
Tweede verdieping:
Bij binnenkomst sta je in de entree, die toegang geeft tot alle ruimtes. De woonkamer is ruim en licht door de grote raampartijen aan de voor- en achterzijde. In de woonkamer bevindt zich tevens de open keuken welke is voorzien van diverse inbouwapparatuur, waaronder: een koel-vriescombinatie, vaatwasser, afzuigkap en een keramische kookplaat.
Vanuit de entree zijn de slaapkamer te bereiken en de badkamer. Middels de slaapkamer bereik je het balkon. Het balkon is zonnig gelegen op het zuiden en biedt vrij uitzicht over de woonwijk. De luxe badkamer is voorzien van een inloopdouche, wastafelmeubel een toilet. Tevens tref je hier ook de wasmachineaansluiting. Het gehele appartement heeft een nette laminaatvloer.
Bijzonderheden:
- Modern afgewerkt
- Gelegen in een rustige en kindvriendelijke woonwijk
- Op loopafstand van het winkelcentrum
- Actieve VvE met een maandelijkse bijdrage van €140,- per maand
- Oplevering in overleg
- CV ketel recent vernieuwd
Ten aanzien van de juistheid van de vermelde informatie kan door ons kantoor geen aansprakelijkheid worden aanvaard, noch kan aan de vermelde informatie enig recht worden ontleend.
Gebruiksoppervlakte wonen: De Meetinstructie is gebaseerd op de NEN2580. De Meetinstructie is bedoeld om een meer eenduidige manier van meten toe te passen voor het geven van een indicatie van de gebruiksoppervlakte. De Meetinstructie sluit verschillen in meetuitkomsten niet volledig uit, door bijvoorbeeld interpretatieverschillen, afrondingen of beperkingen bij het uitvoeren van de meting.
Kenmerken
Overdracht
- Laatste vraagprijs
- € 325.000 kosten koper
- Vraagprijs per m²
- € 5.909
- Status
- Verkocht
Bouw
- Soort appartement
- Portiekflat (appartement)
- Soort bouw
- Bestaande bouw
- Bouwjaar
- 1988
- Soort dak
- Plat dak bedekt met bitumineuze dakbedekking
Oppervlakten en inhoud
- Gebruiksoppervlakten
- Wonen
- 55 m²
- Gebouwgebonden buitenruimte
- 3 m²
- Externe bergruimte
- 5 m²
- Inhoud
- 187 m³
Indeling
- Aantal kamers
- 2 kamers (1 slaapkamer)
- Aantal badkamers
- 1 badkamer
- Badkamervoorzieningen
- Inloopdouche, toilet, en wastafelmeubel
- Aantal woonlagen
- 1 woonlaag
- Voorzieningen
- Lift en TV kabel
- Gelegen op
- 2e woonlaag
Energie
- Energielabel
- A
- Isolatie
- Dakisolatie, dubbel glas en muurisolatie
- Verwarming
- Cv-ketel
- Warm water
- Cv-ketel
- Cv-ketel
- Gas gestookt combiketel
Kadastrale gegevens
- RIJNSBURG B 5526
- Kadastrale kaart
- Eigendomssituatie
- Volle eigendom
Buitenruimte
- Ligging
- In centrum en in woonwijk
- Balkon/dakterras
- Balkon aanwezig
Bergruimte
- Schuur/berging
- Box
Parkeergelegenheid
- Soort parkeergelegenheid
- Openbaar parkeren
VvE checklist
- Inschrijving KvK
- Ja
- Jaarlijkse vergadering
- Nee
- Periodieke bijdrage
- Ja
- Reservefonds aanwezig
- Nee
- Onderhoudsplan
- Ja
- Opstalverzekering
- Ja
Foto's 22
© 2001-2025 funda





















