
Omschrijving
Welkom bij Oranjestraat 42, een prachtige vrijstaande woning in het charmante Rijsbergen, waar ruimte en licht elkaar perfect aanvullen! Deze woning is ideaal voor wie op zoek is naar een comfortabel thuis met fijne voorzieningen en volop leefruimte.
Bij binnenkomst valt direct de royale, uitgebouwde tuingerichte kamer op, een heerlijke, lichte ruimte met grote ramen die zorgen voor een zonnig en uitnodigend karakter. Vanuit de tuinkamer heb je toegang middels een grote schuifpui naar de tuin, die op het zuiden ligt – perfect voor liefhebbers van zon en buitenleven! De open keuken sluit hier mooi op aan. Daarnaast vind je op de begane grond een praktische bijkeuken en een inpandige garage, ideaal voor extra bergruimte of het stallen van je auto.
Op de eerste verdieping bevinden zich drie slaapkamers, een moderne badkamer en een dakterras. De zolderverdieping biedt nog meer mogelijkheden: gebruik deze als vierde slaapkamer of als handige bergruimte.
Oranjestraat 42 combineert de voordelen van een rustig dorpse omgeving met een woning die ruimte, comfort en licht uitstraalt. Ben je klaar om deze unieke woning met eigen ogen te bewonderen?
Wil jij een Virtual Reality beleving ervaren en wil je de zon- en schaduwstand zien van deze woning? Ga dan snel naar de website van Van der Sande Makelaars voor nog meer gave belevingen bij deze woning!
INDELING
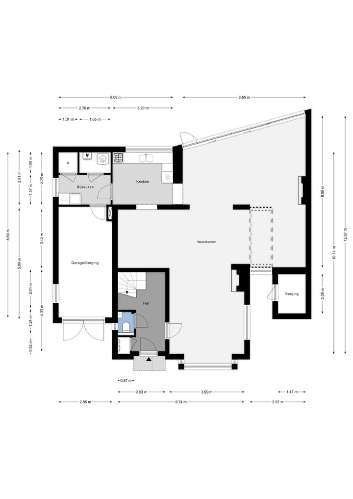
BEGANE GROND
Entree / hal, met (open) trapopgang, de meterkast (7 groepen, 2 aardlekschakelaars, digitale dag- & nachtstroom tariefmeter en digitale gasmeter), het toilet en toegang tot de woonkamer.
Toilet, betegeld, met zwevend closet, fonteintje en ventilatie.
Woonkamer, met frans eiken vloer, spachtelputz wandafwerking, gaskachel en toegang naar de open keuken, en tuinkamer.
Tuinkamer, met vloerbedekking, spachtelputz wandafwerking, lichtstraat, toegang naar de keuken dubbele schuifpui en loopdeur naar de achtertuin.
Open keuken (1998), in L-opstelling, met hardstenen werkblad, koelkast, 4-pits gasfornuis, afzuigkap, 1,5 RVS spoelbak, combi oven/magnetron, vaatwasser en toegang naar de bijkeuken.
Bijkeuken, met aansluiting voor wasapparatuur en toegang naar een kleine kelder, ruimte met de CV-ketel en toegang tot de garage.
Kast met de heteluchtverwarming (2005) en CV-ketel (2015) voor wam water.
Garage, met watervoorziening, elektra, bergvliering en dubbele deur naar de oprit.
EERSTE VERDIEPING
Overloop, met (open) trapopgang, toegang tot slaapkamers I, II, III en de badkamer.
Slaapkamer I, gelegen aan de achterzijde, met tapijtvloer, stucwerk wandafwerking, vaste kasten wand en toegang naar de badkamer.
Slaapkamer II, gelegen aan de voorzijde, met laminaatvloer, stucwerk wandafwerking, kastenwand waarin de trap naar de zolderverdieping bevindt..
Slaapkamer III, gelegen aan de voorzijde, met tapijtvloer, stucwerk wandafwerking, wastafel meubel en toegang naar het balkon.
Badkamer (2014), gelegen aan de achterzijde, betegeld, met vloerverwarming, zwevend closet, ligbad, inloopdouche, dubbele wastafel in meubel en toegang naar het dakterras.
Dakterras aan de achterzijde, gelegen op het zuid-oosten met toegang tot een berging.
ZOLDER VERDIEPING
Zolderruimte, met vloerbedekking en veel bergruimte achter de schouder- en knieschotten.
TUIN
Voortuin, met een heerlijk zitje, diverse beplantingen, oprit en de berging.
Achtertuin, gelegen op het zuiden, met diverse terrassen, zonnescherm, borders met beplanting, en achterom.
BERGING
Stenen berging voorzien van elektra
BIJZONDERHEDEN
- De woning is grotendeels voorzien van houten kozijnen met dubbele beglazing (zolderraam en garage zijn voorzien van enkele beglazimg);
- De begane grond is grotendeels voorzien van houten- en tapijt vloeren, spachtelputz wand- en stucwerk plafondafwerking;
- De eerste verdieping is grotendeels voorzien van tapijt vloeren, stucwerk wand- en schroten plafondafwerking;
- De tweede verdieping is grotendeels voorzien van tapijt vloeren, stucwerk wand- en plafondafwerking;
- Buitenschilderwerk is in 2022 gedaan;
- Deze woning heeft energielabel C
Aan bovengenoemde opgaven kunnen geen rechten worden ontleend, aangezien de vermelde kosten variabel zijn en/of periodiek gewijzigd kunnen worden.
Kenmerken
Overdracht
- Laatste vraagprijs
- € 625.000 kosten koper
- Vraagprijs per m²
- € 3.858
- Status
- Verkocht
Bouw
- Soort woonhuis
- Eengezinswoning, vrijstaande woning
- Soort bouw
- Bestaande bouw
- Bouwjaar
- 1978
- Soort dak
- Samengesteld dak bedekt met bitumineuze dakbedekking
Oppervlakten en inhoud
- Gebruiksoppervlakten
- Wonen
- 162 m²
- Overige inpandige ruimte
- 43 m²
- Gebouwgebonden buitenruimte
- 11 m²
- Perceel
- 418 m²
- Inhoud
- 748 m³
Indeling
- Aantal kamers
- 6 kamers (3 slaapkamers)
- Aantal badkamers
- 1 badkamer en 1 apart toilet
- Badkamervoorzieningen
- Douche, dubbele wastafel, ligbad, en toilet
- Aantal woonlagen
- 2 woonlagen en een zolder
- Voorzieningen
- Alarminstallatie, buitenzonwering, glasvezelkabel, natuurlijke ventilatie, rookkanaal, schuifpui, en TV kabel
Energie
- Energielabel
- C
- Isolatie
- Dakisolatie, dubbel glas en muurisolatie
- Verwarming
- Heteluchtverwarming
- Warm water
- Cv-ketel
Kadastrale gegevens
- RIJSBERGEN B 2895
- Kadastrale kaart
- Oppervlakte
- 418 m²
- Eigendomssituatie
- Volle eigendom
Buitenruimte
- Ligging
- In woonwijk
- Tuin
- Achtertuin, voortuin en zijtuin
- Achtertuin
- 142 m² (8,50 meter diep en 16,71 meter breed)
- Ligging tuin
- Gelegen op het zuidoosten bereikbaar via achterom
- Balkon/dakterras
- Dakterras aanwezig en balkon aanwezig
Bergruimte
- Schuur/berging
- Aangebouwde stenen berging
- Voorzieningen
- Elektra
Garage
- Soort garage
- Aangebouwde stenen garage en inpandig
- Capaciteit
- 1 auto
- Voorzieningen
- Elektra en stromend water
- Isolatie
- Geen isolatie
Parkeergelegenheid
- Soort parkeergelegenheid
- Op eigen terrein en openbaar parkeren
Foto's 71
© 2001-2025 funda






































































