
Omschrijving
Welkom in Leeuwen! In dit voormalige kerkdorp aan de noordzijde van Roermond treft u deze fijne 2-onder-1-kapwoning. Deze gezinswoning is netjes onderhouden en onder andere voorzien van een lichte woonkamer, moderne luxe keuken, 4 fijne slaapkamers, praktische badkamer, zonnige tuin en ruime garage. De woning is recent op diverse punten gemoderniseerd!
De globale indeling is als volgt:
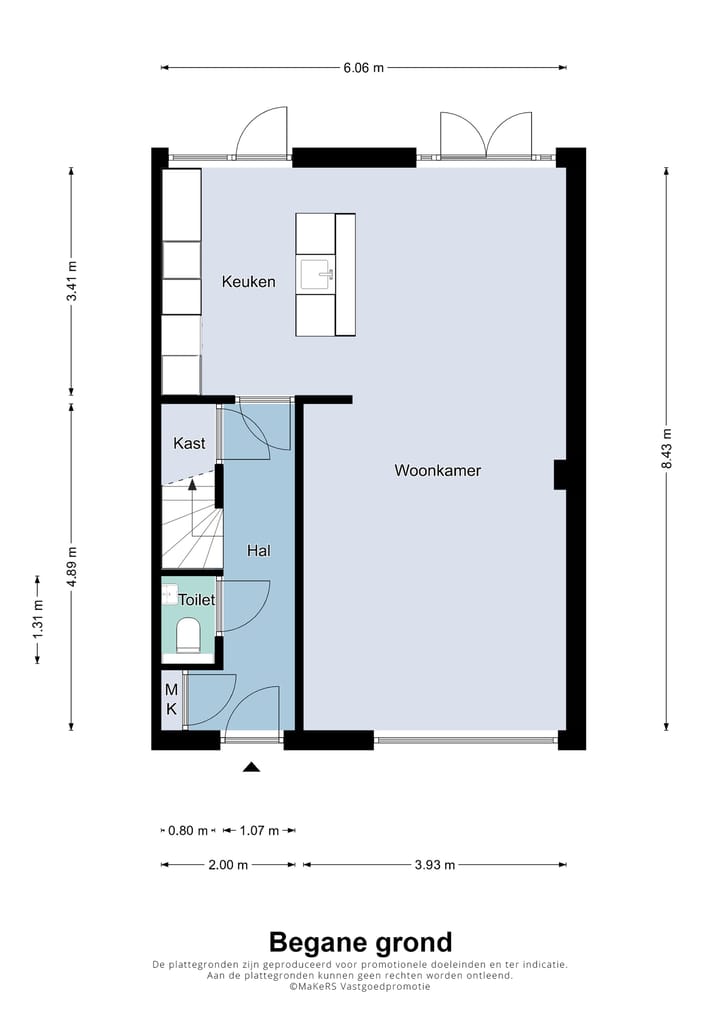
BEGANE GROND
Entree/hal met toilet en fonteintje, meterkast, trap met trapkast en toegang naar de leefruimte.
Hier tref je als eerste de moderne en luxe keuken. De keuken is strak afgewerkt en voorzien van diverse inbouwapparatuur. Het barretje is de perfecte plek voor een kop koffie met ontbijtje in de ochtend of een borrel tijdens het koken.
Tegenover de keuken is er voldoende ruimte voor een royale eethoek. Door grote raampartijen komt er een zee van licht de ruimte binnen en vanuit de keuken heb je toegang tot de tuin. Aan de voorkant van de woning is de zithoek gesitueerd. De begane grond is tevens voorzien tegelvloer met vloerverwarming en airconditioning.
EERSTE VERDIEPING
Op de eerste verdieping tref je een fijne ruime overloop met toegang naar de 3 slaapkamers en de badkamer.
Twee van de slaapkamers zijn ruim en doen dienst als tweepersoonskamers. De 3e slaapkamer is een prima kinderkamer. Een van de kamers heeft toegang middels een schuifdeur naar de walk-in closet.
De nette, maar ietwat gedateerde badkamer is voorzien van een douche, wastafel, toilet en designradiator.
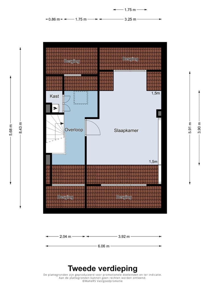
TWEEDE VERDIEPING
Middels een vaste trap bereik je de tweede verdieping. Hier bevindt zich een zeer ruime 4e slaapkamer en de overloop . De slaapkamer is voorzien van een dakkapel en airconditioning. Onder de knieschotten bevindt zich tevens ook nog eens extra bergruimte.
TUIN
De compacte en volledig omsloten tuin is onderhoudsvriendelijk en beschikt over een fijn terras, kleine grasmat, een border, speelplek voor de kinderen en een overkapping met plek voor een fijne loungebank. De tuin beschikt over een achterom en een zeer ruime garage welke voor veel doeleinden gebruikt kan worden. De lange oprit biedt plek voor meerdere auto's.
OMGEVING
Leeuwen wordt omringd door natuur en de Maasplassen aan de noordzijde en staat -deels- via het industrieterrein Willem Alexander in verbinding met de binnenstad van Roermond. Recent heeft het kerkdorp Leeuwen ook een directe op- en afrit gekregen op de autoweg N280 die Roermond onder meer verbindt met Weert. Maar de meest interessante verbindingen met snelwegen liggen ook binnen minder dan 5 autominuten afstand. Waardoor je direct de A73 (Maasbracht - Nijmegen) en BAB51 (Mönchengladbach - Düsseldorf) op kunt rijden.
Kenmerken
Overdracht
- Laatste vraagprijs
- € 355.000 kosten koper
- Vraagprijs per m²
- € 2.795
- Status
- Verkocht
Bouw
- Soort woonhuis
- Eengezinswoning, 2-onder-1-kapwoning
- Soort bouw
- Bestaande bouw
- Bouwjaar
- 1970
- Soort dak
- Zadeldak bedekt met pannen
Oppervlakten en inhoud
- Gebruiksoppervlakten
- Wonen
- 127 m²
- Externe bergruimte
- 19 m²
- Perceel
- 284 m²
- Inhoud
- 444 m³
Indeling
- Aantal kamers
- 7 kamers (5 slaapkamers)
- Aantal badkamers
- 1 badkamer en 1 apart toilet
- Badkamervoorzieningen
- Douche, toilet, en wastafelmeubel
- Aantal woonlagen
- 3 woonlagen
- Voorzieningen
- Airconditioning, mechanische ventilatie, rolluiken, TV kabel, en zonnepanelen
Energie
- Energielabel
- B
- Isolatie
- Dakisolatie, HR-glas, muurisolatie en vloerisolatie
- Verwarming
- Cv-ketel en gedeeltelijke vloerverwarming
- Warm water
- Cv-ketel
- Cv-ketel
- Vaillant HR (gas gestookt combiketel uit 2014, eigendom)
Kadastrale gegevens
- ROERMOND G 1147
- Kadastrale kaart
- Oppervlakte
- 284 m²
- Eigendomssituatie
- Volle eigendom
Buitenruimte
- Ligging
- In woonwijk
- Tuin
- Achtertuin en voortuin
- Achtertuin
- 130 m² (13,00 meter diep en 10,00 meter breed)
- Ligging tuin
- Gelegen op het zuidwesten bereikbaar via achterom
Garage
- Soort garage
- Vrijstaande stenen garage
- Capaciteit
- 1 auto
- Voorzieningen
- Elektra
Parkeergelegenheid
- Soort parkeergelegenheid
- Op eigen terrein en openbaar parkeren
Foto's 33
© 2001-2025 funda
































