
Omschrijving
Op zeer gunstige locatie, vlakbij winkels, kinderboerderij en buitengebied gelegen, (geschakelde) vrijstaande semibungalow met garage, voortuin voorzien van oprit en fraaie, zonnige achtertuin op het zuidwesten.
Van deze woning is een unieke woningwebsite beschikbaar. Download de brochure (bij Funda) voor de link naar de website waar u alle gegevens van de woning kunt vinden of informeer bij ons kantoor.
SFEERVOLLE, VRIJSTAANDE WONING MET ZONNIGE TUIN OP HET ZUIDWESTEN!
Bouwjaar: circa 1982.
Perceelsoppervlakte: circa 235 m2.
Inhoud woonhuis: circa 450 m3.
Woonoppervlakte: circa 102 m2.
Overig inpandige ruimte (garage): circa 24 m2.
Energielabel: C.
WOONKAMER CIRCA 45 M2 INCLUSIEF OPEN KEUKEN!
DAKKAPEL OVER DE VOLLE BREEDTE OP DE 1E VERDIEPING!
Deze woning is voorzien van vloerisolatie, dakisolatie, spouwisolatie, dubbele beglazing en 5 zonnepanelen (2024). Verder zijn er elektrische rolluiken met afstandsbediening op de begane grond (behalve de voordeur) en gedeeltelijk op de eerste verdieping.
MOOIE, GROENE LOCATIE NABIJ KINDERBOERDERIJ!
Indeling:
Begane grond:
• Hal met betegelde vloer en meterkast (acht groepen, twee aardlekschakelaars en extra groep ten behoeve van zonnepanelen).
• Gemoderniseerd toilet met wandcloset en fonteintje.
• Royale, L-vormige woonkamer (circa 45 m2 inclusief open keuken) met lamel parketvloer, vaste kastenwand (deze kan eventueel eenvoudig verwijderd worden) en deur naar zonnige achtertuin.
• Open keuken met inbouwkeuken (2009) voorzien van 5-pits gaskookplaat, afzuigkap, heteluchtoven, combimagnetron, vaatwasser, koel-/vriescombinatie, close-in boiler en plintverwarming.
Eerste verdieping (betonvloer):
• Lichte overloop voorzien van raam in zijgevel met rolluik.
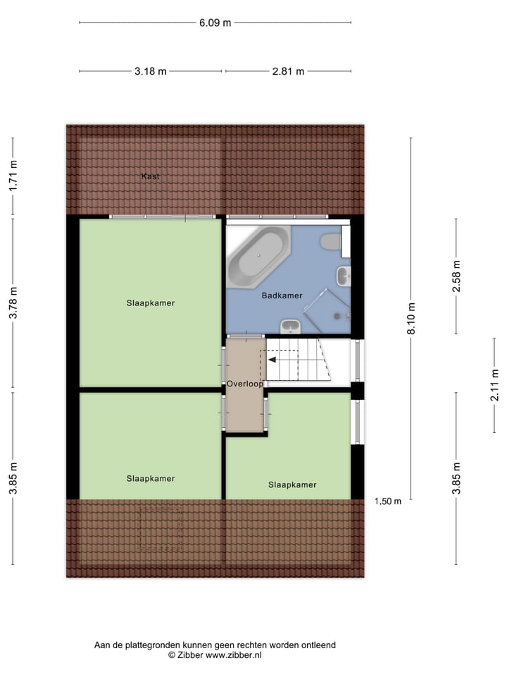
• Slaapkamer I (circa 12 m2) met laminaatvloer, dakkapel en elektrisch rolluik.
• Royale, gemoderniseerde badkamer (circa 7 m2) voorzien van ligbad, douche, wandcloset, vaste wastafel, designradiator en dakkapel met elektrisch rolluik.
• Slaapkamer II (circa 12 m2) met laminaatvloer en dakraam.
• Slaapkamer III (circa 11 m2) met laminaatvloer, raam met dubbele beglazing in zijgevel en rolluik.
Tweede verdieping (houten vloer):
• Via vlizotrap bereikbaar.
• Bergzolder (circa 1,5 meter nokhoogte).
Perceel:
• Voortuin met oprit.
• Zonnige achtertuin op het zuidwesten met zonnescherm.
• Garage (circa 24 m2) met HR CV combiketel (2018), verwarming en elektrische sectionaldeur.
Aanvaarding in overleg!
Toelichtingsclausule NEN2580:
De Meetinstructie is gebaseerd op de NEN2580 (maar wijkt hier wel enigszins vanaf). De Meetinstructie is bedoeld om een meer eenduidige manier van meten toe te passen voor het geven van een indicatie van de gebruiksoppervlakte. De Meetinstructie sluit verschillen in meetuitkomsten niet volledig uit, door bijvoorbeeld interpretatieverschillen, afrondingen of beperkingen bij het uitvoeren van de meting.
U kunt de meetinstructie nalezen via de website van de NVM: nvm.nl/wonen/kopen/meetinstructie/ of eventueel op te vragen via ons kantoor.
Kenmerken
Overdracht
- Laatste vraagprijs
- € 415.000 kosten koper
- Vraagprijs per m²
- € 4.069
- Status
- Verkocht
Bouw
- Soort woonhuis
- Bungalow, geschakelde woning (semi-bungalow)
- Soort bouw
- Bestaande bouw
- Bouwjaar
- 1982
- Soort dak
- Zadeldak bedekt met pannen
Oppervlakten en inhoud
- Gebruiksoppervlakten
- Wonen
- 102 m²
- Overige inpandige ruimte
- 24 m²
- Perceel
- 235 m²
- Inhoud
- 450 m³
Indeling
- Aantal kamers
- 4 kamers (3 slaapkamers)
- Aantal badkamers
- 1 badkamer en 1 apart toilet
- Badkamervoorzieningen
- Douche, ligbad, toilet, en wastafel
- Aantal woonlagen
- 2 woonlagen en een zolder
- Voorzieningen
- Buitenzonwering, dakraam, rolluiken, en zonnepanelen
Energie
- Energielabel
- C
- Isolatie
- Dakisolatie, dubbel glas, muurisolatie en vloerisolatie
- Verwarming
- Cv-ketel
- Warm water
- Cv-ketel
- Cv-ketel
- HR (gas gestookt combiketel uit 2018, eigendom)
Kadastrale gegevens
- ROOSENDAAL EN NISPEN N 340
- Kadastrale kaart
- Oppervlakte
- 235 m²
- Eigendomssituatie
- Volle eigendom
Buitenruimte
- Ligging
- Aan rustige weg en in woonwijk
- Tuin
- Achtertuin en voortuin
Garage
- Soort garage
- Aangebouwde stenen garage
- Capaciteit
- 1 auto
- Voorzieningen
- Elektrische deur, elektra, verwarming en stromend water
Parkeergelegenheid
- Soort parkeergelegenheid
- Op eigen terrein
Foto's 39
© 2001-2025 funda






































