
Omschrijving
Rotterdam - Tuinenhoven
INSCHRIJVEN VOOR DEZE WONING KAN TOT UITERLIJK DINSDAG 4 MAART 2025 TOT 09.00 UUR.
Inschrijven kan alleen via de link of QR-Code in de brochure of op de website van de corporatie of Corpowonen. Zonder inschrijving via de link, loot u niet mee!
Koopsom van € 265.000,- k.k. voor € 225.250,- k.k. (met terugkoopgarantie)!!
Kandidaten met een sociale huurwoning van verkoper en met een passend inkomen, krijgen voorrang op deze KoopGarant-woning. Bij meerdere kandidaten gaat de kandidaat met het langstlopende huidige huurcontract voor. Voorwaarde is dat de huur direct na het vervallen van de ontbindende voorwaarde voor financiering opgezegd wordt.
Leuk gelegen compacte 4-kamer eengezinswoning met zonnige tuin op het zuiden. De woning heeft een nette open hoekkeuken met inbouwapparatuur, een lichte tuingerichte woonkamer aan de achterzijde, drie slaapkamers op de eerste verdieping en een compacte badkamer met douchehoek en wastafel. Voor de woning is meer dan voldoende betaald parkeergelegenheid en er ligt een speelveldje.
Volledig voorzien van dubbele beglazing en een een cv installatie (HR combiketel- bouwjaar 2021).
In de directe nabijheid van speeltuinen, scholen, winkels Prinsenplein alsook winkelcentrum Keizerswaard en openbaar vervoer voorzieningen. De oprit naar de A16 bereikt u binnen 5 minuten. Op slechts 8 minuten fietsen zitten diverse horeca en entertainment tegenover het icoon op Zuid, de Kuip van voetbalclub Feyenoord!!!
Indeling
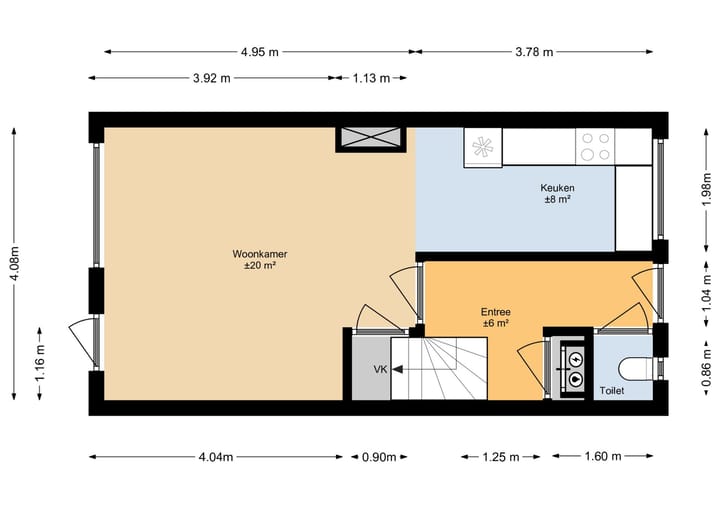
Begane grond: Entree via voortuin. Hal met aan de linkerzijde het toilet, meterkast en trapopgang naar de verdieping. De ruim en zonnig woonkamer met toegang tot de achtertuin. De tuin is deels betegeld met een houten berging en achterom. Aan de voorzijde van de woning, de keuken met L-vormig kastopstelling met diverse inbouwapparatuur o.a. 4-pits gasstel, combimagnetron, koel-vriescombinatie en afzuigkap (geen garantie op inbouwapparatuur).
Eerste verdieping: Overloop met 2 slaapkamers aan de achterzijde en 1 aan de voorzijde met inbouwkast. De eenvoudige badkamer is voorzien van een douche gelegenheid en wastafel. De wasmachine aansluiting bevindt zich in een van de kleinere slaapkamers.
Kenmerken:
- Compact eengezinswoning
- Op steenworp afstand van winkels Prinsenplein
- Fijne ligging ten opzichte van speeltuinen
- Betaald parkeren op straat
- Energielabel: D
Afmetingen:
- Woonkamer totaal ca. 20m²
- Keuken totaal ca. 8m²
- Badkamer totaal ca. 2m²
- Slaapkamer 1 totaal ca. 9m²
- Slaapkamer 2 totaal ca. 8m²
- Slaapkamer 3 totaal ca. 8m²
- Berging totaal ca. 4m²
- Tuin totaal ca. 54m²
Bijzonderheden:
- INSCHRIJVEN VOOR DEZE WONING KAN TOT UITERLIJK DINSDAG 4 MAART 2025 TOT 09.00 UUR;
- Eeuwigdurend afgekocht erfpacht;
- Projectnotaris van toepassing;
- Eeuwigdurende zelfbewoningsplicht van toepassing;
- Koopgarant Bepalingen van toepassing (terugkoopverplichting en winst/verliesdeling);
- LET OP: vaste opleverdatum 12 mei 2025!
U KUNT ZICH TOT UITERLIJK 2024 TOT 09.00 UUR INSCHRIJVEN VOOR DEZE WONING.
Inschrijven kan alleen via de link of QR-Code in de brochure of op de website van de corporatie of Corpowonen. Zonder inschrijving via de link, loot u niet mee!
Koopsom van € k.k. voor € k.k. (met terugkoopgarantie)
Kandidaten met een sociale huurwoning van verkoper en met een passend inkomen, krijgen voorrang op deze KoopGarant-woning. Bij meerdere kandidaten gaat de kandidaat met het langstlopende huidige huurcontract voor. Voorwaarde is dat de huur direct na het vervallen van de ontbindende voorwaarde voor financiering opgezegd wordt.''
Deze woning wordt gepubliceerd met een deadline tot wanneer u zich bij interesse kunt aanmelden, daarna kijken we of er geïnteresseerden met voorrang zijn. Is dit niet het geval dan wordt er geloot. U leest meer over onze voorrangsregeling in de brochure, daar vindt u ook de link voor de inschrijving.
...................
Bijzonderheden:
o Voorrangsregeling van toepassing voor huurders van een sociale huurwoning van de verkopende woningcorporatie en passend inkomen. Zie voor meer informatie de brochure.
o Zelfbewoningsplicht; dus (kamer)verhuur of studentenbewoning is niet toegestaan.
o Inschrijving is alleen mogelijk indien u 18 jaar of ouder bent.
o Degene die inschrijft dient de uiteindelijke koper en bewoner te zijn, koopt u samen dan moet u zich ook samen inschrijven door middel van één inschrijving. De bruto-inkomens van alle kopers tellen mee voor de voorrangsregeling.
o Bij meerdere inschrijvingen (ook uit hetzelfde huishouden) vervalt uw deelname.
o U dient op uw contactgegevens bereikbaar te zijn, indien wij u twee dagen niet hebben kunnen bereiken behouden wij ons het recht voor om de woning aan de volgende kandidaat te verkopen.
o Inschrijven kan via de link in de brochure en tot de deadline gemeld in de advertentie.
o Plattegronden en afmetingen zijn indicatief!
KoopGarant
Deze woning wordt onder (Onder)Erfpacht- en KoopGarantbepalingen verkocht. U krijgt van de corporatie een koperskorting van 15% op de taxatiewaarde van deze woning. Dat scheelt aanzienlijk in uw woonlasten. Deze koperskorting wordt bij terugverkoop verrekend. Met KoopGarant bent u verzekerd van een snelle verkoop als u gaat verhuizen. De corporatie koopt de woning binnen drie maanden van u terug.
We plannen de bezichtiging als eerste met geïnteresseerden die voorrang bij ons krijgen. Als er geen voorrangskandidaten zijn gaan we over tot loting. U leest meer over de voorrangsregeling in de brochure van deze woning.
Voorwaarden KoopGarant
Aan het kopen van een KoopGarant-woning zijn voorwaarden verbonden. Zo heeft u een zelfbewoningplicht, wat onder andere betekent dat u de woning niet (gedeeltelijk) mag verhuren. Daarnaast moet u uw hypotheek afsluiten met Nationale Hypotheekgarantie (NHG). Bovendien wordt, als u de woning terugverkoopt aan de corporatie, de winst of het verlies gedeeld in een verhouding van 15% voor de corporatie en 85% voor u. Een onafhankelijk taxateur bepaalt de marktwaarde van uw woning bij aan- en verkoop. De aan- en verkoopprijs is een vastgestelde prijs, u kunt hier niet over onderhandelen.
Kenmerken
Overdracht
- Laatste vraagprijs
- € 225.250 kosten koper
- Vraagprijs per m²
- € 3.218
- Status
- Verkocht
Bouw
- Soort woonhuis
- Eengezinswoning, tussenwoning
- Soort bouw
- Bestaande bouw
- Bouwjaar
- 1965
- Soort dak
- Plat dak bedekt met bitumineuze dakbedekking
Oppervlakten en inhoud
- Gebruiksoppervlakten
- Wonen
- 70 m²
- Perceel
- 107 m²
- Inhoud
- 182 m³
Indeling
- Aantal kamers
- 4 kamers (3 slaapkamers)
- Aantal badkamers
- 1 badkamer en 1 apart toilet
- Badkamervoorzieningen
- Douche
- Aantal woonlagen
- 2 woonlagen
- Voorzieningen
- Mechanische ventilatie
Energie
- Energielabel
- Isolatie
- Dubbel glas en vloerisolatie
- Verwarming
- Cv-ketel
- Warm water
- Cv-ketel
- Cv-ketel
- Remeha Tzerra Ace 28C (gas gestookt combiketel uit 2021)
Kadastrale gegevens
- IJSSELMONDE D 5430
- Kadastrale kaart
- Oppervlakte
- 107 m²
- Eigendomssituatie
- Eigendom belast met erfpacht
Buitenruimte
- Ligging
- Aan park, in woonwijk en open ligging
- Tuin
- Achtertuin
- Achtertuin
- 54 m² (12,00 meter diep en 4,50 meter breed)
- Ligging tuin
- Gelegen op het zuiden bereikbaar via achterom
Bergruimte
- Schuur/berging
- Aangebouwde houten berging
Parkeergelegenheid
- Soort parkeergelegenheid
- Betaald parkeren en parkeervergunningen
Foto's 17
© 2001-2026 funda
















