
Omschrijving
Deze mooie en goed onderhouden tussenwoning heeft een rustige ligging nabij het vaarwater de Maas en het “Zuiddiepje” in de wijk Oud-IJsselmond te Rotterdam. De woning is volledig voorzien van dubbele beglazing in houten kozijnen en beschikt over vloer-, spouwmuur- en dakisolatie. Aan de achterzijde van de woning heeft men een prachtige aluminium serre laten plaatsen als verlenging van de woonkamer.
In de huidige indeling beschikt deze woning over drie slaapkamers, maar indien gewenst kunnen dat er eenvoudig 5 zijn. Op de eerste verdieping zijn namelijk twee slaapkamers samengevoegd tot één grote slaapkamer en op zolder is de slaapkamer zo ruim dat deze tot twee kamers kan worden gewijzigd.
Op loopafstand bevindt zich een wandelgebied op het “eiland van Brienenoord”. Door de centrale ligging van de woning heeft u diverse voorzieningen in de nabije ligging zoals winkels, openbaar vervoer, de bioscoop, stadion De Kuip en uitvalswegen.
Vanuit de tuin van de woning loopt u direct de fraai aangelegde speelweide op met de speeltuin welke zeer kindvriendelijk is aangelegd en omringd is door huizen zodat kinderen veilig kunnen spelen.
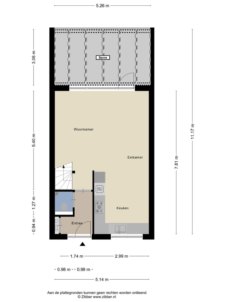
Indeling:
Begane grond:
Entree / hal:
Entree van de woning in een ruime hal met de meterkast (12 groepen met 3 aardlekschakelaars) en de toegang tot het toilet en de woonkamer. De vloer is hier net als in de woonkamer afgewerkt met een PVC-vloer. De wanden zijn glad gestuct.
Toilet:
Moderne toiletruimte welke in 2021 is vernieuwd en is voorzien van een hangend toilet en een fonteintje. De toiletruimte is geheel betegeld in wit-grijze kleurstelling.
Woonkamer:
De tuingerichte woonkamer met open trap naar de eerste verdieping is voorzien van een mooie PVC-vloer in een gerookt eiken kleurstelling, gestucte wanden en geeft een heerlijk open gevoel. De aan de achterzijde geplaatste serre is uit 2020 en dient als verlenging van de woonkamer. Door deze serre kunt u sneller de buitendeur open laten en genieten van de tuin, wat een groot pluspunt is.
Keuken:
De aan de voorzijde van de woning gelegen keuken heeft een lichte kleurstelling met een grijs aanrechtblad en is geplaatst in 2017. De aanwezige voorzieningen bestaan uit anderhalve spoelbak, vaatwasser, zespits gaskookplaat, heteluchtoven (90 cm breed), separate magnetron, koel-/vriezercombinatie en een RVS afzuigkap. Warm water middels een elektrische close-in-boiler.
Eerste verdieping:
Overloop:
De centrale overloop is voorzien van een laminaatvloer in lichte kleurstelling. De gehele vloer loopt door in de slaapkamers. Vaste trap naar zolder.
Slaapkamers:
Er bevinden zich 2 slaapkamers op de eerste verdieping en beiden zijn voorzien van een laminaatvloer, hebben glad gestucte wanden en een plafond afgewerkt met spuitwerk. Slaapkamer 1 bevindt zich aan de achterzijde en bestond voorheen uit twee slaapkamers. Deze kamer heeft een vaste schuifkastenwand. Slaapkamer 2 bevindt zich aan de voorzijde van de woning.
Badkamer:
De moderne badkamer is vernieuwd in 2021 en is ingericht met een inloopdouche met stortdouche, infrarood-verwarming, een dubbele wastafel met bijbehorend meubel en een spiegel met verwarming en verlichting. Tevens bevindt zich in de badkamer een hangend toilet. De kleurstelling van de badkamer is wit met bruin/antraciete tegels. Zeer fraai!
Tweede verdieping:
Voorzolder:
Op de voorzolder bevindt zich de CV-combiketel, de mechanische ventilatie en de wasmachine-/drogeraansluiting. De vloer is gedeeltelijk voorzien van tegels en deels van laminaat.
Slaapkamer:
Op de zolder bevindt zich de zeer ruime, derde slaapkamer met een laminaatvloer en twee Velux-dakramen. Wil men liever twee zolderkamers, dan kan dat gezien het oppervlakte makkelijk; zeker als men zou kiezen voor één of twee dakkapellen. Tevens bevindt zich hier de toegang tot de vliering waar men extra bergruimte vindt voor de spullen die sporadisch nodig zijn.
Buiten:
Kleine, nette voortuin die geheel is voorzien van bestrating. De achtertuin is gelegen op het zuidwesten en is geheel voorzien van luxe bestrating. In de achtertuin staat een vrijstaande stenen berging met een plat dak. Vanuit de tuin bereikt men een gezellige speelweide voor jonge kinderen.
Bijzonderheden:
• Bouwjaar 1987
• Gelegen in de wijk Oud-IJsselmonde te Rotterdam
• Centraal gelegen woning ten opzichte van alle denkbare voorzieningen
• Volledig geïsoleerde woning met energielabel B
• CV-combiketel bouwjaar 2016 Intergas HRE
• Warmwater in de keuken middels een close-in-boiler, bouwjaar 2019
• 107 m2 eigen grond
• Woonoppervlakte 106 m2
• Gebouw gebonden buitenruimte (serre) 16 m2
Deze informatie is door ons met de nodige zorgvuldigheid samengesteld. Er wordt echter geen enkele aansprakelijkheid aanvaard voor enige onvolledigheid, onjuistheid of anderszins, dan wel de gevolgen daarvan. Alle opgegeven maten en oppervlakten zijn indicatief. Van toepassing zijn de Algemene Consumentenvoorwaarden van VBO Makelaar. Voor onze privacyverklaring verwijzen wij u naar onze website.
Kenmerken
Overdracht
- Laatste vraagprijs
- € 390.000 kosten koper
- Vraagprijs per m²
- € 3.679
- Status
- Verkocht
Bouw
- Soort woonhuis
- Eengezinswoning, tussenwoning
- Soort bouw
- Bestaande bouw
- Bouwjaar
- 1987
- Soort dak
- Zadeldak bedekt met pannen
Oppervlakten en inhoud
- Gebruiksoppervlakten
- Wonen
- 106 m²
- Gebouwgebonden buitenruimte
- 16 m²
- Externe bergruimte
- 6 m²
- Perceel
- 107 m²
- Inhoud
- 374 m³
Indeling
- Aantal kamers
- 4 kamers (3 slaapkamers)
- Aantal badkamers
- 1 badkamer en 2 aparte toiletten
- Badkamervoorzieningen
- Dubbele wastafel, inloopdouche, toilet, en wastafelmeubel
- Aantal woonlagen
- 2 woonlagen en een zolder
- Voorzieningen
- Mechanische ventilatie
Energie
- Energielabel
- B
- Isolatie
- Dakisolatie, dubbel glas en muurisolatie
- Verwarming
- Cv-ketel
- Warm water
- Cv-ketel
- Cv-ketel
- Intergas Kombi Kompakt (gas gestookt combiketel uit 2016, eigendom)
Kadastrale gegevens
- IJSSELMONDE D 4347
- Kadastrale kaart
- Oppervlakte
- 107 m²
- Eigendomssituatie
- Volle eigendom
Buitenruimte
- Ligging
- Aan rustige weg en in woonwijk
- Tuin
- Achtertuin en voortuin
- Achtertuin
- 36 m² (7,07 meter diep en 5,14 meter breed)
- Ligging tuin
- Gelegen op het zuidwesten bereikbaar via achterom
Bergruimte
- Schuur/berging
- Vrijstaande stenen berging
- Voorzieningen
- Elektra
- Isolatie
- Geen isolatie
Parkeergelegenheid
- Soort parkeergelegenheid
- Betaald parkeren
Foto's 42
© 2001-2025 funda









































